+ Lisa oma töö      

1,5kordne eramaja

ID 345

4247 vaatamist

Prindi

  • check Pakkumiste tegemine
    kuni 15.03.2006
  • check Võitja valik kuni
    22.03.2006
  • 3 Töö teostamine
    ja hinnang
Hanke lõpp: K, 15. märts, 2006
Maakond: Harjumaa
Linn: Tallinn
Tööde algus: K, 15. märts, 2006 (Soovituslik)
Tööde lõpp: N, 30. aprill, 2026 (Soovituslik)
Ehitusmaterjalid: Töö tellija poolt

Töö sisu

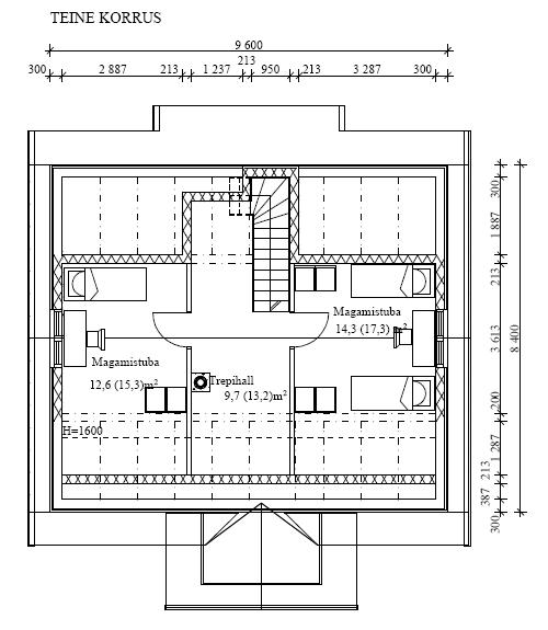
Hetkel valmis: vundamendil puitkarkassmaja ilmastikukindel karp omatalo'lt (http://www.omatalo.ee/est/houses/puutalo/oma101s/)
Teostamist vajavad tööd: katus, siseseinad, vahelagi, põrandad, trepid, fiboseinad saunas, siseviimistlus

Pildid, video ja failid

Hanke korraldaja: eraisik ID821

Pakkumised

Pakkumisi kokku: 4

Ettevõte Summa Käibemaks Lisatud Vestlus
Kasutaja ikoon ID861
Pakkuja profiil Väike nool paremale
28 760,2€ Ei sisalda Ei sisalda 10.03.2006 Vestlus (0)
Kasutaja ikoon ID154
Pakkuja profiil Väike nool paremale
25 992,9€ Ei sisalda Ei sisalda 14.03.2006 Vestlus (0)
Kasutaja ikoon ID872
Pakkuja profiil Väike nool paremale
26 715,1€ Sisaldab KM Sisaldab KM 14.03.2006 Vestlus (0)
Kasutaja ikoon ID685
Pakkuja profiil Väike nool paremale
25 545,5€ Sisaldab KM Sisaldab KM 15.03.2006 Vestlus (0)

Küsimused hanke korraldajale

Küsimus: private ID154   09.03.2006 08:59
Tere! Kas on võimalik eritöödele pakkumist estada. Hetkel esmane huvi katusetöödele.

Teavita reeglite rikkumisest

Korraldaja vastus: 30.04.2026 12:41

Eritöödele võib esitada pakkumise küll. Tegelikkuses on oodatud pakkumised ka osade kaupa. S.t ei pea olema kindlasti tegemist peatöövõtuga.

Teavita reeglite rikkumisest

Küsimus: private ID83   09.03.2006 20:00
kas teie maja kütte mured on lahendatud. rento

Teavita reeglite rikkumisest

Korraldaja vastus: 30.04.2026 12:41

Küte on hetkel planeeritud gaasi näol. Alates käesoleva aasta teisest poolest valmib selles piirkonnas gaasitrass. Milline oleks Teie poolne soovitus või tegevusvaldkond.

Teavita reeglite rikkumisest

Lisa küsimus

Lisa küsimus

Minu pakkumine

Reeglid

Pakkumise kirjelduse väli on mõeldud pakkumise detailsemaks lahti kirjutamiseks. Pikema teksti mugavaks sisestamiseks klikkige kasti paremal ülaservas oleval ikoonil.
Pakkumist tehes on keelatud postitada enda kontaktandmeid (nimi, telefon, aadress jne). Me jälgime ja analüüsime pakkumisi, et vältida pettuseid ja reeglite rikkumisi.
Rikkumise puhul kasutajakonto blokeeritakse.

 

Vanemad teated:

Vaata kõiki

Sellel veebilehel kasutatakse küpsiseid. Kasutamist jätkates nõustute küpsiste kasutamisega.

Sulge
 
Minu pakkumine

Reeglid

Pakkumise kirjelduse väli on mõeldud pakkumise detailsemaks lahti kirjutamiseks. Pikema teksti mugavaks sisestamiseks klikkige kasti paremal ülaservas oleval ikoonil.
Pakkumist tehes on keelatud postitada enda kontaktandmeid (nimi, telefon, aadress jne). Me jälgime ja analüüsime pakkumisi, et vältida pettuseid ja reeglite rikkumisi.
Rikkumise puhul kasutajakonto blokeeritakse.