+ Lisa oma töö      

Otsid ehitajat "Korterite remont" valdkonnast?

Parima pakkumise ja teostaja leidmiseks lisa oma töö.

Hange on lõppenud!

Võitjaks osutus kasutaja ID 33045

Korraldaja hinnang tehtud tööle

3.0
10.01.2018
Töökiirus: 12345
Kvaliteet: 12345
Hind: 12345

Töid ei suudetud teostada kokkulepitud raha eest. Ei peetud kinni kokkulepitud tähtajast. Üldiselt sai asi lõpuks tehtud. Köögimööbel paigaldati viltu ja kuu aja pärast olid seinte servades ja nurkades praod. - Viljar P.

Korteri kapitaalremont vaheseina eemaldamisega

ID 34687

4479 vaatamist

Prindi

  • check Pakkumiste tegemine
    kuni 27.10.2015
  • check Võitja valik kuni
    03.11.2015
  • 3 Töö teostamine
    ja hinnang
Hanke lõpp: T, 27. oktoober, 2015
Maakond: Jõgevamaa
Linn: Jõgeva
Tööde algus: P, 01. november, 2015 (Soovituslik)
Tööde lõpp: E, 30. november, 2015
Ehitusmaterjalid: Töö tegija poolt

Töö sisu

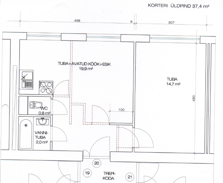
Korteri üldpindala 37,4 m2.

Vajalikud tööd:

1) Toad + esik. Tapeedi eemaldamine, vana parketi eemaldamine. Seina sirgeks ajamine, värvimine.
2) Aknapalede viimistlus. Aknad on vahetatud.
3) köögi ja toa vahelise seina eemaldamine. Kooskõlastus ja projekt on olemas.
4) Vannituba - plaatimistööd (seinad+põrand). Uue ukse paigaldamine.
5) WC - ripplae eemaldamine, uue ukse paigaldus, viimistluse taastamine.
6) Köök - põrandakatte eemaldamine, seinade sirgendamine/värvimine.
7) Uue laminaatparketi paigaldamine "laiendatud tuba-avatud köök+esik" tuppa
8) Lagede viimistlus
9) Elektrisüsteemi uuendamine vannitoas ning lammutatava seina juhtmestiku viimine uude asukohta.

Eraldi paluks välja tuua lammutuse ja elektritööde hind. Arveldamine arve alusel.

Pildid, video ja failid

Hanke korraldaja: ettevõte ID6825

Pakkumised

Pakkumisi kokku: 4

Ettevõte Summa Käibemaks Lisatud Vestlus
Kasutaja ikoon ID33045
Pakkuja profiil Väike nool paremale
5 700€ Ei sisalda Ei sisalda 17.10.2015 Vestlus (5)

Pakkumise kirjeldus:

ehitus 4500+elekter 900+lammutus 300
täpsem hind selgub korteri nägemisel

Kasutaja ikoon ID33935
Pakkuja profiil Väike nool paremale
5 480€ Ei sisalda Ei sisalda 23.10.2015 Vestlus (2)

Pakkumise kirjeldus:

Tere! Hind sisaldab hankes soovituid töid. Hind ei sisalda lammutus- ja ehitusprahi likviteerimist. Lugupidamisega T.N

Kasutaja ikoon ID30127
Pakkuja profiil Väike nool paremale
5 000€ Ei sisalda Ei sisalda 26.10.2015 Vestlus (2)
Kasutaja ikoon ID39130
Pakkuja profiil Väike nool paremale
8 000€ Sisaldab KM Sisaldab KM 26.10.2015 Vestlus (0)

Küsimused hanke korraldajale

Hanke korraldajale ei ole veel küsimusi esitatud.

Lisa küsimus

Lisa küsimus

Minu pakkumine

Reeglid

Pakkumise kirjelduse väli on mõeldud pakkumise detailsemaks lahti kirjutamiseks. Pikema teksti mugavaks sisestamiseks klikkige kasti paremal ülaservas oleval ikoonil.
Pakkumist tehes on keelatud postitada enda kontaktandmeid (nimi, telefon, aadress jne). Me jälgime ja analüüsime pakkumisi, et vältida pettuseid ja reeglite rikkumisi.
Rikkumise puhul kasutajakonto blokeeritakse.

 

Teisi töid samas valdkonnas

Valdkonnas "Korterite remont" on 2 aktiivset tööd

Vannitoa lampide paigaldus + erinevad pisiparandused korteris

Asukoht: Harjumaa, Tallinn
Aega jäänud: 1p 8h
Tehtud pakkumisi: 3

Korteri kapitaalremont ja ümberehitus (täielik siseviimistlus + elektritööd)

Asukoht: Järvamaa
Aega jäänud: 12p 8h
Tehtud pakkumisi: 0

Vanemad teated:

Vaata kõiki

Sellel veebilehel kasutatakse küpsiseid. Kasutamist jätkates nõustute küpsiste kasutamisega.

Sulge
 
Minu pakkumine

Reeglid

Pakkumise kirjelduse väli on mõeldud pakkumise detailsemaks lahti kirjutamiseks. Pikema teksti mugavaks sisestamiseks klikkige kasti paremal ülaservas oleval ikoonil.
Pakkumist tehes on keelatud postitada enda kontaktandmeid (nimi, telefon, aadress jne). Me jälgime ja analüüsime pakkumisi, et vältida pettuseid ja reeglite rikkumisi.
Rikkumise puhul kasutajakonto blokeeritakse.