+ Lisa oma töö      

Otsid ehitajat "Ehitusprojektid" valdkonnast?

Parima pakkumise ja teostaja leidmiseks lisa oma töö.

Hange on lõppenud!

Võitjaks osutus kasutaja ID 39945

Korraldaja hinnang tehtud tööle

4.3
14.11.2016
Töökiirus: 12345
Kvaliteet: 12345
Hind: 12345

Eramaja ehitusprojekteerimine

ID 35033

8794 vaatamist

Prindi

  • check Pakkumiste tegemine
    kuni 05.01.2016
  • check Võitja valik kuni
    15.01.2016
  • 3 Töö teostamine
    ja hinnang
Hanke lõpp: T, 5. jaanuar, 2016
Maakond: Jõgevamaa
Tööde algus: E, 18. jaanuar, 2016 (Soovituslik)
Tööde lõpp: L, 30. aprill, 2016
Ehitusmaterjalid: Töö tegija poolt

Töö sisu

Vaja oleks ehitusprojekti maja ehitusloa taotlemiseks. Tegemist on 2- korruselise majaga. On olemas ka oma joonised mis oleks vaja teha vastavas programmis ning litsentseeritud arhidekti poolt. Ehitusprojekt peab valmis olema mai 2016 . Peab vastama seadusest tulenevatest nõuetest, et oleks võimalik ka ehitusluba saada kohalikust omavalitsusest.
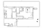
Ehitise kasulik pind on orienteeruvalt 170 m2 . On olemas oma visuaalsed joonised millest peaks lähtuma. Lisan need ka failina siia kaasa.

Pildid, video ja failid

Hanke korraldaja: eraisik ID30579

Pakkumised

Pakkumisi kokku: 8

Ettevõte Summa Käibemaks Lisatud Vestlus
Kasutaja ikoon ID40011
Pakkuja profiil Väike nool paremale
1 200€ Sisaldab KM Sisaldab KM 07.12.2015 Vestlus (0)

Pakkumise kirjeldus:

Hind sisaldab: eelprojekti ( kõik vajalikud joonised ja seletuskiri vastavalt kehtivatele nõuetele) ja energiamärgist.
Ei sisalda geodeetilist mõõdistust, projekteerimistingimuste ja ehitusloa riigilõivu.

Kasutaja ikoon ID6901
Pakkuja profiil Väike nool paremale
1 600€ Sisaldab KM Sisaldab KM 27.12.2015 Vestlus (0)

Pakkumise kirjeldus:

Hinnapakkumises:

Joonised vastavalt tellija nägemusele, asendiplaan, seletuskiri, energiamärgis ja asjaajamine kuni loa väljastamiseni. Hinnas kooskõlastuse tasu Elektrilevi OÜ-ga. Topo maksab Tellija, kui seda hetkel veel ei ole. (ca 250euri)
Firma on tegutsenud aastast 2006 ja erinevate valdadega suured kogemused.

Viimane ehitusluba lõunast:
... Rohkem

Kasutaja ikoon ID33196
Pakkuja profiil Väike nool paremale
1 400€ Sisaldab KM Sisaldab KM 28.12.2015 Vestlus (0)

Pakkumise kirjeldus:

Tere.
Meie pakkumine sisaldab arhitektuurset projekti eelprojekti mahus ehitusloa saamiseks. Pakkumine koosneb vundamendi- ja korruste plaanidest, lõikedest, vaadetest, avatäidete spetsifikatsioonist ja seletuskirjast. Energiaarvutused ja energiamärgise koostamine on hinna sees. Kõik vajalikud kooskõlastused, s.h. Päästeameti kooskõlastust. Proje ... Rohkem

Kasutaja ikoon ID26721
Pakkuja profiil Väike nool paremale
1 692€ Sisaldab KM Sisaldab KM 29.12.2015 Vestlus (0)

Pakkumise kirjeldus:

Ehitusprojekt eelprojekti staadiumis 1200 eur +km (sisaldab ka abistamist kooskõlastuste saamiseks Päästeametilt ja omavalitsuselt, riigilõivud tasub Tellija)
energiamärgis 170eur +km
Hange.ee vahendustasu ca 40 eur+km

Kasutaja ikoon ID33328
Pakkuja profiil Väike nool paremale
970€ Sisaldab KM Sisaldab KM 02.01.2016 Vestlus (0)

Pakkumise kirjeldus:

Tere. Pakkumuse hind sisaldab elumaja eelprojekti koostamist ehitusloa saamiseks. Projekt sisaldab järgmist: seletuskiri, joonised – asendiplaan, vundamendi plaan, I korruse plaan, lõige/lõiked, maja vaated, katuse plaan, akende/uste spetsifikatsioon, evakuatsiooni plaan. Lõigete joonisel/joonistel näidatud aluspõranda konstruktsioon, vahelae kandek ... Rohkem

Kasutaja ikoon ID39945
Pakkuja profiil Väike nool paremale
1 200€ Sisaldab KM Sisaldab KM 04.01.2016 Vestlus (2)

Pakkumise kirjeldus:

Pakkumine sisaldab projekti ehitusloa taotlemiseks / ehitusteatise esitamiseks vajalikus mahus koos meiepoolsete kõikide kooskõlastustega, asjaajamistega.
Projekt sisaldab kõik, mis on ette nähtud ehitusprojektis ehitusloa saamiseks / ehitusteatise esitamiseks, s.t. ehitise aritektuurne ning konstruktiivne lahendus, asendiplaan; korrusteplaanid, vaated ... Rohkem

Kasutaja ikoon ID40297
Pakkuja profiil Väike nool paremale
1 190€ Sisaldab KM Sisaldab KM 05.01.2016 Vestlus (0)

Pakkumise kirjeldus:

Tere! Pakkumine sisaldab eramaja eelprojekti staadiumis vastavalt Teie hanke kirjeldusele. Eelprojekt sisaldab arhitektuurseid plaane, vaateid, lõikeid, avatäidete spetsifikatsiooni, põhisõlmede lahendusi, seletuskirja, asendiplaani (tellija geoalusele). Hind ei sisalda geoaluse tellimist ja projekteerimistingimuste riigilõivu. Pakkumine ei sisalda koos ... Rohkem

Kasutaja ikoon ID38446
Pakkuja profiil Väike nool paremale
1 000€ Ei sisalda Ei sisalda 05.01.2016 Vestlus (0)

Pakkumise kirjeldus:

Hind sisaldab ehitusprojekti eelprojekti staadiumis ja vajalikku dokumentatsiooni ehitisele ehitusloa taotlemiseks. Ei sisalda geoalust ja riigilõive. Kui vald on nõus, siis võimalik teostada asendiplaan maaameti järgi. Sellega hoiaksite geoaluse raha kokku. Edu soovides.

Küsimused hanke korraldajale

Hanke korraldajale ei ole veel küsimusi esitatud.

Lisa küsimus

Lisa küsimus

Minu pakkumine

Reeglid

Pakkumise kirjelduse väli on mõeldud pakkumise detailsemaks lahti kirjutamiseks. Pikema teksti mugavaks sisestamiseks klikkige kasti paremal ülaservas oleval ikoonil.
Pakkumist tehes on keelatud postitada enda kontaktandmeid (nimi, telefon, aadress jne). Me jälgime ja analüüsime pakkumisi, et vältida pettuseid ja reeglite rikkumisi.
Rikkumise puhul kasutajakonto blokeeritakse.

 

Teisi töid samas valdkonnas

Valdkonnas "Ehitusprojektid" on 6 aktiivset tööd

Eramu ehitusprojekt

Asukoht: Tartumaa
Aega jäänud: 6p 9h
Tehtud pakkumisi: 9

no-img Pilt puudub

Abihoone projekti koostamine

Asukoht: Tartumaa, Tartu
Aega jäänud: 1p 9h
Tehtud pakkumisi: 6

Vanemad teated:

Vaata kõiki

Sellel veebilehel kasutatakse küpsiseid. Kasutamist jätkates nõustute küpsiste kasutamisega.

Sulge
 
Minu pakkumine

Reeglid

Pakkumise kirjelduse väli on mõeldud pakkumise detailsemaks lahti kirjutamiseks. Pikema teksti mugavaks sisestamiseks klikkige kasti paremal ülaservas oleval ikoonil.
Pakkumist tehes on keelatud postitada enda kontaktandmeid (nimi, telefon, aadress jne). Me jälgime ja analüüsime pakkumisi, et vältida pettuseid ja reeglite rikkumisi.
Rikkumise puhul kasutajakonto blokeeritakse.