+ Lisa oma töö      

Otsid ehitajat "Vundamenditööd" valdkonnast?

Parima pakkumise ja teostaja leidmiseks lisa oma töö.

Vundamendi ehitus.

ID 35087

7581 vaatamist

Prindi

  • check Pakkumiste tegemine
    kuni 15.01.2016
  • check Võitja valik kuni
    22.01.2016
  • 3 Töö teostamine
    ja hinnang
Hanke lõpp: R, 15. jaanuar, 2016
Maakond: Läänemaa
Muu asula: Ahli
Tööde algus: R, 01. aprill, 2016 (Soovituslik)
Tööde lõpp: E, 31. oktoober, 2016 (Soovituslik)
Ehitusmaterjalid: Töö tegija poolt

Töö sisu

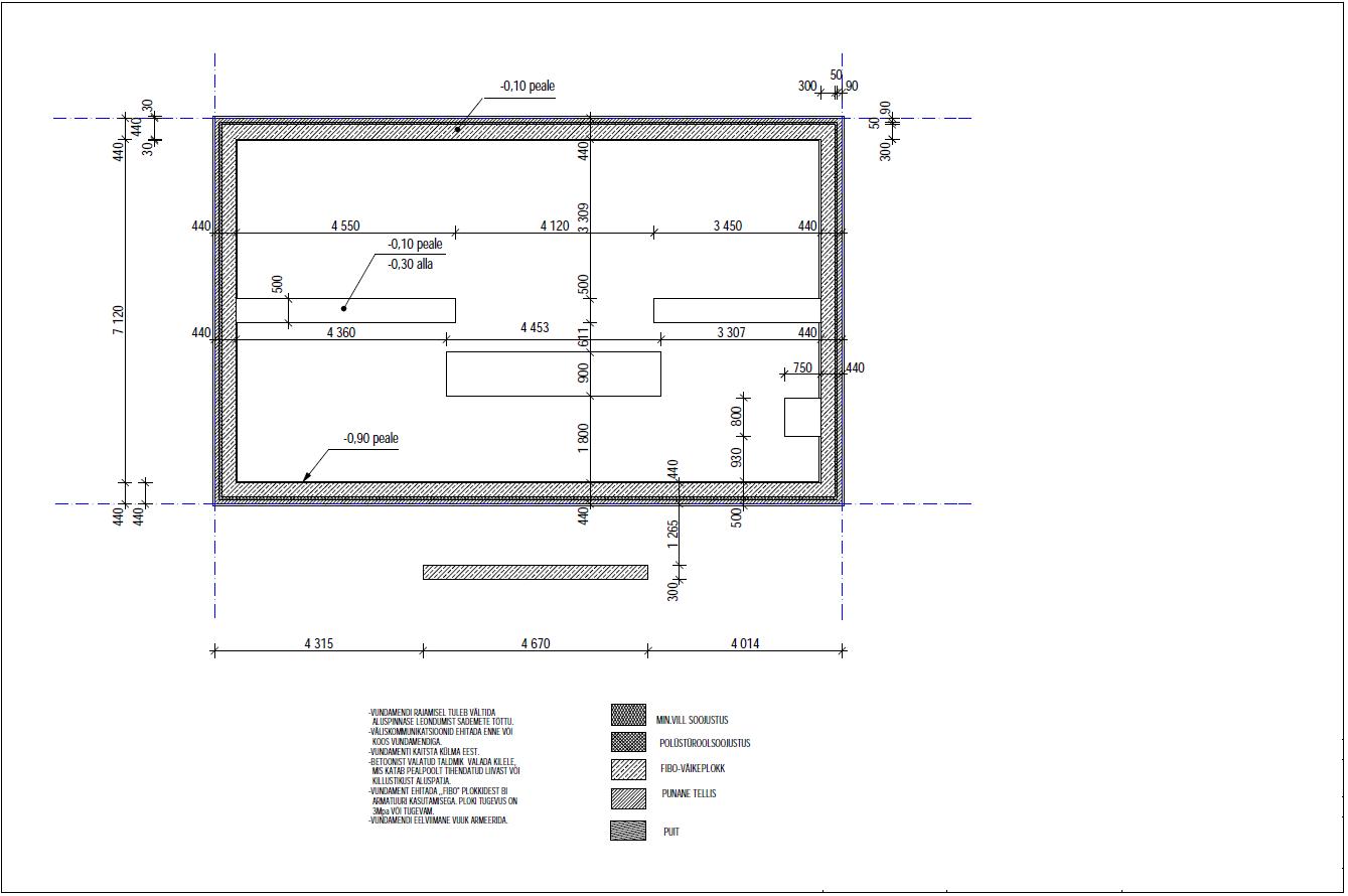
Hoone mõõdud 13mx8m. Sokkel seest Fibo5 300 keskel 50 Peno ja väjla Fibo5 100.

Hind peab sisaldama järgnevaid töid:
Pinnase koorimine , vundamendi kaevetööd ,killu alus, taldmik, sokli müüritööd, tagasitäide.

Joonises lisatud.

Töö ja materjalide hind eraldi.

Pildid, video ja failid

Hanke korraldaja: eraisik ID27254

Pakkumised

Pakkumisi kokku: 7

Ettevõte Summa Käibemaks Lisatud Vestlus
Kasutaja ikoon ID40011
Pakkuja profiil Väike nool paremale
9 878€ Sisaldab KM Sisaldab KM 01.01.2016 Vestlus (1)
Kasutaja ikoon ID9194
Pakkuja profiil Väike nool paremale
10 300€ Ei sisalda Ei sisalda 11.01.2016 Vestlus (1)
Kasutaja ikoon ID34288
Pakkuja profiil Väike nool paremale
9 100€ Ei sisalda Ei sisalda 13.01.2016 Vestlus (1)

Pakkumise kirjeldus:

Tere.
Hind sisaldab mida küsitud.Ettemaksu soovime materjalide ostuks.
Lugupidamisega.

Kasutaja ikoon ID30338
Pakkuja profiil Väike nool paremale
9 000€ Sisaldab KM Sisaldab KM 13.01.2016 Vestlus (0)
Kasutaja ikoon ID8782
Pakkuja profiil Väike nool paremale
9 425€ Ei sisalda Ei sisalda 14.01.2016 Vestlus (0)

Pakkumise kirjeldus:

Töö korralik ja kvaliteetne tööle 2 aastane garantii

Kasutaja ikoon ID23896
Pakkuja profiil Väike nool paremale
8 850€ Ei sisalda Ei sisalda 15.01.2016 Vestlus (0)

Pakkumise kirjeldus:

Tere,
Pakkumine ei sisalda tagasitäidet, sest ei tea palju tuleb välja kaevata ,pole teada kas sama pinnast saab kasutada tagasitäiteks või tuleb uus liiv tuua?

Kasutaja ikoon ID40132
Pakkuja profiil Väike nool paremale
8 200€ Sisaldab KM Sisaldab KM 15.01.2016 Vestlus (0)

Pakkumise kirjeldus:

Teie poolt soovitud tööde teostamise hind koos materjaliga.

Küsimused hanke korraldajale

Küsimus: private ID40585   15.01.2016 09:42
Tere,<br />
kas vundamendi tagasitäide peab sisaldama endas nii vundamendi sees kui ka väljapool kogu tihendatud liivast tagasitäidet kuni horisontaalse soojustuse alla?

Teavita reeglite rikkumisest

Korraldaja vastus: 15.01.2016 11:30

Hinna sees peaks olema ainult vundamendi sisse jääv täide (liiv)

Teavita reeglite rikkumisest

Küsimus: private ID40585   15.01.2016 09:47
Milline on objektil pinnas? Kuna joonisel on antud kõrgusmärgid ilmselt suhtena põrandapinnast, siis kaevetööde mahu määramiseks oleks hea teada - kui sügaval on keskmiselt olemasolevast maapinnast soovitud taldmiku sügavus -1,10 m.

Teavita reeglite rikkumisest

Korraldaja vastus: 15.01.2016 11:32

Pinnas on olemuselt tasane tükk kunagist karjamaad. Kiviklibune muld ~0.5m .. edasi midagi savist.. geo alusel räägiti vis 5tmidagi morrenist.

Teavita reeglite rikkumisest

Lisa küsimus

Lisa küsimus

Minu pakkumine

Reeglid

Pakkumise kirjelduse väli on mõeldud pakkumise detailsemaks lahti kirjutamiseks. Pikema teksti mugavaks sisestamiseks klikkige kasti paremal ülaservas oleval ikoonil.
Pakkumist tehes on keelatud postitada enda kontaktandmeid (nimi, telefon, aadress jne). Me jälgime ja analüüsime pakkumisi, et vältida pettuseid ja reeglite rikkumisi.
Rikkumise puhul kasutajakonto blokeeritakse.

 

Vanemad teated:

Vaata kõiki

Sellel veebilehel kasutatakse küpsiseid. Kasutamist jätkates nõustute küpsiste kasutamisega.

Sulge
 
Minu pakkumine

Reeglid

Pakkumise kirjelduse väli on mõeldud pakkumise detailsemaks lahti kirjutamiseks. Pikema teksti mugavaks sisestamiseks klikkige kasti paremal ülaservas oleval ikoonil.
Pakkumist tehes on keelatud postitada enda kontaktandmeid (nimi, telefon, aadress jne). Me jälgime ja analüüsime pakkumisi, et vältida pettuseid ja reeglite rikkumisi.
Rikkumise puhul kasutajakonto blokeeritakse.