+ Lisa oma töö      

Otsid ehitajat "Eramu ehitus" valdkonnast?

Parima pakkumise ja teostaja leidmiseks lisa oma töö.

Eramu ehitus Tallinnas - valge karp või võtmed kätte

ID 35212

2486 vaatamist

Prindi

  • check Pakkumiste tegemine
    kuni 11.02.2016
  • check Võitja valik kuni
    18.02.2016
  • 3 Töö teostamine
    ja hinnang
Hanke lõpp: N, 11. veebruar, 2016
Maakond: Harjumaa
Linn: Tallinn
Tööde algus: E, 02. mai, 2016 (Soovituslik)
Tööde lõpp: K, 30. november, 2016 (Soovituslik)
Ehitusmaterjalid: Töö tegija poolt

Töö sisu

Soovime ehituspakkumisi eramu ehitamiseks Tallinnasse.

Tingimused majale:
2 korrust, pindala ligikaudu 100 ruutmeetrit
kivimaja
küttesüsteemi lahendus kooskõlastamisel

Soovime võimalikult lihtsat lahendust ning seeläbi ka odavamat. Oluline on, et majakarp oleks püstitatud hanke võitja poolt.

Hinnapakkumises eraldi välja tuua palun töö ja materjalid. Ning võimalusel ka valge karbi ja võtmed kätte variandi hinnad eraldi välja tuua.

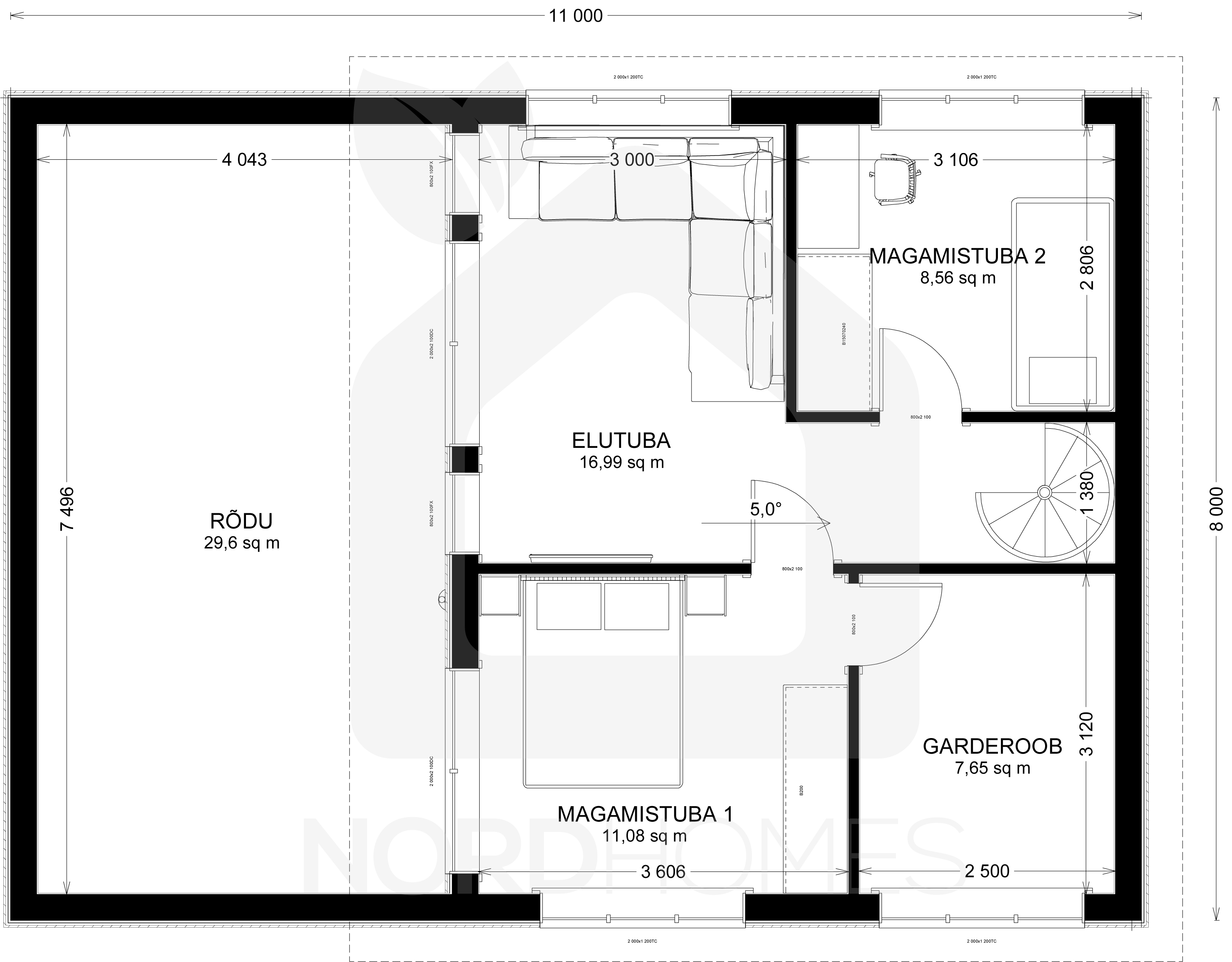
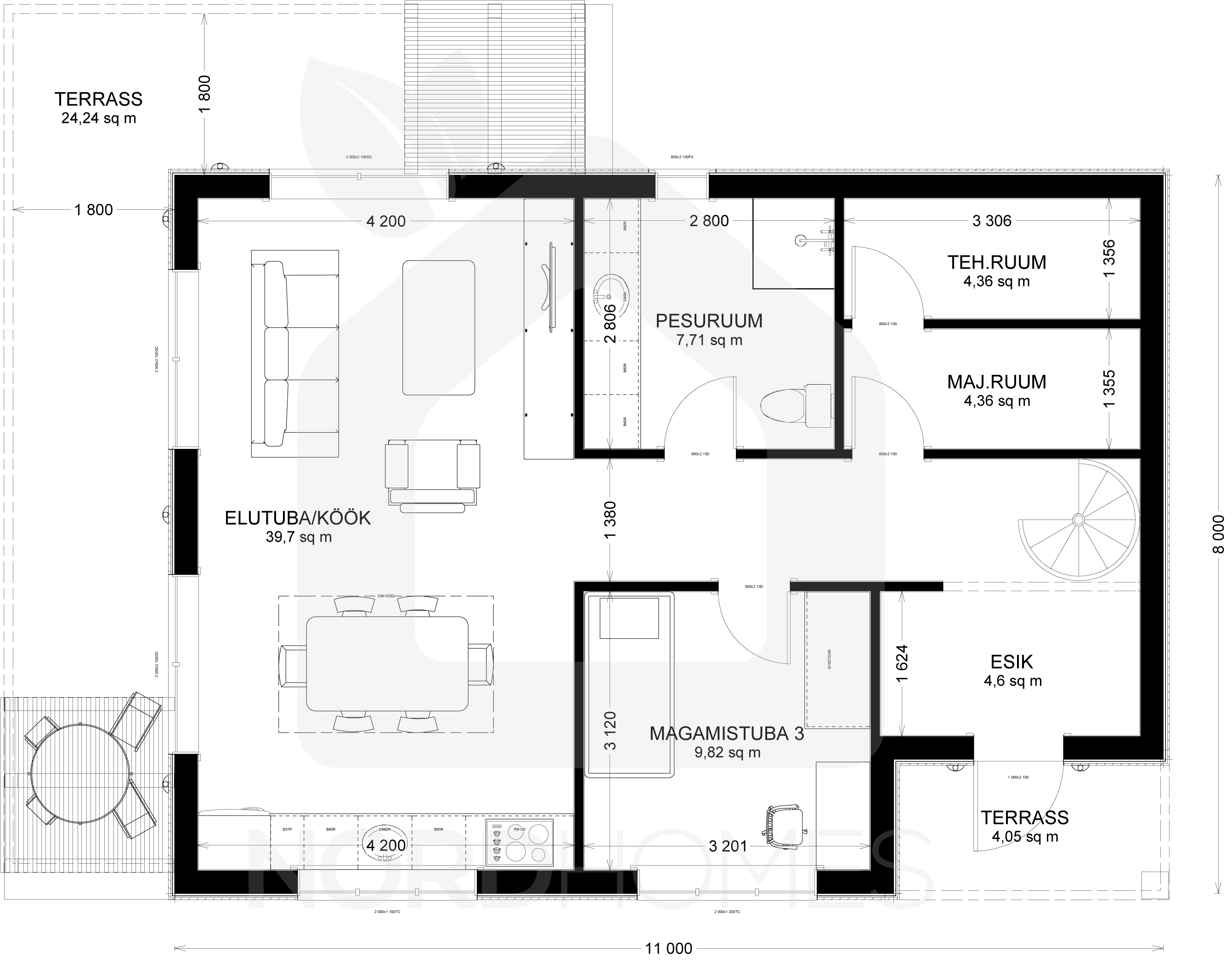
Lisan näidispildid majast, aga kui pakute odavama disainiga, siis vaatame ka selle kindlasti üle!


Pildid, video ja failid

Hanke korraldaja: eraisik ID4240

Pakkumised

Pakkumisi kokku: 0

Küsimused hanke korraldajale

Küsimus: private ID40724   14.01.2016 21:38
Tere. Nagu aru saan tahate te kivi maja. Seoses sellega mõned küsimused. Mis lahendusega on vahelagi ning II korruse rõdu katte materjal? Kas teil on olemas konkreetse maja projekt? Kas kivi- või plekk katus? Milliste materjalidega on ettenähtud soojustus ning seega fassaad (kas õhekrohv või laudis)? Mis tüüpi aknad ja uksed?

Teavita reeglite rikkumisest

Korraldaja vastus: 15.01.2016 16:27

Tere, Vahelae jaoks pakkuge oma soovitused, Rõdu kattematerjal puit. Kivikatus, fassaad õhekrohv, aknad pvc-üheraamilised, siseuksed puit, välisuks turvauks. Konkreetse maja projekti veel olemas ei ole.

Teavita reeglite rikkumisest

Lisa küsimus

Lisa küsimus

Minu pakkumine

Reeglid

Pakkumise kirjelduse väli on mõeldud pakkumise detailsemaks lahti kirjutamiseks. Pikema teksti mugavaks sisestamiseks klikkige kasti paremal ülaservas oleval ikoonil.
Pakkumist tehes on keelatud postitada enda kontaktandmeid (nimi, telefon, aadress jne). Me jälgime ja analüüsime pakkumisi, et vältida pettuseid ja reeglite rikkumisi.
Rikkumise puhul kasutajakonto blokeeritakse.

 

Teisi töid samas valdkonnas

Valdkonnas "Eramu ehitus" on 2 aktiivset tööd

Eramu ehitus

Asukoht: Viljandimaa, Viljandi
Aega jäänud: 5p 12h
Tehtud pakkumisi: 1

no-img Pilt puudub

Eramu ehitus. Karp kinni.

Asukoht: Lääne-Virumaa
Aega jäänud: 3p 12h
Tehtud pakkumisi: 0

Vanemad teated:

Vaata kõiki

Sellel veebilehel kasutatakse küpsiseid. Kasutamist jätkates nõustute küpsiste kasutamisega.

Sulge
 
Minu pakkumine

Reeglid

Pakkumise kirjelduse väli on mõeldud pakkumise detailsemaks lahti kirjutamiseks. Pikema teksti mugavaks sisestamiseks klikkige kasti paremal ülaservas oleval ikoonil.
Pakkumist tehes on keelatud postitada enda kontaktandmeid (nimi, telefon, aadress jne). Me jälgime ja analüüsime pakkumisi, et vältida pettuseid ja reeglite rikkumisi.
Rikkumise puhul kasutajakonto blokeeritakse.