+ Lisa oma töö      

Otsid ehitajat "Põrandaküte, paigaldus" valdkonnast?

Parima pakkumise ja teostaja leidmiseks lisa oma töö.

Vesipõrandakütte paigaldus

ID 35214

4071 vaatamist

Prindi

  • check Pakkumiste tegemine
    kuni 08.02.2016
  • check Võitja valik kuni
    15.02.2016
  • 3 Töö teostamine
    ja hinnang
Hanke lõpp: E, 8. veebruar, 2016
Maakond: Harjumaa
Linn: Tallinn
Tööde algus: E, 18. jaanuar, 2016 (Soovituslik)
Tööde lõpp: E, 15. veebruar, 2016 (Soovituslik)
Ehitusmaterjalid: Töö tellija poolt

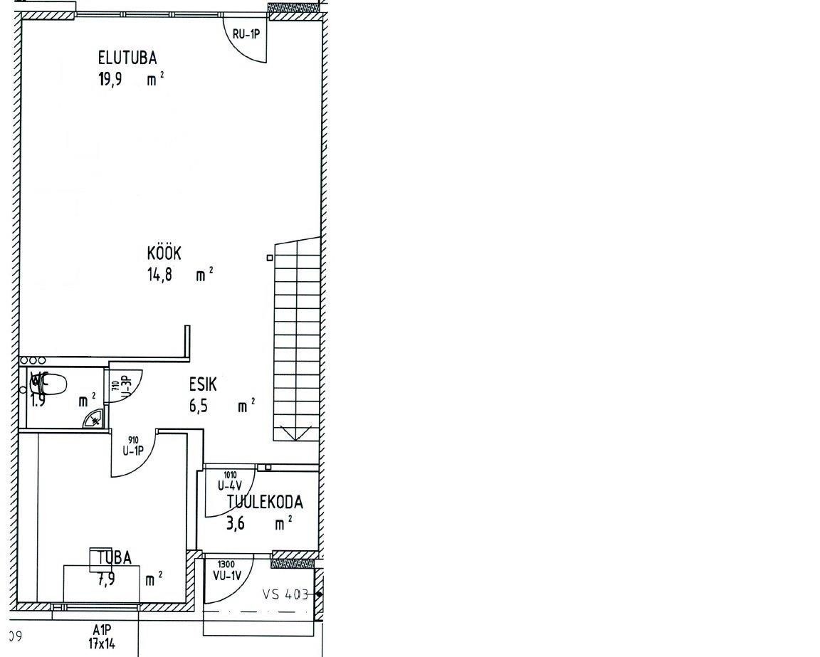
Töö sisu

Olemasolevasse betoonpõrandasse tuleb
- freesida sooned põrandakütte torude paigalduseks
- paigaldada torustik
- täita tasandusseguga
(valmidus parketi/põrandaplaadi paigaldamiseks)

Torud ühendada olemasoleva kütteallika/-süsteemiga (gaasikatel). Hetkel kogu süsteem radiaatoritel, mis jääksid paika 2. korrusel ja 1. korruse toas.
Elutuba + köök + koridor = 42 m2

Sama töö tuulekojas, kus hetkel põrandaküte elektriga (paigaldatud betooni sisse).
Tuulekojas tuleb eelnevalt eemaldada olemasolevad põrandaplaadid.
Tuulekoda 3,6 m2

Elutuba/köök/koridor põranda temperatuuri peaks saama eraldi juhtida, sama kehtib tuulekoja kohta.

Maja ehitatud 2004.

Pildid, video ja failid

Hanke korraldaja: eraisik ID40720

Pakkumised

Pakkumisi kokku: 1

Ettevõte Summa Käibemaks Lisatud Vestlus
Kasutaja ikoon ID40816
Pakkuja profiil Väike nool paremale
1 760€ Ei sisalda Ei sisalda 02.02.2016 Vestlus (0)

Pakkumise kirjeldus:

Hinnapakkumine ei sisalda ühendustöid.

Küsimused hanke korraldajale

Küsimus: private ID39474   14.01.2016 18:12
Kus asub gaasikatel majas?<br />
Kas soovite ka automaatika paigaldust (kaabeldus, ajamid, toatermostaadid jne) või manuaalselt?<br />
Tuulekoja elektriline pk saab ilmselt freesimise käigus viga, kas soovita ka uut elektrilist pk või pole enam seda vaja?<br />

Teavita reeglite rikkumisest

Korraldaja vastus: 14.01.2016 22:39

Gaasikatel asub tuulekojas.<br />
Automaatikat ei soovi, piisab manuaalsest reguleerimisvõimalusest.<br />
Tuulekoja pk pole enam vaja. Mõte oli elektriline pk ühe tegemise käigus vesipõrandaküttega asendada.

Teavita reeglite rikkumisest

Küsimus: private ID40816   01.02.2016 19:02
Tere!<br />
<br />
Kas sobib, kui ma teen hinnapakkumise ainult freesimisele, torustiku paigaldamisele, tasandusseguga täitmisele? St, et ühendustöid ei teeks. <br />
<br />

Teavita reeglite rikkumisest

Korraldaja vastus: 02.02.2016 09:48

Tere,<br />
Jah, võite pakkuda ka ainult nimetatud töid.

Teavita reeglite rikkumisest

Lisa küsimus

Lisa küsimus

Minu pakkumine

Reeglid

Pakkumise kirjelduse väli on mõeldud pakkumise detailsemaks lahti kirjutamiseks. Pikema teksti mugavaks sisestamiseks klikkige kasti paremal ülaservas oleval ikoonil.
Pakkumist tehes on keelatud postitada enda kontaktandmeid (nimi, telefon, aadress jne). Me jälgime ja analüüsime pakkumisi, et vältida pettuseid ja reeglite rikkumisi.
Rikkumise puhul kasutajakonto blokeeritakse.

 

Vanemad teated:

Vaata kõiki

Sellel veebilehel kasutatakse küpsiseid. Kasutamist jätkates nõustute küpsiste kasutamisega.

Sulge
 
Minu pakkumine

Reeglid

Pakkumise kirjelduse väli on mõeldud pakkumise detailsemaks lahti kirjutamiseks. Pikema teksti mugavaks sisestamiseks klikkige kasti paremal ülaservas oleval ikoonil.
Pakkumist tehes on keelatud postitada enda kontaktandmeid (nimi, telefon, aadress jne). Me jälgime ja analüüsime pakkumisi, et vältida pettuseid ja reeglite rikkumisi.
Rikkumise puhul kasutajakonto blokeeritakse.