+ Lisa oma töö      

Otsid ehitajat "Asfalteerimistööd" valdkonnast?

Parima pakkumise ja teostaja leidmiseks lisa oma töö.

Metallrõdu

ID 3556

2214 vaatamist

Prindi

  • check Pakkumiste tegemine
    kuni 21.04.2007
  • check Võitja valik kuni
    28.04.2007
  • 3 Töö teostamine
    ja hinnang
Hanke lõpp: L, 21. aprill, 2007
Maakond: Harjumaa
Linn: Tallinn
Tööde algus: P, 01. aprill, 2007 (Soovituslik)
Tööde lõpp: R, 01. juuni, 2007 (Soovituslik)
Ehitusmaterjalid: Töö tegija poolt

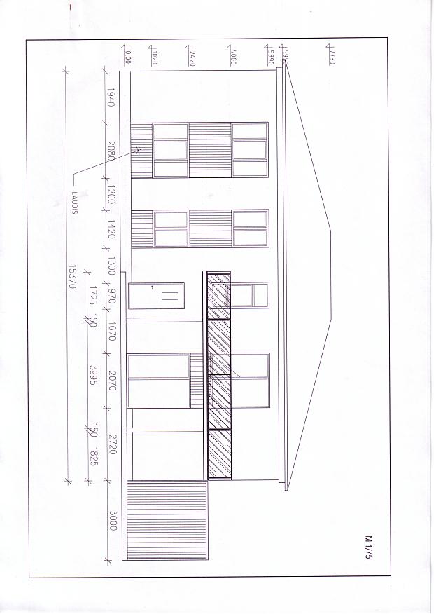
Töö sisu

Teraskonstruktsioonis rõdu. Vaata jooniseid.

Pildid, video ja failid

Hanke korraldaja: ettevõte ID5254

Pakkumised

Pakkumisi kokku: 0

Küsimused hanke korraldajale

Küsimus: private ID531   22.03.2007 10:18
Kas pakkumine tuleb teha ainult metall konstruktsioonidele või koos laudisega.

Teavita reeglite rikkumisest

Korraldaja vastus: 01.05.2026 18:49

Hea oleks kui kõik hinnad, ka klaaspiire, oleksid välja toodud.

Teavita reeglite rikkumisest

Küsimus: private ID1021   26.03.2007 16:06
Hind on koos alumise terassiga!!!

Teavita reeglite rikkumisest

Korraldaja vastus: 01.05.2026 18:49

alumine terrass on betoonpostidel ca 87 ruutmeetrit (koos tuuletõkkeseinaga 12 ruutu), rõdu tahaksin ka teha 50 cm laiema kui joonistel ehk 2 m. Rõdu laudise all on profiilplekk, mis peak vihmavee ära juhtima.

Teavita reeglite rikkumisest

Lisa küsimus

Lisa küsimus

Minu pakkumine

Reeglid

Pakkumise kirjelduse väli on mõeldud pakkumise detailsemaks lahti kirjutamiseks. Pikema teksti mugavaks sisestamiseks klikkige kasti paremal ülaservas oleval ikoonil.
Pakkumist tehes on keelatud postitada enda kontaktandmeid (nimi, telefon, aadress jne). Me jälgime ja analüüsime pakkumisi, et vältida pettuseid ja reeglite rikkumisi.
Rikkumise puhul kasutajakonto blokeeritakse.

 

Vanemad teated:

Vaata kõiki

Sellel veebilehel kasutatakse küpsiseid. Kasutamist jätkates nõustute küpsiste kasutamisega.

Sulge
 
Minu pakkumine

Reeglid

Pakkumise kirjelduse väli on mõeldud pakkumise detailsemaks lahti kirjutamiseks. Pikema teksti mugavaks sisestamiseks klikkige kasti paremal ülaservas oleval ikoonil.
Pakkumist tehes on keelatud postitada enda kontaktandmeid (nimi, telefon, aadress jne). Me jälgime ja analüüsime pakkumisi, et vältida pettuseid ja reeglite rikkumisi.
Rikkumise puhul kasutajakonto blokeeritakse.