+ Lisa oma töö      

Otsid ehitajat "Eramu ehitus" valdkonnast?

Parima pakkumise ja teostaja leidmiseks lisa oma töö.

Võtmed kätte maja ehitus Viimsis

ID 35658

4403 vaatamist

Prindi

  • check Pakkumiste tegemine
    kuni 31.03.2016
  • check Võitja valik kuni
    07.04.2016
  • 3 Töö teostamine
    ja hinnang
Hanke lõpp: N, 31. märts, 2016
Maakond: Harjumaa
Linn: Tallinn
Tööde algus: R, 01. aprill, 2016 (Soovituslik)
Tööde lõpp: L, 31. detsember, 2016 (Soovituslik)
Ehitusmaterjalid: Töö tegija poolt

Töö sisu

Kivimaja peaks olema 3 magamistoaga+ 1 kabinet, vesipõrandaküte ja umbes 150-170 m2, 2 korrust. Krunt on Viimsis olemas. Võite pakkuda omapoolseid projektid. Hinnapakkumises näidata eraldi tööde hinda ja kestus.

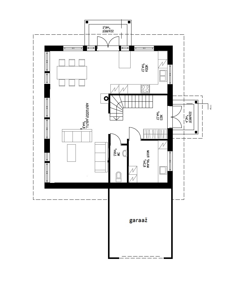
Pildid, video ja failid

Hanke korraldaja: eraisik ID41290

Pakkumised

Pakkumisi kokku: 10

Ettevõte Summa Käibemaks Lisatud Vestlus
Kasutaja ikoon ID38591
Pakkuja profiil Väike nool paremale
160 000€ Sisaldab KM Sisaldab KM 17.03.2016 Vestlus (0)

Pakkumise kirjeldus:

Tere! Ruutmeetri hind eramaj ehitusel umbes 1000-1100eur/m2. Meil on olemas ka arhitekt kes saaks koostada teile sobiva projekti.

Kasutaja ikoon ID39538
Pakkuja profiil Väike nool paremale
148 000€ Sisaldab KM Sisaldab KM 18.03.2016 Vestlus (0)
Kasutaja ikoon ID40884
Pakkuja profiil Väike nool paremale
158 809€ Ei sisalda Ei sisalda 18.03.2016 Vestlus (0)

Pakkumise kirjeldus:

Meie firma tegeleb üsna ammu sarnaste projektidega. Eramajde ehitamisel on olemas hea kogemus ning oma tööd teeme kvaliteetselt. Meeldivale koostööle lootma jäädes anname antud ülesande teostamiseks endapoolse pakkumise,kus ehitusetappide kestus on 4-5 kuud.

Kasutaja ikoon ID18214
Pakkuja profiil Väike nool paremale
1 250€ Sisaldab KM Sisaldab KM 19.03.2016 Vestlus (0)

Pakkumise kirjeldus:

Tere. Mõned eramud on tehtud 90% võtmed kätte. on kujunenud enam vähem teatud m2 hind.
Lugupidamisega.

Kasutaja ikoon ID40973
Pakkuja profiil Väike nool paremale
112 000€ Sisaldab KM Sisaldab KM 19.03.2016 Vestlus (0)

Pakkumise kirjeldus:

võtme katte.proektita proekt plus 1100 eur.

Kasutaja ikoon ID9478
Pakkuja profiil Väike nool paremale
4 000€ Ei sisalda Ei sisalda 29.03.2016 Vestlus (0)

Pakkumise kirjeldus:

Eramu põhiprojekt: arhitektuurne osa, eriosad (KV, VK, ES) + kooskõlastustegevus KOVis

Kasutaja ikoon ID35417
Pakkuja profiil Väike nool paremale
1 000€ Ei sisalda Ei sisalda 30.03.2016 Vestlus (0)

Pakkumise kirjeldus:

Tere.
Pakumise hind arvestatud m2 hinnana. Tegemist siis aeroc majaga. Välisseina paksus 375 mm. 1,5 kordne olemas on ka projekt, mida vastavalt teie soovidele saab kohendada. Maja teisel korrusel 3 magamistuba,garderoob ja wc. Esimesel korrusel kabinet, vannituba, saun,avatud elutuba sõõgiruum ja kõõk.Maja otsa jääb garaaz. Kui on lisaküsimusi siis ... Rohkem

Kasutaja ikoon ID8633
Pakkuja profiil Väike nool paremale
1 000€ Ei sisalda Ei sisalda 30.03.2016 Vestlus (0)

Pakkumise kirjeldus:

1 m2 töö ja materjal,täpsema pakkumise jaoks vaja projekt.

Kasutaja ikoon ID23896
Pakkuja profiil Väike nool paremale
1 000€ Ei sisalda Ei sisalda 31.03.2016 Vestlus (0)
Kasutaja ikoon ID41301
Pakkuja profiil Väike nool paremale
49 000€ Ei sisalda Ei sisalda 31.03.2016 Vestlus (0)

Pakkumise kirjeldus:

Tere,

tegime teile indikatiivse pakkumise 49 000 eur on tööde maksumus, materjalid minimaalne pakett 65 000 eur. Projekteerimine ja ehitusloa taotlus, 2500 eur, konstruktiivne projekt ja eritöödeprojektid (VVK, vent, jahutus, küte, elekter jt kokku 4000 eur). CAR-kindlustus ca 470 eur.Kui on täiendavat huvi võime vestelda saame väga hea hinnaga pa ... Rohkem

Küsimused hanke korraldajale

Küsimus: private ID40884   18.03.2016 14:33
1. Mis krundi kiht on? Kas mullakiht või paekivi kiht on?<br />
2. Kas teise korruse plaan on ?<br />
3. Millised välistehnovõrgud ehituse teostamiseks krundi juurde juba toodud?

Teavita reeglite rikkumisest

Korraldaja vastus:
Hanke korraldaja ei ole küsimusele veel vastanud

Küsimus: private ID18214   30.03.2016 16:10
Tere. Käed, jalad tööd täis. Võite meie pakkumise ära kustutada.<br />
Lugupidamisega.

Teavita reeglite rikkumisest

Korraldaja vastus:
Hanke korraldaja ei ole küsimusele veel vastanud

Lisa küsimus

Lisa küsimus

Minu pakkumine

Reeglid

Pakkumise kirjelduse väli on mõeldud pakkumise detailsemaks lahti kirjutamiseks. Pikema teksti mugavaks sisestamiseks klikkige kasti paremal ülaservas oleval ikoonil.
Pakkumist tehes on keelatud postitada enda kontaktandmeid (nimi, telefon, aadress jne). Me jälgime ja analüüsime pakkumisi, et vältida pettuseid ja reeglite rikkumisi.
Rikkumise puhul kasutajakonto blokeeritakse.

 

Teisi töid samas valdkonnas

Valdkonnas "Eramu ehitus" on 2 aktiivset tööd

Eramu ehitus

Asukoht: Viljandimaa, Viljandi
Aega jäänud: 5p 12h
Tehtud pakkumisi: 1

no-img Pilt puudub

Eramu ehitus. Karp kinni.

Asukoht: Lääne-Virumaa
Aega jäänud: 3p 12h
Tehtud pakkumisi: 0

Vanemad teated:

Vaata kõiki

Sellel veebilehel kasutatakse küpsiseid. Kasutamist jätkates nõustute küpsiste kasutamisega.

Sulge
 
Minu pakkumine

Reeglid

Pakkumise kirjelduse väli on mõeldud pakkumise detailsemaks lahti kirjutamiseks. Pikema teksti mugavaks sisestamiseks klikkige kasti paremal ülaservas oleval ikoonil.
Pakkumist tehes on keelatud postitada enda kontaktandmeid (nimi, telefon, aadress jne). Me jälgime ja analüüsime pakkumisi, et vältida pettuseid ja reeglite rikkumisi.
Rikkumise puhul kasutajakonto blokeeritakse.