+ Lisa oma töö      

Otsid ehitajat "Palkmajad" valdkonnast?

Parima pakkumise ja teostaja leidmiseks lisa oma töö.

Palksauna ehitus

ID 35661

5221 vaatamist

Prindi

  • check Pakkumiste tegemine
    kuni 31.03.2016
  • check Võitja valik kuni
    07.04.2016
  • 3 Töö teostamine
    ja hinnang
Hanke lõpp: N, 31. märts, 2016
Maakond: Hiiumaa
Muu asula: Kalana
Tööde algus: E, 04. aprill, 2016 (Soovituslik)
Tööde lõpp: L, 11. juuni, 2016 (Soovituslik)
Ehitusmaterjalid: Töö tegija poolt

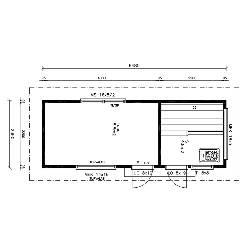
Töö sisu


Pakkuda võib käsitöö palkki või frees palkki. Läbimõõt 9-15cm.
Pindala 6,5 X 2,5.
Vundamentti hetkel pole ja sellele oleks hea saada samuti hind. Pinnas on hea. 40cm mulda ja vastas liiv.
Leili osa valatud, riietus osa postidele.
Vundamendi jaoks on soojustus materjal ja raud armatuur olemas.

Puit osale transport, paigaldus, katusetoolid, roov, plekk katuse paigaldus, aknad, uks.
Lisatöödest arutame hiljem.
Juurdepääs on olema.

Pildid, video ja failid

Hanke korraldaja: eraisik ID41292

Pakkumised

Pakkumisi kokku: 7

Ettevõte Summa Käibemaks Lisatud Vestlus
Kasutaja ikoon ID41129
Pakkuja profiil Väike nool paremale
15 000€ Sisaldab KM Sisaldab KM 20.03.2016 Vestlus (0)
Kasutaja ikoon ID36855
Pakkuja profiil Väike nool paremale
13 800€ Ei sisalda Ei sisalda 20.03.2016 Vestlus (0)

Pakkumise kirjeldus:

Ettemaks materjali ostmiseks. Hind sisaldab "võtmed kätte". Paar aastat tagasi tegime Kalanasse ühe suure palkmaja. Tervitades.

Kasutaja ikoon ID37474
Pakkuja profiil Väike nool paremale
13 900€ Ei sisalda Ei sisalda 22.03.2016 Vestlus (0)

Pakkumise kirjeldus:

Käsitöö palk paksusega 15cm.

Kasutaja ikoon ID37669
Pakkuja profiil Väike nool paremale
11 000€ Ei sisalda Ei sisalda 24.03.2016 Vestlus (0)

Pakkumise kirjeldus:

Seiad tuleks 15 cm käsitööna tehtud palgist.Hind sisaldab paigaldust ,transporti, vundamendi ehitust, aknais uksi, valtsplekk katust.

Kasutaja ikoon ID22308
Pakkuja profiil Väike nool paremale
12 900€ Sisaldab KM Sisaldab KM 29.03.2016 Vestlus (0)

Pakkumise kirjeldus:

Tere, pakkume palkmaja 6 x 4.5m, viilkatusega, seina paksus 18cm. Hinna sees on puit osale transport, paigaldus, katuse soojustus, roov, voodrilaud, plekk katuse paigaldus, aknad, uks, puidust põrand soojustusega, sauna lava. Leili ruum 9m2 ja puhkeruum 18m2. Tarneaeg koos paigaldusega 3-4 nädalad

Kasutaja ikoon ID35459
Pakkuja profiil Väike nool paremale
10 388€ Sisaldab KM Sisaldab KM 29.03.2016 Vestlus (0)

Pakkumise kirjeldus:

Tere, Meie pakkumine sisaldab 6,5x2,5 freespruss sauna (tapid üleulatuvad). Freesprussi paksus on 90mm ja kattev kõrgus 130mm. Hind sisaldab vundamenti, terviklikku hoonet(üks välisuks, üks siseuks, aknad, lae ja põranda soojustus, laelauad, põrandalauad, põranda karkass riietusruumil, katus, tuulekastid, katuse katteks kärgpapp). Saun väljast valm ... Rohkem

Kasutaja ikoon ID41301
Pakkuja profiil Väike nool paremale
11 900€ Ei sisalda Ei sisalda 31.03.2016 Vestlus (0)

Pakkumise kirjeldus:

Tere, pakkumine on tehtud vastavalt teie poolt esitatud hankele. Geodeet,kaevetööd mulde eemaldamine, vundamendi ehitus,täitepinnase paigaldamine, aluse ehitus, profileerimine ja tihendamine , saunapõranda soojustamine ja tasandamine, freesprussist h-180 seinte ehitus, sarikad, aluskate, tuuletõkke, distantsliist, roovitus, katusekate, akende ja uste ta ... Rohkem

Küsimused hanke korraldajale

Hanke korraldajale ei ole veel küsimusi esitatud.

Lisa küsimus

Lisa küsimus

Minu pakkumine

Reeglid

Pakkumise kirjelduse väli on mõeldud pakkumise detailsemaks lahti kirjutamiseks. Pikema teksti mugavaks sisestamiseks klikkige kasti paremal ülaservas oleval ikoonil.
Pakkumist tehes on keelatud postitada enda kontaktandmeid (nimi, telefon, aadress jne). Me jälgime ja analüüsime pakkumisi, et vältida pettuseid ja reeglite rikkumisi.
Rikkumise puhul kasutajakonto blokeeritakse.

 

Vanemad teated:

Vaata kõiki

Sellel veebilehel kasutatakse küpsiseid. Kasutamist jätkates nõustute küpsiste kasutamisega.

Sulge
 
Minu pakkumine

Reeglid

Pakkumise kirjelduse väli on mõeldud pakkumise detailsemaks lahti kirjutamiseks. Pikema teksti mugavaks sisestamiseks klikkige kasti paremal ülaservas oleval ikoonil.
Pakkumist tehes on keelatud postitada enda kontaktandmeid (nimi, telefon, aadress jne). Me jälgime ja analüüsime pakkumisi, et vältida pettuseid ja reeglite rikkumisi.
Rikkumise puhul kasutajakonto blokeeritakse.