+ Lisa oma töö      

Otsid ehitajat "Vundamenditööd" valdkonnast?

Parima pakkumise ja teostaja leidmiseks lisa oma töö.

Postvundamendi rajamine, terrassi ehitus ja pinnasetööd

ID 35705

5302 vaatamist

Prindi

  • check Pakkumiste tegemine
    kuni 28.03.2016
  • check Võitja valik kuni
    04.04.2016
  • 3 Töö teostamine
    ja hinnang
Hanke lõpp: E, 28. märts, 2016
Maakond: Valgamaa
Linn: Otepää
Tööde algus: E, 18. aprill, 2016 (Soovituslik)
Tööde lõpp: R, 22. aprill, 2016 (Soovituslik)
Ehitusmaterjalid: Töö tegija poolt

Töö sisu

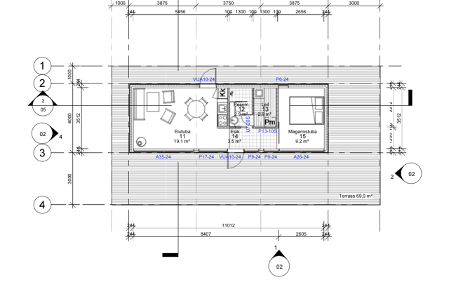
Vaja teostada moodulmaja paigalduseks pinnasetööd, vundamenditööd ning terrassi ehitus Lõuna-Eestis.
Vajalikud joonised on manuses.

Pildid, video ja failid

Hanke korraldaja: eraisik ID34511

Pakkumised

Pakkumisi kokku: 4

Ettevõte Summa Käibemaks Lisatud Vestlus
Kasutaja ikoon ID8637
Pakkuja profiil Väike nool paremale
9 800€ Ei sisalda Ei sisalda 23.03.2016 Vestlus (0)

Pakkumise kirjeldus:

Tere. Hind sisaldab soovitud tööde teostuse koos materjalidega. Ettemaks materjalide osas pärast tarnet objektile. Tegemist on ilmselt majatehase projektiga, sarnaseid postvundamendil element hooneid oleme eelnevalt paigaldatud Peipsi rannas, Saaremaal ja Soomes tehtud tööde pildid meie kontol. Tööd teostame 3-4 mehelise brigaadina ja tehnikaga eeldus ... Rohkem

Kasutaja ikoon ID38240
Pakkuja profiil Väike nool paremale
6 500€ Ei sisalda Ei sisalda 23.03.2016 Vestlus (0)

Pakkumise kirjeldus:

Tere!

Pakkumine sisaldab vundamendi ja terassi ehitus koos materjalidega.

Kasutaja ikoon ID37808
Pakkuja profiil Väike nool paremale
8 300€ Ei sisalda Ei sisalda 24.03.2016 Vestlus (0)
Kasutaja ikoon ID40505
Pakkuja profiil Väike nool paremale
10 000€ Ei sisalda Ei sisalda 28.03.2016 Vestlus (0)

Küsimused hanke korraldajale

Küsimus: private ID39236   22.03.2016 10:09
Tervist. Kas terrassile eraldi pakkumist võib esitada? Lugupidamisega

Teavita reeglite rikkumisest

Korraldaja vastus: 22.03.2016 14:16

Tere, <br />
<br />
Võite teha terrassile ka eraldi pakkumise kuid eelistaks pigem kogu tööde teostamist.

Teavita reeglite rikkumisest

Küsimus: private ID38572   25.03.2016 21:40
Tere. Kas Teil vundamendi projekti pole (lõige, mis materjalist, vundamendi seinte laius, korruse plaanilt pole võimalik lugeda välisseina paksust, jne)? Eriti oluline on milline pinnas krundil on ja kui sügaval on kandev pinnase kiht? Kui kõrge jääb maja sokkel? Kas vundamendi välisseinte vahele tuleb kandvaitele sintele tugimüüre? Teile parimat soovides.

Teavita reeglite rikkumisest

Korraldaja vastus:
Hanke korraldaja ei ole küsimusele veel vastanud

Lisa küsimus

Lisa küsimus

Minu pakkumine

Reeglid

Pakkumise kirjelduse väli on mõeldud pakkumise detailsemaks lahti kirjutamiseks. Pikema teksti mugavaks sisestamiseks klikkige kasti paremal ülaservas oleval ikoonil.
Pakkumist tehes on keelatud postitada enda kontaktandmeid (nimi, telefon, aadress jne). Me jälgime ja analüüsime pakkumisi, et vältida pettuseid ja reeglite rikkumisi.
Rikkumise puhul kasutajakonto blokeeritakse.

 

Vanemad teated:

Vaata kõiki

Sellel veebilehel kasutatakse küpsiseid. Kasutamist jätkates nõustute küpsiste kasutamisega.

Sulge
 
Minu pakkumine

Reeglid

Pakkumise kirjelduse väli on mõeldud pakkumise detailsemaks lahti kirjutamiseks. Pikema teksti mugavaks sisestamiseks klikkige kasti paremal ülaservas oleval ikoonil.
Pakkumist tehes on keelatud postitada enda kontaktandmeid (nimi, telefon, aadress jne). Me jälgime ja analüüsime pakkumisi, et vältida pettuseid ja reeglite rikkumisi.
Rikkumise puhul kasutajakonto blokeeritakse.