+ Lisa oma töö      

Otsid ehitajat "Põrandatööd" valdkonnast?

Parima pakkumise ja teostaja leidmiseks lisa oma töö.

PVC/Linoleumi paigaldamine saunahoonesse

ID 35717

4335 vaatamist

Prindi

  • check Pakkumiste tegemine
    kuni 25.03.2016
  • check Võitja valik kuni
    01.04.2016
  • 3 Töö teostamine
    ja hinnang
Hanke lõpp: R, 25. märts, 2016
Maakond: Järvamaa
Muu asula: Koeru alevik
Tööde algus: K, 23. märts, 2016 (Soovituslik)
Tööde lõpp: K, 30. märts, 2016 (Soovituslik)
Ehitusmaterjalid: Töö tellija poolt

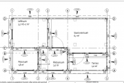
Töö sisu

Soov paigaldada freesprussist sauna pesu- ja leiliruumi põrandale ülestõstega PVC või linoleum (eelistatult rohkem koormust kannatav) põrandakate.
Eelnevalt on paigaldatud kaldega OSB plaat.
Kahe ruumi vahel (leiliruumi ukse all) on mõeldud trapp, et leiliruumi ja pesuruumi vesi mõlemast ruumist ära voolaks.
Arvestatud on vee äravool sauna taha pinnasesse.

Pildid, video ja failid

Hanke korraldaja: ettevõte ID40623

Pakkumised

Pakkumisi kokku: 3

Ettevõte Summa Käibemaks Lisatud Vestlus
Kasutaja ikoon ID40785
Pakkuja profiil Väike nool paremale
1 900€ Ei sisalda Ei sisalda 23.03.2016 Vestlus (0)

Pakkumise kirjeldus:

Hind sisaldab põranda katet, põranda katte paigaldus liimi, ja põrandakatte paigalduse hinda.

Kasutaja ikoon ID41337
Pakkuja profiil Väike nool paremale
1 300€ Ei sisalda Ei sisalda 23.03.2016 Vestlus (0)

Pakkumise kirjeldus:

Hind sisaldab materjali ja tööderaha.

Kasutaja ikoon ID38907
Pakkuja profiil Väike nool paremale
780€ Sisaldab KM Sisaldab KM 23.03.2016 Vestlus (0)

Pakkumise kirjeldus:

Tere.

Pakkumine sisaldab järgmist:
Paigaldust ülespöördega seinale kuni 150mm.
Põrandakatet Granit Multisafe mis on spetsiaalne niiskete ruumide põrandakate, mis on disainitud suurema libisemiskindluse tagamiseks.
Põranda liimi.
Pinna puhastust.
Pvc keevitamist.
Garantiid 2 aastat.


Lugupidamisega.
Firma

Küsimused hanke korraldajale

Küsimus: private ID39130   22.03.2016 13:37
Kas liitekohti ei tule(keevitust).materjal ikka teie poolt?

Teavita reeglite rikkumisest

Korraldaja vastus: 23.03.2016 09:54

Kuna tõstetud servadega, siis ikka peaks olema liitekohad tõstetud servades.<br />
Samuti ilmselt on mõistlik paigaldada kahte ruumi eraldi paan ja siis liita need ukse all või lähedal.<br />
Materjal on teostaja poolt. Sinna pole mõeldud mingit eridisainiga põrandat! Lihtne puiduga veidi ehk harmoneeruv, kuid mitte tingimata.

Teavita reeglite rikkumisest

Küsimus: private ID41337   23.03.2016 13:10
Loomulikult tulevad ka liitekohad nurkadesse kuna matt on seina peale tõstega ja liitekohad peavad olema veekindlad.<br />
Kas kõikidesse ruumidesse tuleb sama tooniga matt või erinevad ?

Teavita reeglite rikkumisest

Korraldaja vastus: 23.03.2016 13:14

Mõlemasse ruumi tuleb sama materjal.<br />
<br />
NB! Märgin veel ära (vabandustega), et materjalid tulevad teostaja poolt (hanke lisamisel tekkinud eksitus)!

Teavita reeglite rikkumisest

Küsimus: private ID38907   23.03.2016 16:31
Tere.<br />
<br />
Kas kaldega OSB plaat on paigas või on soovitud selle paigaldust ka ? Kui on paigas, kas on vaja pahtli parandus töid ?<br />
<br />
<br />
<br />
Lugupidamisega.<br />
Firma

Teavita reeglite rikkumisest

Korraldaja vastus: 23.03.2016 17:27

Tere<br />
<br />
Nagu kirjutasin, on kaldega OSB juba paigaldatud.<br />
<br />
Pahtliparandusi pole vaja teostada.

Teavita reeglite rikkumisest

Küsimus: private ID32168   23.03.2016 19:23
Tere<br />
Kas PVC liimitakse otse palgile või vajab seina alumine äär eeltöid?<br />
Milline on plaanitud trapp? (PVC le mõeldud?)<br />
Kas materjalide osas on ka mingi hinnaskaala kuhu võiks jääda?<br />
Plaanilt läheb siis tegemisse ainult leiliruum ja pesuruum?<br />
<br />
NB! Linoleum on naturaalne materjal ja ei sobi märgadesse ruumidesse.<br />
<br />
Lugupidamisega

Teavita reeglite rikkumisest

Korraldaja vastus: 24.03.2016 09:08

Tere<br />
<br />
Tänan küsimuste ning põgusa seletuse eest!<br />
<br />
PVC liimitakse otse alumisele palgile (tegemist liimlamellprussiga) ning OSB-le.<br />
Trapp panna vastav viimistluskattele.<br />
Ei ole hinnaskaalat, kuid antud tööde osas võiks jääda pigem allapoole keskmist.<br />
Paanilt läheb tegemisse ainult leiliruum ja pesuruum. Ülejäänud ruumides on juba põrandalaud maas.<br />
<br />
Tervitustega

Teavita reeglite rikkumisest

Lisa küsimus

Lisa küsimus

Minu pakkumine

Reeglid

Pakkumise kirjelduse väli on mõeldud pakkumise detailsemaks lahti kirjutamiseks. Pikema teksti mugavaks sisestamiseks klikkige kasti paremal ülaservas oleval ikoonil.
Pakkumist tehes on keelatud postitada enda kontaktandmeid (nimi, telefon, aadress jne). Me jälgime ja analüüsime pakkumisi, et vältida pettuseid ja reeglite rikkumisi.
Rikkumise puhul kasutajakonto blokeeritakse.

 

Vanemad teated:

Vaata kõiki

Sellel veebilehel kasutatakse küpsiseid. Kasutamist jätkates nõustute küpsiste kasutamisega.

Sulge
 
Minu pakkumine

Reeglid

Pakkumise kirjelduse väli on mõeldud pakkumise detailsemaks lahti kirjutamiseks. Pikema teksti mugavaks sisestamiseks klikkige kasti paremal ülaservas oleval ikoonil.
Pakkumist tehes on keelatud postitada enda kontaktandmeid (nimi, telefon, aadress jne). Me jälgime ja analüüsime pakkumisi, et vältida pettuseid ja reeglite rikkumisi.
Rikkumise puhul kasutajakonto blokeeritakse.