+ Lisa oma töö      

Otsid ehitajat "Ventilatsioonitööd" valdkonnast?

Parima pakkumise ja teostaja leidmiseks lisa oma töö.

Ventilatsiooniprojekt +teostus

ID 35799

1013 vaatamist

Prindi

  • check Pakkumiste tegemine
    kuni 29.03.2016
  • check Võitja valik kuni
    05.04.2016
  • 3 Töö teostamine
    ja hinnang
Hanke lõpp: T, 29. märts, 2016
Maakond: Võrumaa
Muu asula: Võlsi
Tööde algus: T, 12. aprill, 2016 (Soovituslik)
Tööde lõpp: K, 20. aprill, 2016 (Soovituslik)
Ehitusmaterjalid: Töö tegija poolt

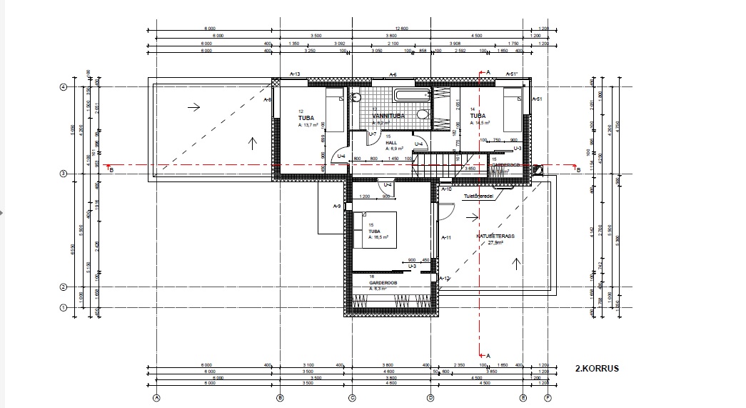
Töö sisu

Soov oleks soojustagastusega ventilatsioon ehitusjärgus eramusse. Ventilatsiooniseade võiks asuda tehnoruumis lae all. Esimesel korrusel võimalus lage tuua alla rohkem, kuni 20cm, teisel korrusel peaks vast kasutama kandilisi torusid, sest lage saab alla tuua max 10cm.

Pildid, video ja failid

Hanke korraldaja: eraisik ID41426

Pakkumised

Pakkumisi kokku: 0

Küsimused hanke korraldajale

Hanke korraldajale ei ole veel küsimusi esitatud.

Lisa küsimus

Lisa küsimus

Minu pakkumine

Reeglid

Pakkumise kirjelduse väli on mõeldud pakkumise detailsemaks lahti kirjutamiseks. Pikema teksti mugavaks sisestamiseks klikkige kasti paremal ülaservas oleval ikoonil.
Pakkumist tehes on keelatud postitada enda kontaktandmeid (nimi, telefon, aadress jne). Me jälgime ja analüüsime pakkumisi, et vältida pettuseid ja reeglite rikkumisi.
Rikkumise puhul kasutajakonto blokeeritakse.

 

Teisi töid samas valdkonnas

Valdkonnas "Ventilatsioonitööd" on 3 aktiivset tööd

Eramaja ventilatsioonitööd

Asukoht: Tartumaa, Soinaste
Aega jäänud: 6p 1h
Tehtud pakkumisi: 1

no-img Pilt puudub

Ventilatsiooni paigaldamine

Asukoht: Tartumaa, Tartu
Aega jäänud: 3p 1h
Tehtud pakkumisi: 0

Vanemad teated:

Vaata kõiki

Sellel veebilehel kasutatakse küpsiseid. Kasutamist jätkates nõustute küpsiste kasutamisega.

Sulge
 
Minu pakkumine

Reeglid

Pakkumise kirjelduse väli on mõeldud pakkumise detailsemaks lahti kirjutamiseks. Pikema teksti mugavaks sisestamiseks klikkige kasti paremal ülaservas oleval ikoonil.
Pakkumist tehes on keelatud postitada enda kontaktandmeid (nimi, telefon, aadress jne). Me jälgime ja analüüsime pakkumisi, et vältida pettuseid ja reeglite rikkumisi.
Rikkumise puhul kasutajakonto blokeeritakse.