+ Lisa oma töö      

Otsid ehitajat "Puitehitised" valdkonnast?

Parima pakkumise ja teostaja leidmiseks lisa oma töö.

Hange on lõppenud!

Võitjaks osutus kasutaja ID 35621

Auto varjualuse ehitus

ID 36079

11697 vaatamist

Prindi

  • check Pakkumiste tegemine
    kuni 04.05.2016
  • check Võitja valik kuni
    23.05.2016
  • 3 Töö teostamine
    ja hinnang
Hanke lõpp: K, 4. mai, 2016
Maakond: Harjumaa
Linn: Tallinn
Tööde algus: K, 04. mai, 2016 (Soovituslik)
Tööde lõpp: E, 04. juuli, 2016 (Soovituslik)
Ehitusmaterjalid: Töö tegija poolt

Töö sisu

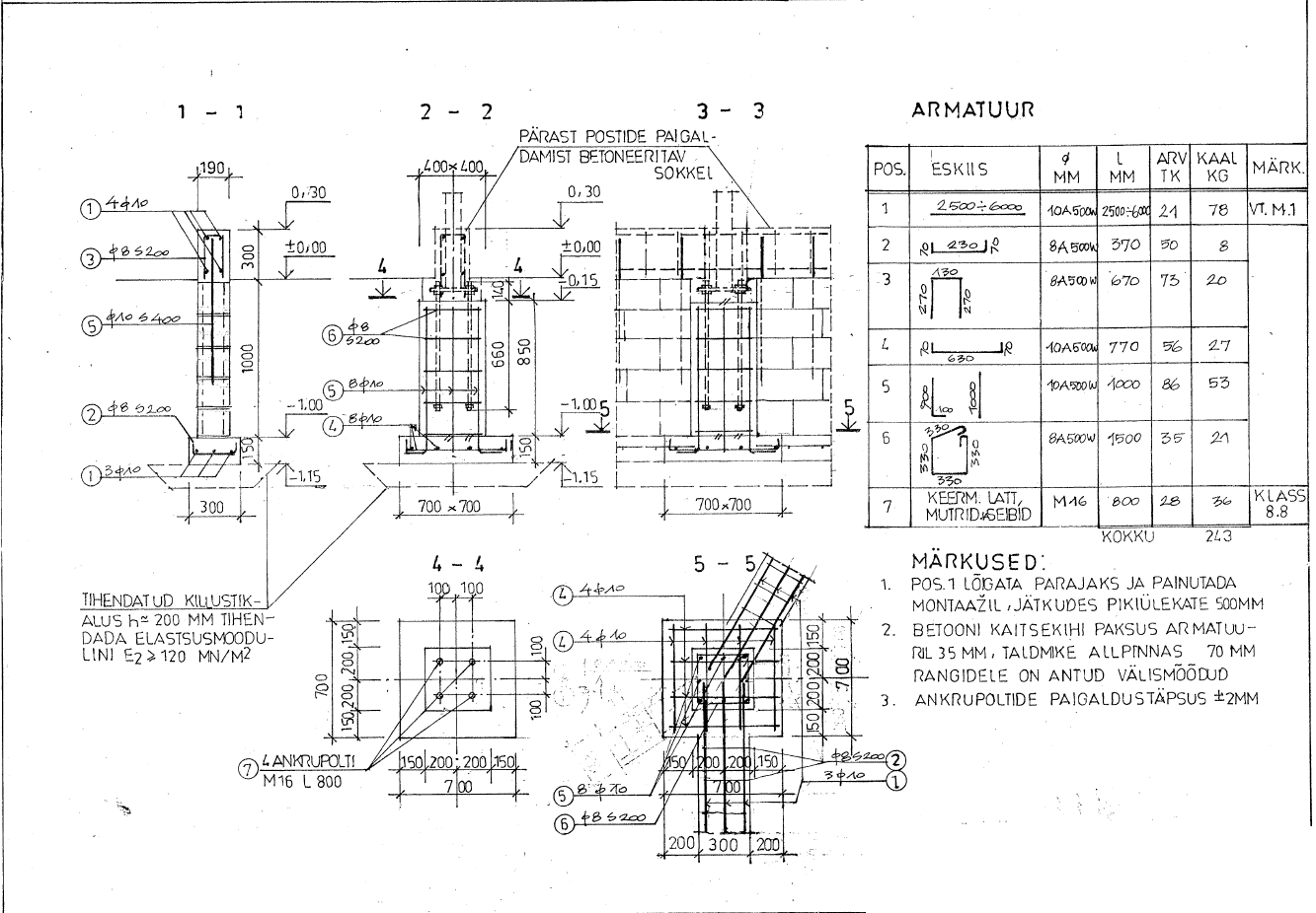
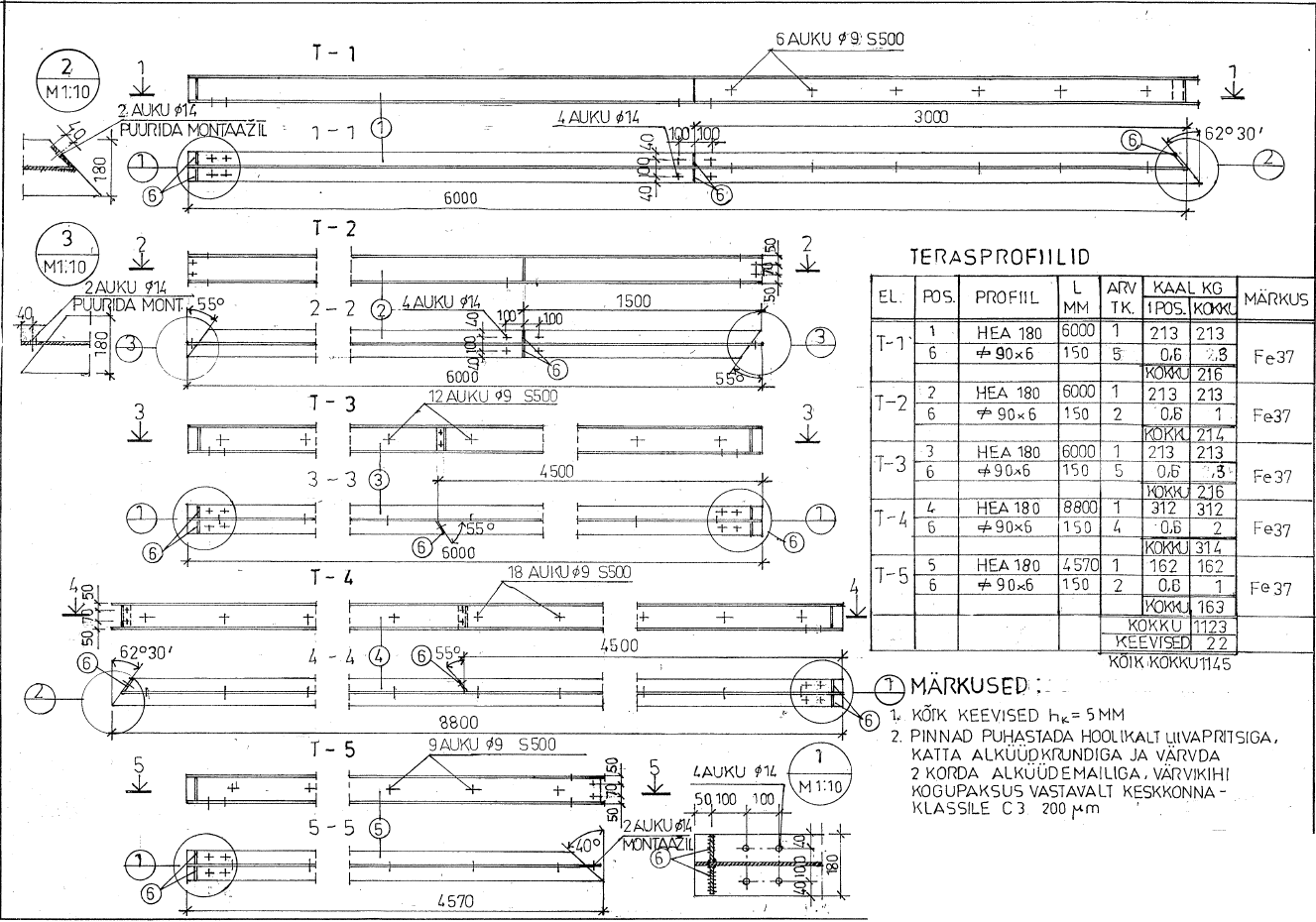
Kahekohalise autovarjualuse ehitus, tööjoonised on olemas.
Kandevkonstruktsiooniks on kuumtsink teraspostid ja terastalad - tellija poolt, montaaz ehitaja poolt.
Ülejäänud konstruktsioon on puidust ja varjualune on viimisletud voodrilauaga, kaetud Ruuki valtsplekiga.

Pildid, video ja failid

Hanke korraldaja: eraisik ID41682

Pakkumised

Pakkumisi kokku: 2

Ettevõte Summa Käibemaks Lisatud Vestlus
Kasutaja ikoon ID35621
Pakkuja profiil Väike nool paremale
16 300€ Ei sisalda Ei sisalda 03.05.2016 Vestlus (9)
Kasutaja ikoon ID8633
Pakkuja profiil Väike nool paremale
17 000€ Ei sisalda Ei sisalda 04.05.2016 Vestlus (1)

Küsimused hanke korraldajale

Küsimus: private ID35621   25.04.2016 11:49
Tere! Sooviks täiendavaid andmeid(suurus, katuse pindala, seinte mõõdud)?

Teavita reeglite rikkumisest

Korraldaja vastus: 25.04.2016 14:58

Tere, lisasin hanke juurde tööprojekti joonised, seal on kõik andmed kirjas. Terv.

Teavita reeglite rikkumisest

Küsimus: private ID35621   02.05.2016 21:27
Tere! kas katus peab olema tsingitud plekist?Terv.

Teavita reeglite rikkumisest

Korraldaja vastus: 04.05.2016 09:37

Tere jah, Ruukki toode peaks olema.

Teavita reeglite rikkumisest

Lisa küsimus

Lisa küsimus

Minu pakkumine

Reeglid

Pakkumise kirjelduse väli on mõeldud pakkumise detailsemaks lahti kirjutamiseks. Pikema teksti mugavaks sisestamiseks klikkige kasti paremal ülaservas oleval ikoonil.
Pakkumist tehes on keelatud postitada enda kontaktandmeid (nimi, telefon, aadress jne). Me jälgime ja analüüsime pakkumisi, et vältida pettuseid ja reeglite rikkumisi.
Rikkumise puhul kasutajakonto blokeeritakse.

 

Teisi töid samas valdkonnas

Valdkonnas "Puitehitised" on 2 aktiivset tööd

Terrass + Puidust Pergola

Asukoht: Harjumaa, Lähtse
Aega jäänud: 3p 8h
Tehtud pakkumisi: 1

Kuur, auto varjualune

Asukoht: Pärnumaa, Kabli
Aega jäänud: 12p 8h
Tehtud pakkumisi: 1

Vanemad teated:

Vaata kõiki

Sellel veebilehel kasutatakse küpsiseid. Kasutamist jätkates nõustute küpsiste kasutamisega.

Sulge
 
Minu pakkumine

Reeglid

Pakkumise kirjelduse väli on mõeldud pakkumise detailsemaks lahti kirjutamiseks. Pikema teksti mugavaks sisestamiseks klikkige kasti paremal ülaservas oleval ikoonil.
Pakkumist tehes on keelatud postitada enda kontaktandmeid (nimi, telefon, aadress jne). Me jälgime ja analüüsime pakkumisi, et vältida pettuseid ja reeglite rikkumisi.
Rikkumise puhul kasutajakonto blokeeritakse.