+ Lisa oma töö      

Otsid ehitajat "Elektritööd" valdkonnast?

Parima pakkumise ja teostaja leidmiseks lisa oma töö.

Hange on lõppenud!

Võitjaks osutus kasutaja ID 33421

Korraldaja hinnang tehtud tööle

5.0
20.06.2016
Töökiirus: 12345
Kvaliteet: 12345
Hind: 12345

Soovitab kõigile!!! Kiire, kvaliteetne ja väga korralik firma! - Oleg G.

Elektritööd Maardus

ID 36367

7287 vaatamist

Prindi

  • check Pakkumiste tegemine
    kuni 12.05.2016
  • check Võitja valik kuni
    19.05.2016
  • 3 Töö teostamine
    ja hinnang
Hanke lõpp: N, 12. mai, 2016
Maakond: Harjumaa
Linn: Maardu
Tööde algus: R, 13. mai, 2016 (Soovituslik)
Tööde lõpp: P, 22. mai, 2016 (Soovituslik)
Ehitusmaterjalid: Töö tellija poolt

Töö sisu

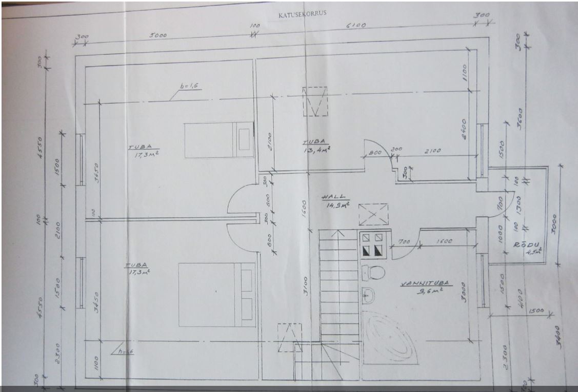
Elamumajas vaja teha elektritööd teisel korrusel kus asuvad kolm magamistoad ja vannituba. Uldpind teine korruse 100 m2. Elekter lihtne: igas magamistoas vaja teha pistikud 220 ja valgustus ja internet. Elektrikapp asub esimisel korrusel. Ka vaja teha korralik kapp. Kapp praegu valmis aga vaja kõik kontrollida ja korektne ühendada. Esimisel korrusel elekter tehtud aga vaja teha välis maja valgustus ja mittu pistikud.
Vaja teha ka elektriproekt kogu majale ja mõõdustamine.

Pildid, video ja failid

Hanke korraldaja: eraisik ID41953

Pakkumised

Pakkumisi kokku: 5

Ettevõte Summa Käibemaks Lisatud Vestlus
Kasutaja ikoon ID25180
Pakkuja profiil Väike nool paremale
1 600€ Sisaldab KM Sisaldab KM 09.05.2016 Vestlus (6)

Pakkumise kirjeldus:

Kõik vajalikud elektritööd ja dokumentatsioon elektripaigaldise kasutusele võtmise saamiseks. Lugupidamisega.

Kasutaja ikoon ID39897
Pakkuja profiil Väike nool paremale
3 200€ Sisaldab KM Sisaldab KM 09.05.2016 Vestlus (0)

Pakkumise kirjeldus:

Elektripaigaldise vajalike tööde teostamine, elektrikilbi nõuetekohaseks muutmine ning kogu hoone projekt. Hinnas sees kõik vajalikud materjalid. Lõpptulemuseks vastavusdeklaratsioonid, mõõdistusprotokoll ja nõuetekohasuse tunnistus. MÕÕDISTAJA ON SÕLTUMATU ISIK!

Kasutaja ikoon ID41967
Pakkuja profiil Väike nool paremale
1 800€ Ei sisalda Ei sisalda 10.05.2016 Vestlus (0)
Kasutaja ikoon ID33421
Pakkuja profiil Väike nool paremale
1 350€ Ei sisalda Ei sisalda 11.05.2016 Vestlus (12)

Pakkumise kirjeldus:

Tere. Teen pakkumise kogu soovitud elektritööle koos materjalide ja tehnilise kontrolli/mõõdistamise dokumentatsiooni väljastamiseni. Lugupidamisega, Tarmo

Kasutaja ikoon ID34640
Pakkuja profiil Väike nool paremale
2 000€ Ei sisalda Ei sisalda 11.05.2016 Vestlus (0)

Pakkumise kirjeldus:

TÖÖDE KIRJELDUS: 1) Elamumajas teisel korrusel el.juhtmistiku, pistikute, valgustuse ja internetipistiku paigaldus. 2) Elektrikappi korrastustööd. 3) Maja välisvalgustuse kuni 5tk ja välispistikute kuni 5tk paigaldus. 4) Eramu tehniline kontroll ja nõuetekohasuse tunnistus.
Omame pikaajalist töökogemust elektrivaldkonnas. Omame MTR numbri ehitamise ... Rohkem

Küsimused hanke korraldajale

Küsimus: private ID41671   09.05.2016 12:25
Tere,<br />
<br />
1. Kas tegemist on uue ehitisega? Kas kaabli paigaldus on freesimisega või kõik läheb kipsi/põranda/lae alla?<br />
2. Millist välisvalgustust planeerite - postid, seina, prožektorid (LED?)<br />
3. Kas kilbil on olemas nõuetele vastav katsetus- ja mõõdistusprotokoll ning pass? Kas kilbis on ruumi kõide ühenduste jaoks?

Teavita reeglite rikkumisest

Korraldaja vastus: 10.05.2016 06:22

1. Jah see on uus ehitus. Ma ostan nii et esimene korrus valmis aga teine katuse korrus vaja teha. Esimisel korrusel elekter teen vana omanik ise ja selle parast ei ole proekt.<br />
2. Hetkel ei tea. Praegu mõtlen teha postid või seina. <br />
3. Jah.

Teavita reeglite rikkumisest

Küsimus: private ID41671   10.05.2016 10:12
Kas soovite ametliku projekti koostamist tööde lõpus?

Teavita reeglite rikkumisest

Korraldaja vastus: 11.05.2016 09:49

Ma tahan proekt, lealisatsioon ja kõik mõtmine ja aktid, muud dokumendit.

Teavita reeglite rikkumisest

Küsimus: private ID41671   10.05.2016 10:35
Kas teise korruse tarbimiskohtadeks tulevad:<br />
Pistikud<br />
Valgustus<br />
Radiaarorid?<br />
Kliimaseadmed?<br />
jne<br />
<br />
Kas internerikaabli paigaluds on ka mõeldud hanke tööde all?

Teavita reeglite rikkumisest

Korraldaja vastus: 10.05.2016 21:09

Tere,Pistikud ja valgustus - see kõik. Soojus - veeradiatorid ei ole vaja elekter ja klimaseadmed esimisel korrusel.

Teavita reeglite rikkumisest

Lisa küsimus

Lisa küsimus

Minu pakkumine

Reeglid

Pakkumise kirjelduse väli on mõeldud pakkumise detailsemaks lahti kirjutamiseks. Pikema teksti mugavaks sisestamiseks klikkige kasti paremal ülaservas oleval ikoonil.
Pakkumist tehes on keelatud postitada enda kontaktandmeid (nimi, telefon, aadress jne). Me jälgime ja analüüsime pakkumisi, et vältida pettuseid ja reeglite rikkumisi.
Rikkumise puhul kasutajakonto blokeeritakse.

 

Teisi töid samas valdkonnas

Valdkonnas "Elektritööd" on 9 aktiivset tööd

Elektritööd

Asukoht: Harjumaa, Tallinn
Aega jäänud: 4p 20h
Tehtud pakkumisi: 5

Korteriühistu elektri väiketööd

Asukoht: Harjumaa, Tallinn
Aega jäänud: 3p 20h
Tehtud pakkumisi: 2

Vanemad teated:

Vaata kõiki

Sellel veebilehel kasutatakse küpsiseid. Kasutamist jätkates nõustute küpsiste kasutamisega.

Sulge
 
Minu pakkumine

Reeglid

Pakkumise kirjelduse väli on mõeldud pakkumise detailsemaks lahti kirjutamiseks. Pikema teksti mugavaks sisestamiseks klikkige kasti paremal ülaservas oleval ikoonil.
Pakkumist tehes on keelatud postitada enda kontaktandmeid (nimi, telefon, aadress jne). Me jälgime ja analüüsime pakkumisi, et vältida pettuseid ja reeglite rikkumisi.
Rikkumise puhul kasutajakonto blokeeritakse.