+ Lisa oma töö      

Otsid ehitajat "Maalritööd" valdkonnast?

Parima pakkumise ja teostaja leidmiseks lisa oma töö.

Tapeetimine eramus

ID 36375

3066 vaatamist

Prindi

  • check Pakkumiste tegemine
    kuni 23.05.2016
  • check Võitja valik kuni
    02.06.2016
  • 3 Töö teostamine
    ja hinnang
Hanke lõpp: E, 23. mai, 2016
Maakond: Harjumaa
Linn: Saue
Tööde algus: K, 01. juuni, 2016 (Soovituslik)
Tööde lõpp: N, 23. juuni, 2016 (Soovituslik)
Ehitusmaterjalid: Töö tellija poolt

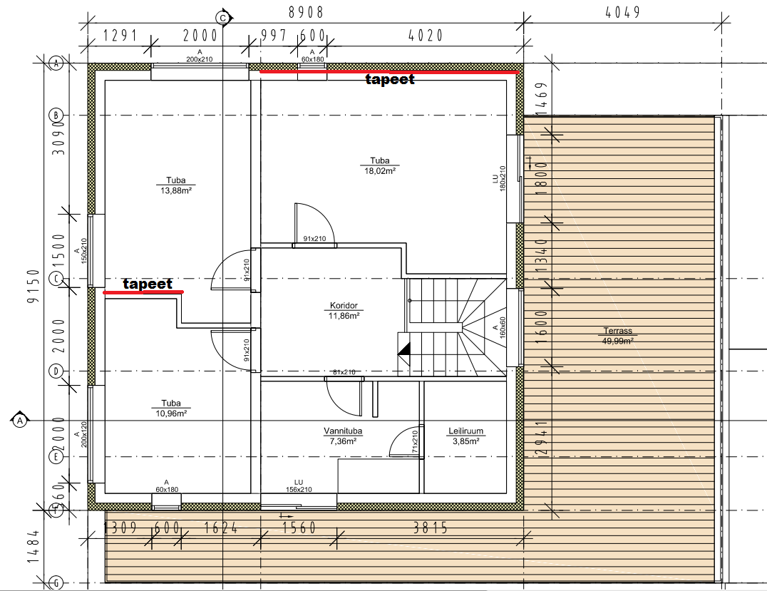
Töö sisu

Otsime tapeetimistööde tegijat kohe valmivale eramule Sauel. Peab olema kogenud ja väga korrektne.

Neto pinnad:
Tapeeeditav pind: on 24,2 m2
3 erinevat seina. Ühes on akna ava.
Plaanid lisas.

Tapeetimisega saaks alustada paari nädala pärast/umbes juuni alguses.

Pildid, video ja failid

Hanke korraldaja: eraisik ID41958

Pakkumised

Pakkumisi kokku: 4

Ettevõte Summa Käibemaks Lisatud Vestlus
Kasutaja ikoon ID37013
Pakkuja profiil Väike nool paremale
325€ Sisaldab KM Sisaldab KM 09.05.2016 Vestlus (0)
Kasutaja ikoon ID8633
Pakkuja profiil Väike nool paremale
280€ Ei sisalda Ei sisalda 09.05.2016 Vestlus (0)

Pakkumise kirjeldus:

töö

Kasutaja ikoon ID41977
Pakkuja profiil Väike nool paremale
200€ Ei sisalda Ei sisalda 10.05.2016 Vestlus (0)

Pakkumise kirjeldus:

hind ei sisalda materjale. Ainult töö

Kasutaja ikoon ID33965
Pakkuja profiil Väike nool paremale
250€ Ei sisalda Ei sisalda 23.05.2016 Vestlus (0)

Pakkumise kirjeldus:

Tööraha, KÄIBEMAKSU ei lisandu. Eeldame, et seinapinnad on tapeetimiseks korralikult ette valmistatud : pahteldatud-kruntvärvitud. Kõik tööks vajalikud materjalid ja tarvikud töö tellija poolt. Töö kiire, puhas ja korralik. Arveldamine sularahas arve alusel. NB : Maalri tööd 4 eurot/m2 brutopinnana.

Küsimused hanke korraldajale

Küsimus: private ID33965   09.05.2016 19:05
Tere. Mõningad täpsustavad küsimused : tapeet on kas mustrisse ajamisega või vabajooksuga ? Kas läheb seina ühes või 2 osas bordega või bordeta ? Mis tüüpi tapeediga tegemist ?

Teavita reeglite rikkumisest

Korraldaja vastus: 10.05.2016 09:40

Tere, tapeete ja ruume on 3, kõik on mustrisse ajamisega. Ühtegi bordet ei ole. üks on fototapeet, teised tavalised

Teavita reeglite rikkumisest

Küsimus: private ID33965   10.05.2016 12:10
Mis mõõtudes on fototapeet, mitmest osast koosneb ja kas on vaja maha lõigata või mahub originaalmõõtudes seina ?

Teavita reeglite rikkumisest

Korraldaja vastus: 10.05.2016 13:41

Täpsustan veel, et teised 2 tapeeti on fliistapeedid.<br />
<br />
mõõdud: 360x254 cm, tapeet koosneb 4 tükist suurustega 180x127 cm. Lõigata ei ole vaja, vaja on mahutada seina keskele.<br />
http://www.on24.ee/sisustus/kodusisustus/tapeedid_dekoratiivpaneelid/88018 <br />

Teavita reeglite rikkumisest

Küsimus: private ID41977   10.05.2016 22:21
Tere! viimistlus peab loobuma oma tehtud pakkumisest kuna me ei, paigalda fototapeeti. Ehk siis 200 eur pakkumine on mängust väljas

Teavita reeglite rikkumisest

Korraldaja vastus: 11.05.2016 11:23

Kahju kuulda.

Teavita reeglite rikkumisest

Lisa küsimus

Lisa küsimus

Minu pakkumine

Reeglid

Pakkumise kirjelduse väli on mõeldud pakkumise detailsemaks lahti kirjutamiseks. Pikema teksti mugavaks sisestamiseks klikkige kasti paremal ülaservas oleval ikoonil.
Pakkumist tehes on keelatud postitada enda kontaktandmeid (nimi, telefon, aadress jne). Me jälgime ja analüüsime pakkumisi, et vältida pettuseid ja reeglite rikkumisi.
Rikkumise puhul kasutajakonto blokeeritakse.

 

Vanemad teated:

Vaata kõiki

Sellel veebilehel kasutatakse küpsiseid. Kasutamist jätkates nõustute küpsiste kasutamisega.

Sulge
 
Minu pakkumine

Reeglid

Pakkumise kirjelduse väli on mõeldud pakkumise detailsemaks lahti kirjutamiseks. Pikema teksti mugavaks sisestamiseks klikkige kasti paremal ülaservas oleval ikoonil.
Pakkumist tehes on keelatud postitada enda kontaktandmeid (nimi, telefon, aadress jne). Me jälgime ja analüüsime pakkumisi, et vältida pettuseid ja reeglite rikkumisi.
Rikkumise puhul kasutajakonto blokeeritakse.