+ Lisa oma töö      

Otsid ehitajat "Betoonitööd" valdkonnast?

Parima pakkumise ja teostaja leidmiseks lisa oma töö.

Hange on lõppenud!

Võitjaks osutus kasutaja ID 37908

Korraldaja hinnang tehtud tööle

4.3
12.09.2016
Töökiirus: 12345
Kvaliteet: 12345
Hind: 12345

Valasid 146m2, jäin väga rahule. Soovitan! - Tauno T.

Põranda valu

ID 36382

6879 vaatamist

Prindi

  • check Pakkumiste tegemine
    kuni 23.05.2016
  • check Võitja valik kuni
    30.05.2016
  • 3 Töö teostamine
    ja hinnang
Hanke lõpp: E, 23. mai, 2016
Maakond: Tartumaa
Linn: Tartu
Tööde algus: E, 20. juuni, 2016 (Soovituslik)
Tööde lõpp: P, 26. juuni, 2016 (Soovituslik)
Ehitusmaterjalid: Töö tellija poolt

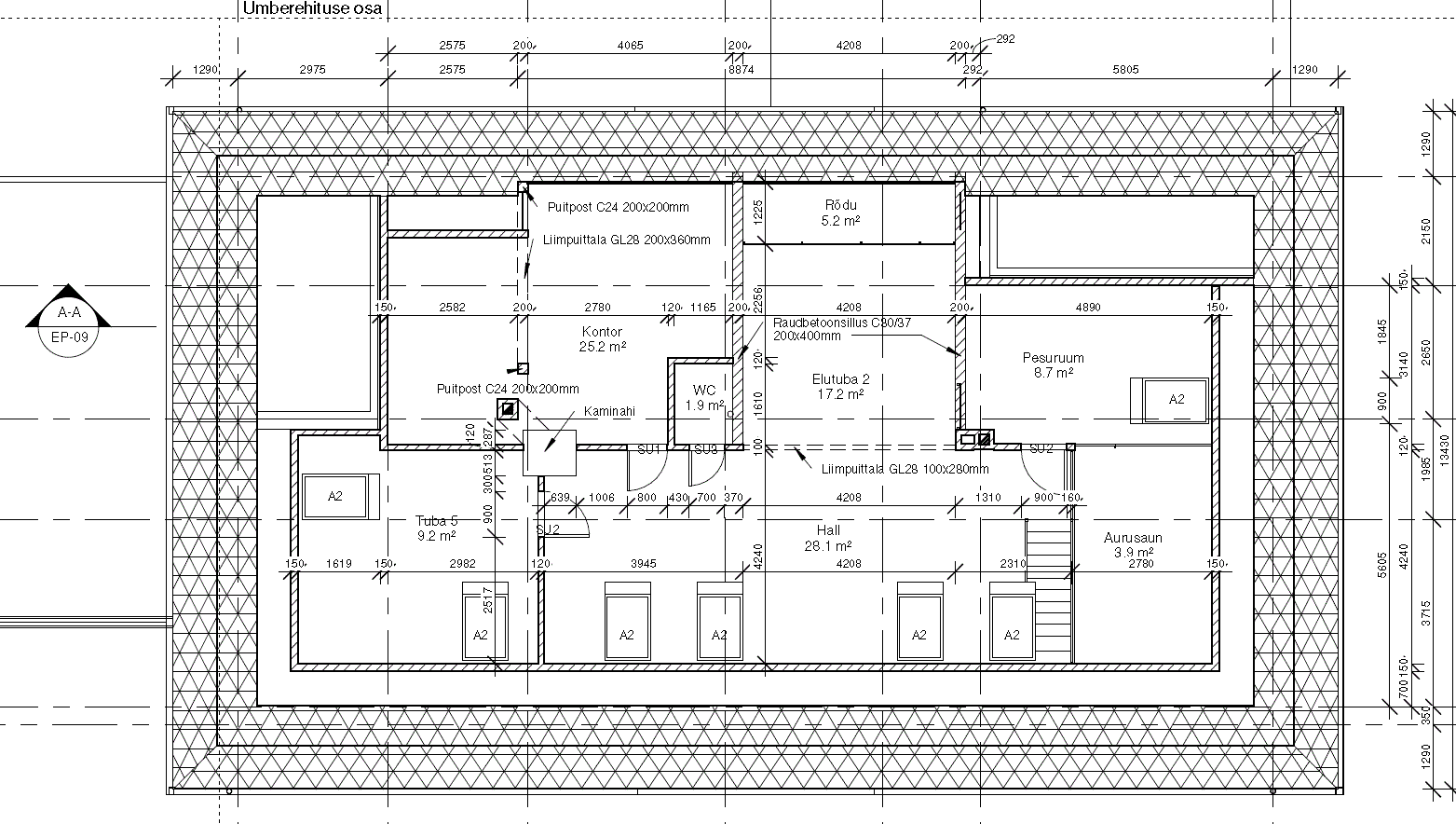
Töö sisu

Isover FLO 20mm paigaldus, kile, armatuur, põrandaküttekontuuride paigaldus 16mm toru (vastavalt tööjoonisele) ja betoonivalu lihvimine jm. Kolme ruumi põrand (kontor, tuba 5 ja elutuba2/hall) tuleb üksteisest läbivalt eraldada. Pesuruumis ja aurusaunas tuleb anda põrandatele kalded kogu ruumi ulatuses.

Pildid, video ja failid

Hanke korraldaja: eraisik ID35078

Pakkumised

Pakkumisi kokku: 2

Ettevõte Summa Käibemaks Lisatud Vestlus
Kasutaja ikoon ID37908
Pakkuja profiil Väike nool paremale
1 542€ Ei sisalda Ei sisalda 23.05.2016 Vestlus (2)

Pakkumise kirjeldus:

Tere. Pakkumine sisaldab villa laotamist, kile ja armatuuri paigaldamist, põrandakütte kontuuri vedamist ja kollektori paigaldamist ning survestamist, võrgu tõstmist armatuurkanduritele ja hoone jäikade kandekonstruktsioonide vertikaalpindade eristamist põrandaplaadist 1 kordse 8 mm polüstüreenist eraldusribaga, betooni valamist ja lihvimist masinhõ ... Rohkem

Kasutaja ikoon ID22780
Pakkuja profiil Väike nool paremale
1 250€ Sisaldab KM Sisaldab KM 23.05.2016 Vestlus (0)

Pakkumise kirjeldus:

Tere, pakkumine sisaldab teie poolt soovitud töid.
Lugupidamisega

Küsimused hanke korraldajale

Hanke korraldajale ei ole veel küsimusi esitatud.

Lisa küsimus

Lisa küsimus

Minu pakkumine

Reeglid

Pakkumise kirjelduse väli on mõeldud pakkumise detailsemaks lahti kirjutamiseks. Pikema teksti mugavaks sisestamiseks klikkige kasti paremal ülaservas oleval ikoonil.
Pakkumist tehes on keelatud postitada enda kontaktandmeid (nimi, telefon, aadress jne). Me jälgime ja analüüsime pakkumisi, et vältida pettuseid ja reeglite rikkumisi.
Rikkumise puhul kasutajakonto blokeeritakse.

 

Teisi töid samas valdkonnas

Valdkonnas "Betoonitööd" on 4 aktiivset tööd

Vanemad teated:

Vaata kõiki

Sellel veebilehel kasutatakse küpsiseid. Kasutamist jätkates nõustute küpsiste kasutamisega.

Sulge
 
Minu pakkumine

Reeglid

Pakkumise kirjelduse väli on mõeldud pakkumise detailsemaks lahti kirjutamiseks. Pikema teksti mugavaks sisestamiseks klikkige kasti paremal ülaservas oleval ikoonil.
Pakkumist tehes on keelatud postitada enda kontaktandmeid (nimi, telefon, aadress jne). Me jälgime ja analüüsime pakkumisi, et vältida pettuseid ja reeglite rikkumisi.
Rikkumise puhul kasutajakonto blokeeritakse.