+ Lisa oma töö      

Otsid ehitajat "Ehitusprojektid" valdkonnast?

Parima pakkumise ja teostaja leidmiseks lisa oma töö.

Ehitusprojekt ja ehitusluba

ID 36400

3090 vaatamist

Prindi

  • check Pakkumiste tegemine
    kuni 25.05.2016
  • check Võitja valik kuni
    01.06.2016
  • 3 Töö teostamine
    ja hinnang
Hanke lõpp: K, 25. mai, 2016
Maakond: Harjumaa
Linn: Tallinn
Tööde algus: E, 30. mai, 2016 (Soovituslik)
Tööde lõpp: P, 05. juuni, 2016 (Soovituslik)
Ehitusmaterjalid: Töö tellija poolt

Töö sisu

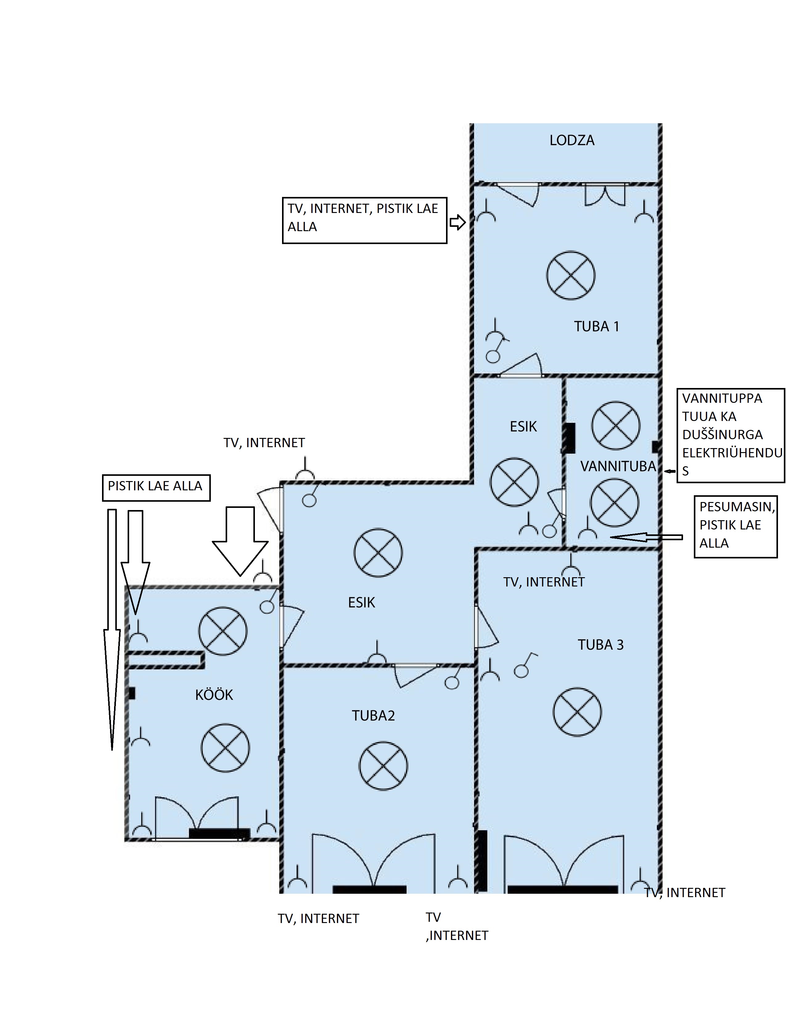
Palun hinnapakkumist lasnamäe korterelamu 3 toalise korteri wc ja vannitoa ühendamiseks. Plaan on lõhkuda välja, kunagi maja ehitusega korterisse sissetõstetud wc ja vannituba ning ehitada see suuremaks. Lisaks läheb vahetusse kogu korteri elektrijuhtmestik. Korter ise asub viimasel ehk üheksandal korrusel. Muutmist vajab ka vannitoa veetorude asukoht. Lisaks on vaja muidugi selle tarvis ehitusluba.

Pildid, video ja failid

Hanke korraldaja: eraisik ID41672

Pakkumised

Pakkumisi kokku: 3

Ettevõte Summa Käibemaks Lisatud Vestlus
Kasutaja ikoon ID40229
Pakkuja profiil Väike nool paremale
3 200€ Ei sisalda Ei sisalda 11.05.2016 Vestlus (0)

Pakkumise kirjeldus:

Tere!
Pakkumine sisaldab vannitoa ehitust, töö koos ehitusmaterjalidega. Mõningane ettemaks materjali tarbeks tööde käigus.
Elektrijuhtmestiku vedu eeldab ka hilisemat viimistlust, ei ole selgust sellest täielikult hanke põhjal seega jätame hetkel pakkumisest välja.
Mingisugust luba sellised tööd ei vaja.

Lugupidamisega

Kasutaja ikoon ID40011
Pakkuja profiil Väike nool paremale
2 500€ Sisaldab KM Sisaldab KM 13.05.2016 Vestlus (0)
Kasutaja ikoon ID39945
Pakkuja profiil Väike nool paremale
1 200€ Sisaldab KM Sisaldab KM 22.05.2016 Vestlus (0)

Pakkumise kirjeldus:

Pakkumine sisaldab projekti ehitusloa taotlemiseks / ehitusteatise esitamiseks vajalikus mahus koos meiepoolsete kõikide kooskõlastustega, asjaajamistega.
Projekt sisaldab kõik, mis on ette nähtud ehitusprojektis ehitusloa saamiseks / ehitusteatise esitamiseks, asjaajamine kuni ehitusloa väljastamiseni / ehitusteatise aktsepteerimiseni.

Küsimused hanke korraldajale

Hanke korraldajale ei ole veel küsimusi esitatud.

Lisa küsimus

Lisa küsimus

Minu pakkumine

Reeglid

Pakkumise kirjelduse väli on mõeldud pakkumise detailsemaks lahti kirjutamiseks. Pikema teksti mugavaks sisestamiseks klikkige kasti paremal ülaservas oleval ikoonil.
Pakkumist tehes on keelatud postitada enda kontaktandmeid (nimi, telefon, aadress jne). Me jälgime ja analüüsime pakkumisi, et vältida pettuseid ja reeglite rikkumisi.
Rikkumise puhul kasutajakonto blokeeritakse.

 

Teisi töid samas valdkonnas

Valdkonnas "Ehitusprojektid" on 6 aktiivset tööd

no-img Pilt puudub

Ehitusinsener tase 7 vastutav allikiri

Asukoht: Pärnumaa, Pärnu
Aega jäänud: 5h 21 min
Tehtud pakkumisi: 2

Korteri elektri projekt

Asukoht: Harjumaa, Tallinn
Aega jäänud: 2p 5h
Tehtud pakkumisi: 2

Vanemad teated:

Vaata kõiki

Sellel veebilehel kasutatakse küpsiseid. Kasutamist jätkates nõustute küpsiste kasutamisega.

Sulge
 
Minu pakkumine

Reeglid

Pakkumise kirjelduse väli on mõeldud pakkumise detailsemaks lahti kirjutamiseks. Pikema teksti mugavaks sisestamiseks klikkige kasti paremal ülaservas oleval ikoonil.
Pakkumist tehes on keelatud postitada enda kontaktandmeid (nimi, telefon, aadress jne). Me jälgime ja analüüsime pakkumisi, et vältida pettuseid ja reeglite rikkumisi.
Rikkumise puhul kasutajakonto blokeeritakse.