+ Lisa oma töö      

Otsid ehitajat "Katusetööd" valdkonnast?

Parima pakkumise ja teostaja leidmiseks lisa oma töö.

Suvila uus katus

ID 36537

4005 vaatamist

Prindi

  • check Pakkumiste tegemine
    kuni 04.06.2016
  • check Võitja valik kuni
    11.06.2016
  • 3 Töö teostamine
    ja hinnang
Hanke lõpp: L, 4. juuni, 2016
Maakond: Raplamaa
Muu asula: Aespa
Tööde algus: E, 13. juuni, 2016 (Soovituslik)
Tööde lõpp: E, 11. juuli, 2016 (Soovituslik)
Ehitusmaterjalid: Töö tegija poolt

Töö sisu

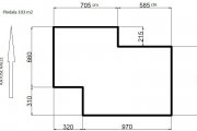
Natuke vanem suvila maja tahab uue lamekatuse. Suvila asub Rapla maakonnas, Aespa, AÜ Puravik.
On vaja teha: vana katuse vahetada uue vastu, puitdetailid töödelda vajalikke vahenditega (midagi antiputuka, antisipelga toimega oleks ka hea), isoleerida korstnad, hüdroisolatsiooni, termoisolatsiooni ja kõike muu mida vaja. Katteks soovin PVC rullmaterjali, viimistleda ääred, panna veeäravoolu torud, võib ka lae siseviimistluse teha niiskusekindla vineeriga.
Kui kirjelduses on mõned vead, siis palun vabandust ja ootan parandusi. Kiire ei ole, aga tahaks tööd alustada ja lõpetada niikaua kui on soe ja kuiv.
Enamik tekkinud prügi saame ka ise utiliseerida (ruberoid, puit …).
Ootame kõiki pakkumisi.

Pildid, video ja failid

Hanke korraldaja: eraisik ID42024

Pakkumised

Pakkumisi kokku: 1

Ettevõte Summa Käibemaks Lisatud Vestlus
Kasutaja ikoon ID40900
Pakkuja profiil Väike nool paremale
20€ Ei sisalda Ei sisalda 04.06.2016 Vestlus (0)

Pakkumise kirjeldus:

tere
teen teile pakkumise katuse töödeks tunnihinnana mis sisaldab ainult h töö hinda.1 töömehe kohta.
materjalide komplekteerimisel võin olla abiks.
Parimatega.

Küsimused hanke korraldajale

Küsimus: private ID35157   02.06.2016 22:09
Tere , kas vahetusse läheb kogu katuse konstruktsioon , sarikad jne. Mis värvi ja mis paksusega pvc soovite. Lugupidamisega.

Teavita reeglite rikkumisest

Korraldaja vastus: 04.06.2016 08:39

Paksuse kohta ei oska öelda midagi, kuna ei tea nii hästi seda ala. Värv ei ole väga oluline. Sarikad jne. ei tea mis seisukorras täpselt, peab lahti võtma esiteks, aga on tõenäosus, et isegi kõik läheb vahetusse.

Teavita reeglite rikkumisest

Lisa küsimus

Lisa küsimus

Minu pakkumine

Reeglid

Pakkumise kirjelduse väli on mõeldud pakkumise detailsemaks lahti kirjutamiseks. Pikema teksti mugavaks sisestamiseks klikkige kasti paremal ülaservas oleval ikoonil.
Pakkumist tehes on keelatud postitada enda kontaktandmeid (nimi, telefon, aadress jne). Me jälgime ja analüüsime pakkumisi, et vältida pettuseid ja reeglite rikkumisi.
Rikkumise puhul kasutajakonto blokeeritakse.

 

Teisi töid samas valdkonnas

Valdkonnas "Katusetööd" on 10 aktiivset tööd

no-img Pilt puudub

Käidava katuse PVC 54m2

Asukoht: Harjumaa, Muraste
Aega jäänud: 4p 6h
Tehtud pakkumisi: 3

Suvila

Asukoht: Pärnumaa, Eametsa
Aega jäänud: 6h 7 min
Tehtud pakkumisi: 2

Vanemad teated:

Vaata kõiki

Sellel veebilehel kasutatakse küpsiseid. Kasutamist jätkates nõustute küpsiste kasutamisega.

Sulge
 
Minu pakkumine

Reeglid

Pakkumise kirjelduse väli on mõeldud pakkumise detailsemaks lahti kirjutamiseks. Pikema teksti mugavaks sisestamiseks klikkige kasti paremal ülaservas oleval ikoonil.
Pakkumist tehes on keelatud postitada enda kontaktandmeid (nimi, telefon, aadress jne). Me jälgime ja analüüsime pakkumisi, et vältida pettuseid ja reeglite rikkumisi.
Rikkumise puhul kasutajakonto blokeeritakse.