+ Lisa oma töö      

Otsid ehitajat "Katusetööd" valdkonnast?

Parima pakkumise ja teostaja leidmiseks lisa oma töö.

Suvila uus katus

ID 36539

3441 vaatamist

Prindi

  • check Pakkumiste tegemine
    kuni 05.06.2016
  • check Võitja valik kuni
    12.06.2016
  • 3 Töö teostamine
    ja hinnang
Hanke lõpp: P, 5. juuni, 2016
Maakond: Raplamaa
Muu asula: Aespa
Tööde algus: E, 20. juuni, 2016 (Soovituslik)
Tööde lõpp: E, 11. juuli, 2016 (Soovituslik)
Ehitusmaterjalid: Töö tegija poolt

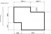
Töö sisu

Natuke vanem suvila maja tahab uue katuse. Suvila asub Rapla maakonnas, Aespa, AÜ Puravik.
Oli lamekatus. Tahaks teada kas on võimalik, kuidas ja kui palju maksaks viilkatuse paigaldada.
Vana katusel on kalle, võib olla vaja seinad tasaseks teha ja tugevdada. Puitdetailid töödelda vajalikke vahenditega, isoleerida ja pikendada korstna, hüdraisolatsiooni, termoisolatsiooni, lae ja selle viimistluse, on vaja veeäravoolu, katte pakkuge ise.
Kui kirjelduses on mõned vead, siis palun vabandust ja ootan parandusi. Kiire ei ole, aga tahaks tööd alustada ja lõpetada niikaua kui on soe ja kuiv. Ootame kõiki pakkumisi.

Pildid, video ja failid

Hanke korraldaja: eraisik ID42024

Pakkumised

Pakkumisi kokku: 1

Ettevõte Summa Käibemaks Lisatud Vestlus
Kasutaja ikoon ID35157
Pakkuja profiil Väike nool paremale
17€ Sisaldab KM Sisaldab KM 05.06.2016 Vestlus (0)

Pakkumise kirjeldus:

Tere hinnapakkumine sisaldab katuse lammutamist, uute sarikate , osb plaadi paigaldust ,servaplekke, tuulekasti laudade ja siis kas pvc või kahekihilise sbs rullmaterjali paigaldamist. Hind on ligikaudu 80€/m2 kui peaks vahetama ka sarikad.Pakkumine on hetkel tehtud tunni hinnana , mis on 17€/h. Töid teostab 2 töömeest.
Kõige parem oleks muidugi ... Rohkem

Küsimused hanke korraldajale

Hanke korraldajale ei ole veel küsimusi esitatud.

Lisa küsimus

Lisa küsimus

Minu pakkumine

Reeglid

Pakkumise kirjelduse väli on mõeldud pakkumise detailsemaks lahti kirjutamiseks. Pikema teksti mugavaks sisestamiseks klikkige kasti paremal ülaservas oleval ikoonil.
Pakkumist tehes on keelatud postitada enda kontaktandmeid (nimi, telefon, aadress jne). Me jälgime ja analüüsime pakkumisi, et vältida pettuseid ja reeglite rikkumisi.
Rikkumise puhul kasutajakonto blokeeritakse.

 

Teisi töid samas valdkonnas

Valdkonnas "Katusetööd" on 10 aktiivset tööd

no-img Pilt puudub

Käidava katuse PVC 54m2

Asukoht: Harjumaa, Muraste
Aega jäänud: 4p 6h
Tehtud pakkumisi: 3

Suvila

Asukoht: Pärnumaa, Eametsa
Aega jäänud: 6h 25 min
Tehtud pakkumisi: 2

Vanemad teated:

Vaata kõiki

Sellel veebilehel kasutatakse küpsiseid. Kasutamist jätkates nõustute küpsiste kasutamisega.

Sulge
 
Minu pakkumine

Reeglid

Pakkumise kirjelduse väli on mõeldud pakkumise detailsemaks lahti kirjutamiseks. Pikema teksti mugavaks sisestamiseks klikkige kasti paremal ülaservas oleval ikoonil.
Pakkumist tehes on keelatud postitada enda kontaktandmeid (nimi, telefon, aadress jne). Me jälgime ja analüüsime pakkumisi, et vältida pettuseid ja reeglite rikkumisi.
Rikkumise puhul kasutajakonto blokeeritakse.