+ Lisa oma töö      

Otsid ehitajat "Müüritööd" valdkonnast?

Parima pakkumise ja teostaja leidmiseks lisa oma töö.

Müüride ladumine

ID 36594

3143 vaatamist

Prindi

  • check Pakkumiste tegemine
    kuni 09.06.2016
  • check Võitja valik kuni
    23.06.2016
  • 3 Töö teostamine
    ja hinnang
Hanke lõpp: N, 9. juuni, 2016
Maakond: Ida-Virumaa
Muu asula: Jabara
Tööde algus: N, 09. juuni, 2016 (Soovituslik)
Tööde lõpp: T, 21. juuni, 2016 (Soovituslik)
Ehitusmaterjalid: Töö tellija poolt

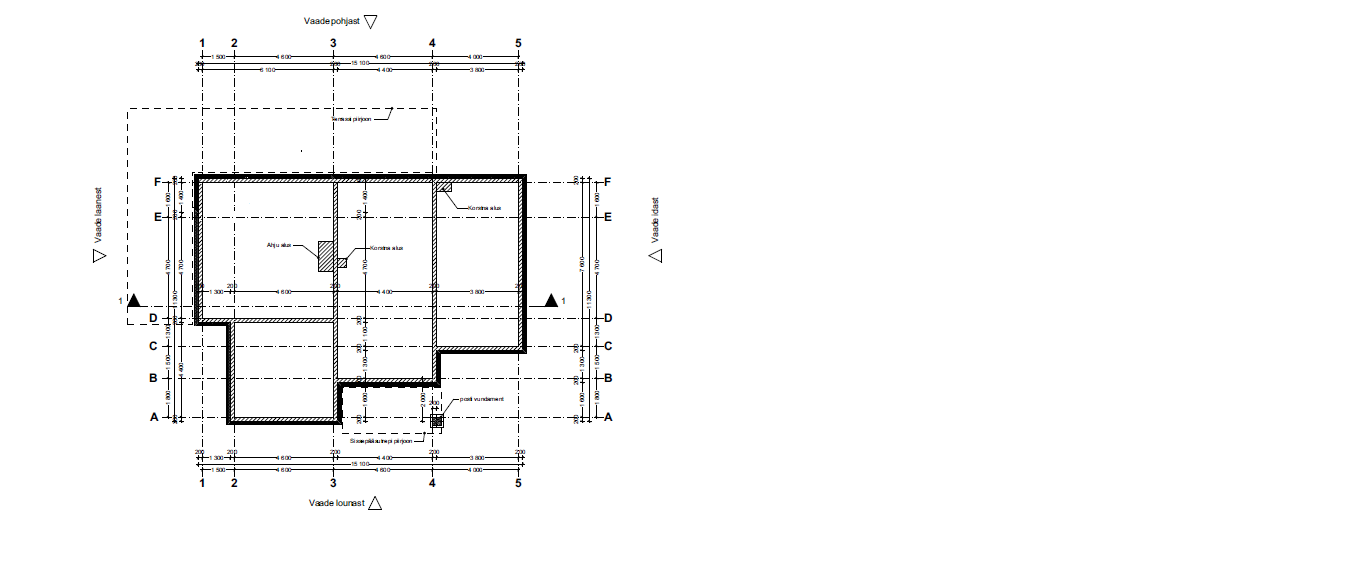
Töö sisu

eramaja kiviseinad Roclite plokist vaja püsti panna. Umbestäpselt 1700 kivi 200*300*600 külili asetatuna.

Pildid, video ja failid

Hanke korraldaja: eraisik ID42133

Pakkumised

Pakkumisi kokku: 3

Ettevõte Summa Käibemaks Lisatud Vestlus
Kasutaja ikoon ID39391
Pakkuja profiil Väike nool paremale
4 100€ Sisaldab KM Sisaldab KM 27.05.2016 Vestlus (0)
Kasutaja ikoon ID40900
Pakkuja profiil Väike nool paremale
4 050€ Ei sisalda Ei sisalda 29.05.2016 Vestlus (0)

Pakkumise kirjeldus:

pakkumine sisaldab töö hinda.
parimatega
olen kindel et hanke lõppus võimalus teha parim pakkumine.
Parimatega

Kasutaja ikoon ID8633
Pakkuja profiil Väike nool paremale
4 400€ Ei sisalda Ei sisalda 08.06.2016 Vestlus (2)

Pakkumise kirjeldus:

töö

Küsimused hanke korraldajale

Küsimus: private ID39803   26.05.2016 16:26
Tere päevast meil tekkisid mõned küsimused esiteks kas vundament on juba valmis ja kui siis ka valmis tööks ja ka teine küsimus kas ladumisel soovite kasutada segu või siis ploki liimiga mida saab tegelikult tootja poolt kaasa osta.Ja veel kui kõrged tuleksid seinad kas tuleb ühe kordne maja või siis rohkem korruseid ning kas tarvis ka mingeid tellinguid või on teil endal midagi varutud millest saaks tellinguid ehitada.

Teavita reeglite rikkumisest

Korraldaja vastus: 26.05.2016 21:06

Vundament on valmis, ainult tuleks uuesti nurgad paika saada ja diagoonaalid ära mõõta. üks rida 300 fibo 5 seguga ja siis esimene kiht seguga roclite'i ja ülejäänud liimiga. Ehitis on kahekorruseline, viilkatusega. Tellingute materjal (euroalused ja lauad) on olemas tuleb vaid valmis ehitada.

Teavita reeglite rikkumisest

Lisa küsimus

Lisa küsimus

Minu pakkumine

Reeglid

Pakkumise kirjelduse väli on mõeldud pakkumise detailsemaks lahti kirjutamiseks. Pikema teksti mugavaks sisestamiseks klikkige kasti paremal ülaservas oleval ikoonil.
Pakkumist tehes on keelatud postitada enda kontaktandmeid (nimi, telefon, aadress jne). Me jälgime ja analüüsime pakkumisi, et vältida pettuseid ja reeglite rikkumisi.
Rikkumise puhul kasutajakonto blokeeritakse.

 

Teisi töid samas valdkonnas

Valdkonnas "Müüritööd" on 2 aktiivset tööd

Telliskivi seina taastamine, ehitus

Asukoht: Harjumaa, Kiisa
Aega jäänud: 2p 5h
Tehtud pakkumisi: 1

no-img Pilt puudub

Kivimaster

Asukoht: Harjumaa, Tallinn
Aega jäänud: 1p 5h
Tehtud pakkumisi: 0

Vanemad teated:

Vaata kõiki

Sellel veebilehel kasutatakse küpsiseid. Kasutamist jätkates nõustute küpsiste kasutamisega.

Sulge
 
Minu pakkumine

Reeglid

Pakkumise kirjelduse väli on mõeldud pakkumise detailsemaks lahti kirjutamiseks. Pikema teksti mugavaks sisestamiseks klikkige kasti paremal ülaservas oleval ikoonil.
Pakkumist tehes on keelatud postitada enda kontaktandmeid (nimi, telefon, aadress jne). Me jälgime ja analüüsime pakkumisi, et vältida pettuseid ja reeglite rikkumisi.
Rikkumise puhul kasutajakonto blokeeritakse.