+ Lisa oma töö      

Otsid ehitajat "Tuleohutussüsteemide paigaldus" valdkonnast?

Parima pakkumise ja teostaja leidmiseks lisa oma töö.

TULETÕRJESIGNALISATSIOONI PAIGALDUS

ID 36837

1983 vaatamist

Prindi

  • check Pakkumiste tegemine
    kuni 16.07.2016
  • check Võitja valik kuni
    23.07.2016
  • 3 Töö teostamine
    ja hinnang
Hanke lõpp: L, 16. juuli, 2016
Maakond: Ida-Virumaa
Muu asula: Iisaku
Tööde algus: E, 01. august, 2016 (Soovituslik)
Tööde lõpp: R, 05. august, 2016 (Soovituslik)
Ehitusmaterjalid: Töö tegija poolt

Töö sisu

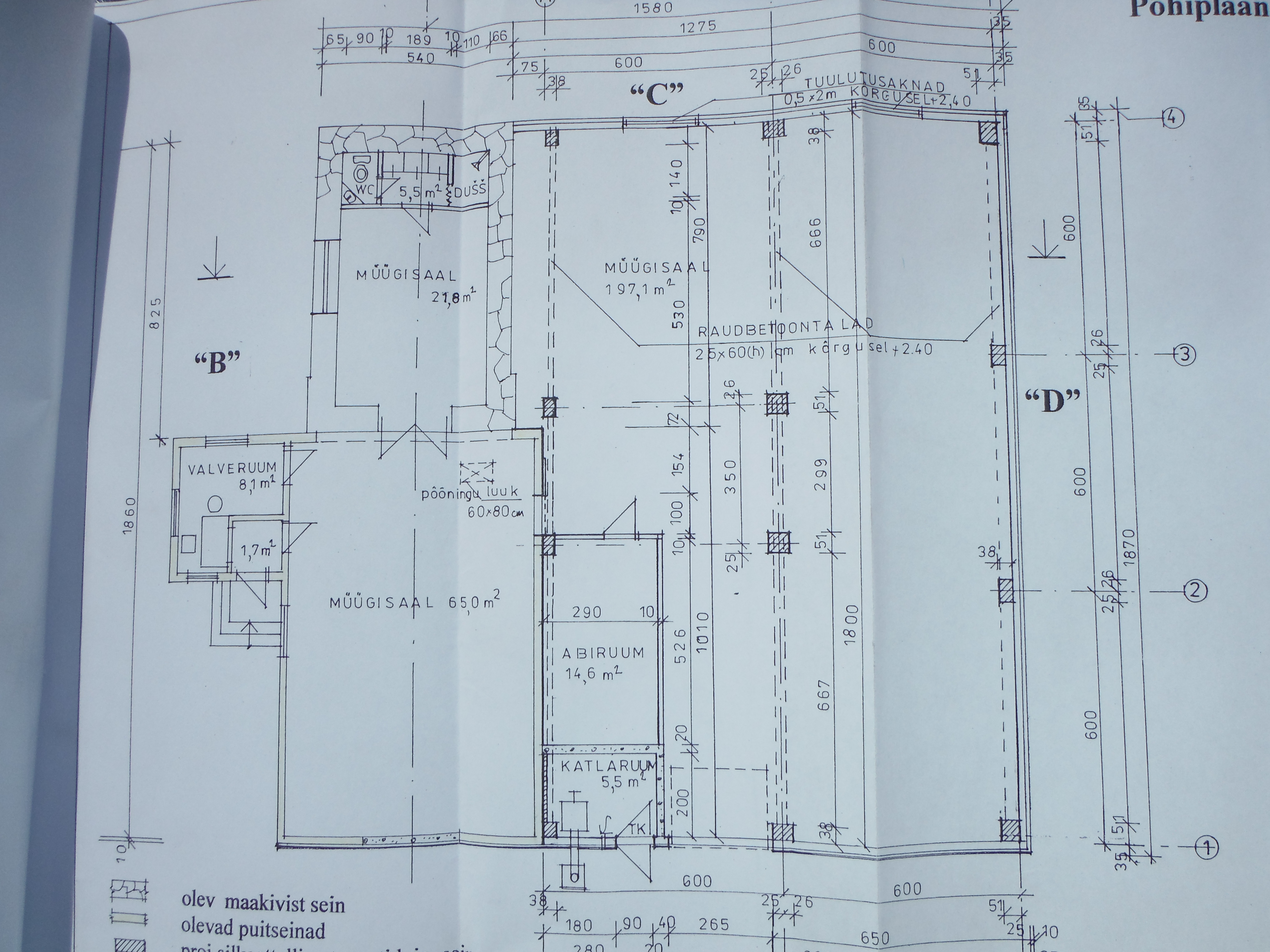
Paigaldada ehitusmaterjalide kauplusesse lokaalne tuletõrjesignalisatsioon.Sigalisatsiooni saab ühendada olemasoleva valvesignalisatsioobni raadjosaatja külge signaali saatmiseks.Vajalik on välisalarm ,klahvistik ja soojus -ja temperatuuri andurid,kaabel.Kaupluse pindala on 319 m2.ja koosaneb kaheksast ruumist .On kolm müügisaali,üks bullerjaniga ruum,üks diiselkaloriiferiga ruumi,kabinet WC,,kaubaladu-kuhu spetsialistandurit ei soovitanud panna.

Pildid, video ja failid

Hanke korraldaja: ettevõte ID29104

Pakkumised

Pakkumisi kokku: 0

Küsimused hanke korraldajale

Küsimus: private ID36125   19.06.2016 09:41
Missugune on olemasolev valvekeskus ja kas sel on vabasid sisendeid?

Teavita reeglite rikkumisest

Korraldaja vastus: 19.06.2016 13:04

Tere! Asjatundja väitis,et selle saatja külge annab ühendada ka tuletõrjesignalisatsiooni.Praegu helistab saatja G4S telefonile ja nemad helistavad mulle.Soovikin end G4S teenusest lahti ühendada.Kui see aitab võin ka saatja sisust pildi teha.

Teavita reeglite rikkumisest

Lisa küsimus

Lisa küsimus

Minu pakkumine

Reeglid

Pakkumise kirjelduse väli on mõeldud pakkumise detailsemaks lahti kirjutamiseks. Pikema teksti mugavaks sisestamiseks klikkige kasti paremal ülaservas oleval ikoonil.
Pakkumist tehes on keelatud postitada enda kontaktandmeid (nimi, telefon, aadress jne). Me jälgime ja analüüsime pakkumisi, et vältida pettuseid ja reeglite rikkumisi.
Rikkumise puhul kasutajakonto blokeeritakse.

 

Vanemad teated:

Vaata kõiki

Sellel veebilehel kasutatakse küpsiseid. Kasutamist jätkates nõustute küpsiste kasutamisega.

Sulge
 
Minu pakkumine

Reeglid

Pakkumise kirjelduse väli on mõeldud pakkumise detailsemaks lahti kirjutamiseks. Pikema teksti mugavaks sisestamiseks klikkige kasti paremal ülaservas oleval ikoonil.
Pakkumist tehes on keelatud postitada enda kontaktandmeid (nimi, telefon, aadress jne). Me jälgime ja analüüsime pakkumisi, et vältida pettuseid ja reeglite rikkumisi.
Rikkumise puhul kasutajakonto blokeeritakse.