+ Lisa oma töö      

Otsid ehitajat "Betoonitööd" valdkonnast?

Parima pakkumise ja teostaja leidmiseks lisa oma töö.

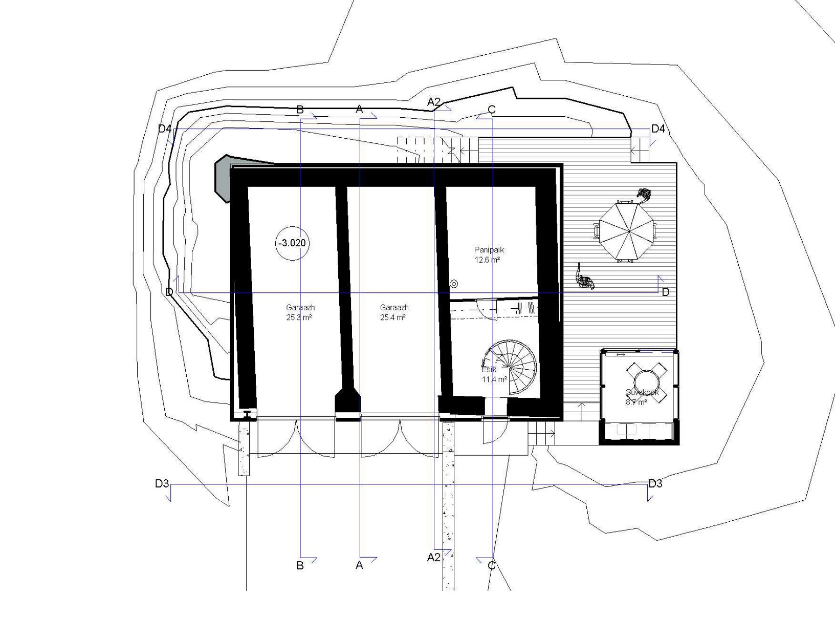
Garaazhide ja panipaiga põrandad

ID 37145

3286 vaatamist

Prindi

  • check Pakkumiste tegemine
    kuni 29.07.2016
  • check Võitja valik kuni
    05.08.2016
  • 3 Töö teostamine
    ja hinnang
Hanke lõpp: R, 29. juuli, 2016
Maakond: Harjumaa
Muu asula: Kuusalu vald, Juminda
Tööde algus: E, 08. august, 2016 (Soovituslik)
Tööde lõpp: E, 31. oktoober, 2016 (Soovituslik)
Ehitusmaterjalid: Töö tegija poolt

Töö sisu

Olemasolev oukord: bunkrilaadne Vene sõjaväe rajatis, milles on olemas hästi ebatasased betoonpõrandad kuid kandevõime nähtavasti suhteliselt hea: on sõjatehnika väja kandnud.
Ruumid on maapinna tasandil; garaazhi uksed on avarad, kuid panipaiga ukseauk on vaid u. 80x180 cm.

Tarvis on tasanduskiht (liiv eralduskilel või isetasanduv valu), soojaisolatsioon (garaazhid u. 70 mm, panipaik u. 100 mm) + kile + uued betoonpõrandad olemasoleva konstruktsiooni peale, eralduslint (u. 65 jm) vastu olemasolevaid betoonseinu: 2 garaazhi põrandat á 25 m2, valu paksus u. 70-80 mm + esiku/panipaiga põrand 25 m2, valu paksus u. 50 mm, kokku u. 75 m2.

Pildid, video ja failid

Hanke korraldaja: eraisik ID42604

Pakkumised

Pakkumisi kokku: 1

Ettevõte Summa Käibemaks Lisatud Vestlus
Kasutaja ikoon ID38464
Pakkuja profiil Väike nool paremale
3 460€ Ei sisalda Ei sisalda 29.07.2016 Vestlus (7)

Pakkumise kirjeldus:

Materjalidele ettemaks arve alusel. Kile , soojustus garaaz 50 , muu 100 mm, kiudbetooni 5m3 ja pinnakõvendit. Töö teostamine eelisjärjekorras.

Küsimused hanke korraldajale

Küsimus: private ID38464   18.07.2016 21:53
Liiga kõrgeks ei tõuse ?

Teavita reeglite rikkumisest

Korraldaja vastus: 18.07.2016 22:22

Ei, seda hirmu ei ole, et põrandad liiga kõrgeks tõuseksid. Garaazhide uksed on juba paigaldatud ja esine planeeritud selle arvestusega, et põrandad kirjeldatud viisil tõusevad. Panipaiga olemasolev ukseauk paikneb vastavalt praegusest põrandast ülalpool (mingisugune oma-aegne varjendi tüüpi lahendus).

Teavita reeglite rikkumisest

Lisa küsimus

Lisa küsimus

Minu pakkumine

Reeglid

Pakkumise kirjelduse väli on mõeldud pakkumise detailsemaks lahti kirjutamiseks. Pikema teksti mugavaks sisestamiseks klikkige kasti paremal ülaservas oleval ikoonil.
Pakkumist tehes on keelatud postitada enda kontaktandmeid (nimi, telefon, aadress jne). Me jälgime ja analüüsime pakkumisi, et vältida pettuseid ja reeglite rikkumisi.
Rikkumise puhul kasutajakonto blokeeritakse.

 

Teisi töid samas valdkonnas

Valdkonnas "Betoonitööd" on 6 aktiivset tööd

Betoonist platsi valamine väljas.

Asukoht: Harjumaa, Luige
Aega jäänud: 8h 31 min
Tehtud pakkumisi: 4

Betoonpõranda valu

Asukoht: Harjumaa, Jõelähtme
Aega jäänud: 2p 8h
Tehtud pakkumisi: 3

Vanemad teated:

Vaata kõiki

Sellel veebilehel kasutatakse küpsiseid. Kasutamist jätkates nõustute küpsiste kasutamisega.

Sulge
 
Minu pakkumine

Reeglid

Pakkumise kirjelduse väli on mõeldud pakkumise detailsemaks lahti kirjutamiseks. Pikema teksti mugavaks sisestamiseks klikkige kasti paremal ülaservas oleval ikoonil.
Pakkumist tehes on keelatud postitada enda kontaktandmeid (nimi, telefon, aadress jne). Me jälgime ja analüüsime pakkumisi, et vältida pettuseid ja reeglite rikkumisi.
Rikkumise puhul kasutajakonto blokeeritakse.