+ Lisa oma töö      

Otsid ehitajat "Vundamenditööd" valdkonnast?

Parima pakkumise ja teostaja leidmiseks lisa oma töö.

Vundamendisüvendi kaevamine, tihendatud killustikupadja paigaldamine, torustike paigaldamine

ID 37206

2455 vaatamist

Prindi

  • check Pakkumiste tegemine
    kuni 02.08.2016
  • check Võitja valik kuni
    09.08.2016
  • 3 Töö teostamine
    ja hinnang
Hanke lõpp: T, 2. august, 2016
Maakond: Harjumaa
Muu asula: Viimsi
Tööde algus: E, 15. august, 2016 (Soovituslik)
Tööde lõpp: K, 31. august, 2016 (Soovituslik)
Ehitusmaterjalid: Töö tegija poolt

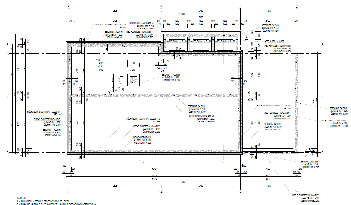
Töö sisu

Vundamendi ehitamiseks ettevalmistavad tööd.

Krunt on puhastatud juurikatest. Hetkel must pinnas.
Vajalikud tööd:
1. Vundamendi asukohale juurdepääsu tugevdamine (savipnnas, asfaldilt safile üleminek)
2. Huumuse koorimine vundamendi asukohast ja ladustamine krundil
3. Vundamendikraavi märkimine ja kaevamine kuni argiliitsavi kihini (asub ~1m sügavusel)
4. Torustike vedamine taldmiku alt tulevase tehnoruumi asukohta
5. Taldmikualuse killustikupadja paigaldamine (paksus 200mm), loodimine, tasandamine ja tihendamine nõutud tiheduseni

Kõik tööd peavad olema teostatud vastavalt lisatud projektis ja eraldi lisatud vundamendi joonises toodud nõuetele. Vundamendikraavi kogupikkus ~74m + trepi alune vundament (vt. projekti)
Pinnas on savipinnas. Juurdepääs mööda asfatteid.

Pildid, video ja failid

Hanke korraldaja: eraisik ID42580

Pakkumised

Pakkumisi kokku: 0

Küsimused hanke korraldajale

Hanke korraldajale ei ole veel küsimusi esitatud.

Lisa küsimus

Lisa küsimus

Minu pakkumine

Reeglid

Pakkumise kirjelduse väli on mõeldud pakkumise detailsemaks lahti kirjutamiseks. Pikema teksti mugavaks sisestamiseks klikkige kasti paremal ülaservas oleval ikoonil.
Pakkumist tehes on keelatud postitada enda kontaktandmeid (nimi, telefon, aadress jne). Me jälgime ja analüüsime pakkumisi, et vältida pettuseid ja reeglite rikkumisi.
Rikkumise puhul kasutajakonto blokeeritakse.

 

Teisi töid samas valdkonnas

Valdkonnas "Vundamenditööd" on 6 aktiivset tööd

no-img Pilt puudub

Plaatvundament koos kommunikatsioonidega

Asukoht: Harjumaa
Aega jäänud: 2p 3h
Tehtud pakkumisi: 2

Vundamendi ehitus

Asukoht: Harjumaa, Ülgase
Aega jäänud: 2p 3h
Tehtud pakkumisi: 1

Vanemad teated:

Vaata kõiki

Sellel veebilehel kasutatakse küpsiseid. Kasutamist jätkates nõustute küpsiste kasutamisega.

Sulge
 
Minu pakkumine

Reeglid

Pakkumise kirjelduse väli on mõeldud pakkumise detailsemaks lahti kirjutamiseks. Pikema teksti mugavaks sisestamiseks klikkige kasti paremal ülaservas oleval ikoonil.
Pakkumist tehes on keelatud postitada enda kontaktandmeid (nimi, telefon, aadress jne). Me jälgime ja analüüsime pakkumisi, et vältida pettuseid ja reeglite rikkumisi.
Rikkumise puhul kasutajakonto blokeeritakse.