+ Lisa oma töö      

Otsid ehitajat "Üldehitus" valdkonnast?

Parima pakkumise ja teostaja leidmiseks lisa oma töö.

Korteri remont

ID 37333

3798 vaatamist

Prindi

  • check Pakkumiste tegemine
    kuni 14.08.2016
  • check Võitja valik kuni
    21.08.2016
  • 3 Töö teostamine
    ja hinnang
Hanke lõpp: P, 14. august, 2016
Maakond: Harjumaa
Linn: Tallinn
Tööde algus: N, 15. september, 2016 (Soovituslik)
Tööde lõpp: R, 30. september, 2016 (Soovituslik)
Ehitusmaterjalid: Töö tellija poolt

Töö sisu

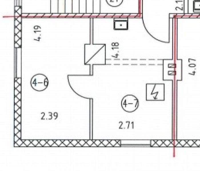
Kahe toa kokkuehitus, kipsitööd kõigis seintes ja laes. Kahe ruumi laed on hetkel natuke erineval kõrgusel, arvatavasti tuleb kas poolde tuppa, või kogu ruumi uus kipslagi panna. Töö sisaldab ka põranda mahapanekut (kalasabaparkett tammest, võrgul, liimitav) ja viimistlustust. Üks sein, loodavast ruumist tuleks plaatida (kööginurga tarbeks). Lammutada on vaja antud toast 10cm paksune kipssein ja ahi. Üles võtta põrand. Aknaid ei vaheta, aga aknalauad sooviksin välja vahetada. Toad moodustavad kokku 23m2 pinna. Kogu seinapind eeldatavalt lauspahteldust ei vaja, kuid kindel pole mis on hetkel antud ruumides laudpõranda all. Kohta kuhu tuleb köök (ehk siis ühte seina kokkuehitatavast toast), tuleks vedada ka elekter pliidi tarbeks ning muude köögis vajaminavate seadmete tarvis tõsta stepslid 1m kõrgusele, ehk plaaditud seina tuleks panna rida stepsleid 4-5 tk. Stepslid on antud seinas olemas, kuid madalal ja pliidikaabel on ka antud toas olemas, kuid voolusüsteem vajab ümbertõstmist ja ümbertegemist.

Hetkel on kahes toas maas laudpõrand.

NB! Mahapandava põranda pind: 26m2 (koos esikuga, muid töid esikus ei ole tarvis teha) Lae pind: 23m2 Seina pind: 48,3 m2 (kips) Plaaditava seina pind: ca 10 m2

Pildid, video ja failid

Hanke korraldaja: eraisik ID40903

Pakkumised

Pakkumisi kokku: 2

Ettevõte Summa Käibemaks Lisatud Vestlus
Kasutaja ikoon ID42319
Pakkuja profiil Väike nool paremale
2 200€ Sisaldab KM Sisaldab KM 04.08.2016 Vestlus (2)

Pakkumise kirjeldus:

Tehtud töödele 2 aastane garantii. Töövõtuleping.

Kasutaja ikoon ID39907
Pakkuja profiil Väike nool paremale
3 500€ Ei sisalda Ei sisalda 10.08.2016 Vestlus (0)

Pakkumise kirjeldus:

Täpsema hinna saame teada kui oleme korteriga lähemalt tutvunud. Anname tööle garantii.

Küsimused hanke korraldajale

Hanke korraldajale ei ole veel küsimusi esitatud.

Lisa küsimus

Lisa küsimus

Minu pakkumine

Reeglid

Pakkumise kirjelduse väli on mõeldud pakkumise detailsemaks lahti kirjutamiseks. Pikema teksti mugavaks sisestamiseks klikkige kasti paremal ülaservas oleval ikoonil.
Pakkumist tehes on keelatud postitada enda kontaktandmeid (nimi, telefon, aadress jne). Me jälgime ja analüüsime pakkumisi, et vältida pettuseid ja reeglite rikkumisi.
Rikkumise puhul kasutajakonto blokeeritakse.

 

Teisi töid samas valdkonnas

Valdkonnas "Üldehitus" on 31 aktiivset tööd

Maja värvimine

Asukoht: Harjumaa, Saue
Aega jäänud: 2p 1h
Tehtud pakkumisi: 6

Terassi õlitamine, 13,7 ruutu

Asukoht: Harjumaa, Saue
Aega jäänud: 5p 1h
Tehtud pakkumisi: 5

Vanemad teated:

Vaata kõiki

Sellel veebilehel kasutatakse küpsiseid. Kasutamist jätkates nõustute küpsiste kasutamisega.

Sulge
 
Minu pakkumine

Reeglid

Pakkumise kirjelduse väli on mõeldud pakkumise detailsemaks lahti kirjutamiseks. Pikema teksti mugavaks sisestamiseks klikkige kasti paremal ülaservas oleval ikoonil.
Pakkumist tehes on keelatud postitada enda kontaktandmeid (nimi, telefon, aadress jne). Me jälgime ja analüüsime pakkumisi, et vältida pettuseid ja reeglite rikkumisi.
Rikkumise puhul kasutajakonto blokeeritakse.