+ Lisa oma töö      

Otsid ehitajat "Lammutustööd" valdkonnast?

Parima pakkumise ja teostaja leidmiseks lisa oma töö.

Hange on lõppenud!

Võitjaks osutus kasutaja ID 37013

Korraldaja hinnang tehtud tööle

4.7
10.09.2016
Töökiirus: 12345
Kvaliteet: 12345
Hind: 12345

Oleme rahul teenusega. Aega pakuti varem kui lootsime. Asi tehti ära nädalavahetusel kiiresti ja korralikult. Enda järel koristati ära. - Markus Alfred K.

Kipsvaheseinte lammutus

ID 37397

7075 vaatamist

Prindi

  • check Pakkumiste tegemine
    kuni 12.08.2016
  • check Võitja valik kuni
    19.08.2016
  • 3 Töö teostamine
    ja hinnang
Hanke lõpp: R, 12. august, 2016
Maakond: Harjumaa
Linn: Tallinn
Tööde algus: E, 22. august, 2016 (Soovituslik)
Tööde lõpp: P, 28. august, 2016 (Soovituslik)
Ehitusmaterjalid: Töö tegija poolt

Töö sisu

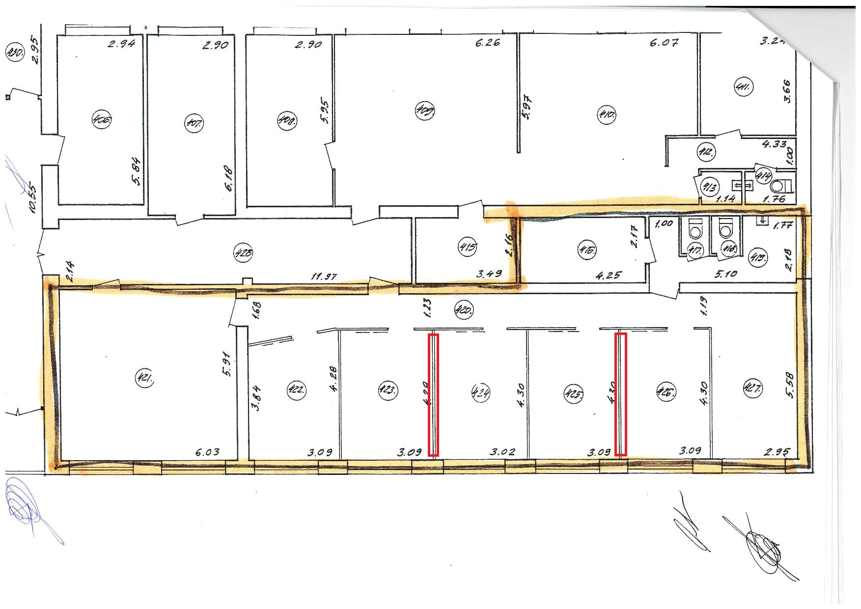
Büroo asub Tallinna kesklinnas, V korrus.

Kokku 2 seina, kumbki 2.4 kõrge ja 4.3 lai. Vt plaani.


Punasega märgitud 2 seina lammutada.

Töö peaks sisaldama:

* lammutust
* tarvikuid ja tööriistu
* prügi vedamist pakkuja transportivahendisse ja vedu prügilasse
* objekti koristamist
* prügi ladustamist prügilas

Tehnilised võimalused:

* 2 lifti asuvad paarikümne meetri kaugusel
* tööd on võimalik teostada ka töövälisel ajal, sh nädalavahetusel
* töö tuleb teostada augustis (NB! aeg võib veidi muutuda)
* auto saab parkida hoovi
* objekti ei ole vaja suuremahuliselt tolmu eest katta, sest tööde teostamise ajaks ei ole seal enam piltidel olevat sisustust
* tööde teostamiseks on olemas elekter
* betoonlagi (ei ole ripplagesid).
* põrandal laminaat

Seinad piirnevad ühelt poolt klaasvaheseintega, teiselt poolt betoonseinaga. Ilmselt jookseb seinas ka kaabel, mille võib eemaldada. Vt elektrijoonist.

Palume märkida, kui palju aega võib kuluda tööde alustamisest lõpule viimiseks.

Pildid, video ja failid

Hanke korraldaja: ettevõte ID18073

Pakkumised

Pakkumisi kokku: 8

Ettevõte Summa Käibemaks Lisatud Vestlus
Kasutaja ikoon ID42515
Pakkuja profiil Väike nool paremale
550€ Ei sisalda Ei sisalda 05.08.2016 Vestlus (0)
Kasutaja ikoon ID40431
Pakkuja profiil Väike nool paremale
500€ Ei sisalda Ei sisalda 06.08.2016 Vestlus (0)
Kasutaja ikoon ID42691
Pakkuja profiil Väike nool paremale
489€ Sisaldab KM Sisaldab KM 06.08.2016 Vestlus (0)

Pakkumise kirjeldus:

Pakkumine sisaldab kahe seina lammutust, prügi äravedu ja objekti koristust.

Aega kulub maksimaalselt 2 päeva.

Kasutaja ikoon ID41350
Pakkuja profiil Väike nool paremale
400€ Ei sisalda Ei sisalda 06.08.2016 Vestlus (3)

Pakkumise kirjeldus:

Pakkumises seinte lammutamine ära vedu prygilasse .alustada saame 20august .maksmine peale tõõlõppu objektil

Kasutaja ikoon ID37013
Pakkuja profiil Väike nool paremale
420€ Sisaldab KM Sisaldab KM 06.08.2016 Vestlus (2)

Pakkumise kirjeldus:

Tere,

Pakkumine sisaldab hankes mainitud töid,prügivedu ja koristust.tööaeg 1päev!

Kasutaja ikoon ID21575
Pakkuja profiil Väike nool paremale
480€ Ei sisalda Ei sisalda 10.08.2016 Vestlus (0)

Pakkumise kirjeldus:

Tere
Tööde kestvus ca.2päeva hinnanguliselt.
Töö saame teostada teile sobival ajal augusti teises pooles.
Hind sisaldab seinte lahti demonteerimist ja jääkide äravedu.
Parimatega

Kasutaja ikoon ID30127
Pakkuja profiil Väike nool paremale
350€ Sisaldab KM Sisaldab KM 11.08.2016 Vestlus (0)
Kasutaja ikoon ID41129
Pakkuja profiil Väike nool paremale
400€ Sisaldab KM Sisaldab KM 11.08.2016 Vestlus (0)

Küsimused hanke korraldajale

Hanke korraldajale ei ole veel küsimusi esitatud.

Lisa küsimus

Lisa küsimus

Minu pakkumine

Reeglid

Pakkumise kirjelduse väli on mõeldud pakkumise detailsemaks lahti kirjutamiseks. Pikema teksti mugavaks sisestamiseks klikkige kasti paremal ülaservas oleval ikoonil.
Pakkumist tehes on keelatud postitada enda kontaktandmeid (nimi, telefon, aadress jne). Me jälgime ja analüüsime pakkumisi, et vältida pettuseid ja reeglite rikkumisi.
Rikkumise puhul kasutajakonto blokeeritakse.

 

Teisi töid samas valdkonnas

Valdkonnas "Lammutustööd" on 6 aktiivset tööd

Keldri bokside ja elektri eemaldamine

Asukoht: Tartumaa, Tartu
Aega jäänud: 3p 14h
Tehtud pakkumisi: 12

Aia lammutus

Asukoht: Harjumaa, Tallinn
Aega jäänud: 3p 14h
Tehtud pakkumisi: 11

Vanemad teated:

Vaata kõiki

Sellel veebilehel kasutatakse küpsiseid. Kasutamist jätkates nõustute küpsiste kasutamisega.

Sulge
 
Minu pakkumine

Reeglid

Pakkumise kirjelduse väli on mõeldud pakkumise detailsemaks lahti kirjutamiseks. Pikema teksti mugavaks sisestamiseks klikkige kasti paremal ülaservas oleval ikoonil.
Pakkumist tehes on keelatud postitada enda kontaktandmeid (nimi, telefon, aadress jne). Me jälgime ja analüüsime pakkumisi, et vältida pettuseid ja reeglite rikkumisi.
Rikkumise puhul kasutajakonto blokeeritakse.