+ Lisa oma töö      

Otsid ehitajat "Projekteerimine" valdkonnast?

Parima pakkumise ja teostaja leidmiseks lisa oma töö.

Hange on lõppenud!

Võitjaks osutus kasutaja ID 33196

Üksikelamu projekteerimine

ID 37443

3072 vaatamist

Prindi

  • check Pakkumiste tegemine
    kuni 17.08.2016
  • check Võitja valik kuni
    24.08.2016
  • 3 Töö teostamine
    ja hinnang
Hanke lõpp: K, 17. august, 2016
Maakond: Harjumaa
Muu asula: Kose vald
Tööde algus: E, 22. august, 2016 (Soovituslik)
Tööde lõpp: L, 01. oktoober, 2016 (Soovituslik)
Ehitusmaterjalid: Töö tellija poolt

Töö sisu

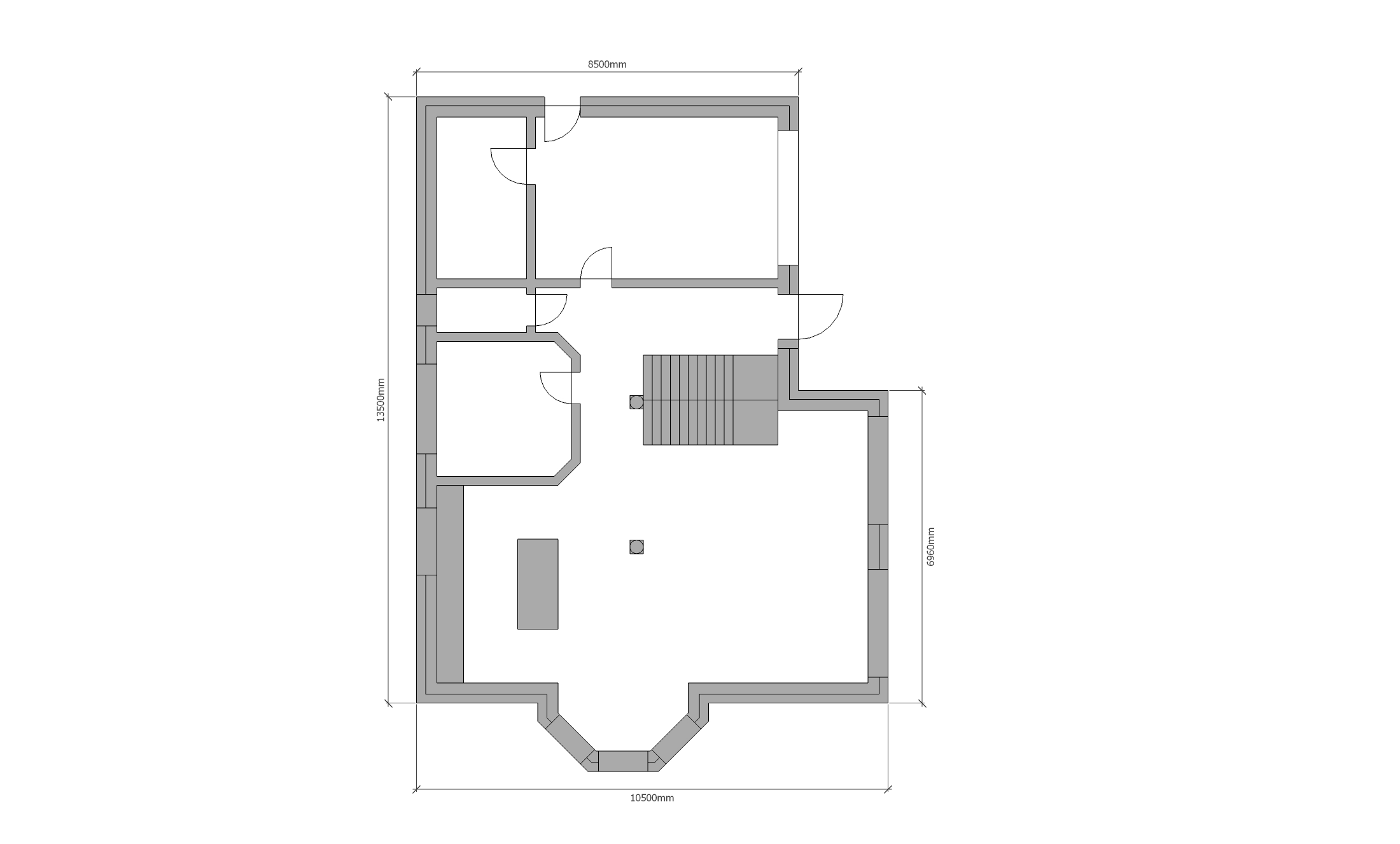
Otsime arhitekti, kes koostaks vastavalt meie nägemusele üksikelamu projekti. Oodatud on ka head nõuanded ja parandused seni tehtud plaanidele. Maja on kahekordne, viilkatusega, ehitusalune pind u 130 m2. Maa-ala topo-geodeetiline mõõdistus on tehtud.

Lisan esimese korruse plaani. Teisel korrusel on 3 magamistuba ja vannituba.

Pakkumine peab sisaldama projekti ehitusloa taotlemiseks koos kõikide kooskõlastuste ja asjaajamistega kuni ehitusloa saamiseni.

Pildid, video ja failid

Hanke korraldaja: eraisik ID42827

Pakkumised

Pakkumisi kokku: 8

Ettevõte Summa Käibemaks Lisatud Vestlus
Kasutaja ikoon ID42152
Pakkuja profiil Väike nool paremale
1 175€ Ei sisalda Ei sisalda 10.08.2016 Vestlus (0)

Pakkumise kirjeldus:

Ehitusprojekt eelprojekti staadiumis. Energiaarvutused ja energiamärgise koostamine. Kooskõlastused ehitusloa saamiseks, ehitusloa hange Kose VV
PAkkumishind ei sisalda km, kuna pakkumise tegija ei ole km-kohuslane

Kasutaja ikoon ID31455
Pakkuja profiil Väike nool paremale
1 200€ Sisaldab KM Sisaldab KM 11.08.2016 Vestlus (0)

Pakkumise kirjeldus:

jõudu, tervist, päikest.

Kasutaja ikoon ID26933
Pakkuja profiil Väike nool paremale
1 200€ Sisaldab KM Sisaldab KM 11.08.2016 Vestlus (2)

Pakkumise kirjeldus:

Eramu projekt koos täidetud ehitusloa taotlusega. Projekteerimise kestvus 4-6 nädalat.

Kasutaja ikoon ID38306
Pakkuja profiil Väike nool paremale
2 000€ Ei sisalda Ei sisalda 11.08.2016 Vestlus (0)

Pakkumise kirjeldus:

topo-geodeetiline mõõdistus + eelprojekt koos kooskõlastuste ja loaga. Teostab kogenud arhitekt.

Kasutaja ikoon ID33196
Pakkuja profiil Väike nool paremale
1 400€ Sisaldab KM Sisaldab KM 15.08.2016 Vestlus (2)

Pakkumise kirjeldus:

Tere. Meil on täna Kose vallas kaks projekti. Teile pakume elamu arhitektuurse projekti eelprojekti mahus ehitusloa saamiseks kõikide kooskõlastustega. Energiamärgis hinna sees. Soovitused ja nõuanded annab diplomeeritud arhitekt. )
Parimat. Artur

Kasutaja ikoon ID42319
Pakkuja profiil Väike nool paremale
1 150€ Sisaldab KM Sisaldab KM 15.08.2016 Vestlus (0)

Pakkumise kirjeldus:

Parim projekt meilt.

Kasutaja ikoon ID40011
Pakkuja profiil Väike nool paremale
1 300€ Ei sisalda Ei sisalda 16.08.2016 Vestlus (0)

Pakkumise kirjeldus:

Hinnapakkumine eelprojektile koos dokumentide esitamisega KOVi menetluseks.

Kasutaja ikoon ID24698
Pakkuja profiil Väike nool paremale
1 500€ Ei sisalda Ei sisalda 16.08.2016 Vestlus (0)

Pakkumise kirjeldus:

Sisaldab projekti ja kooskõlastamist ning energiamärgist. Riigilõivu tasub Telliba.

Küsimused hanke korraldajale

Hanke korraldajale ei ole veel küsimusi esitatud.

Lisa küsimus

Lisa küsimus

Minu pakkumine

Reeglid

Pakkumise kirjelduse väli on mõeldud pakkumise detailsemaks lahti kirjutamiseks. Pikema teksti mugavaks sisestamiseks klikkige kasti paremal ülaservas oleval ikoonil.
Pakkumist tehes on keelatud postitada enda kontaktandmeid (nimi, telefon, aadress jne). Me jälgime ja analüüsime pakkumisi, et vältida pettuseid ja reeglite rikkumisi.
Rikkumise puhul kasutajakonto blokeeritakse.

 

Teisi töid samas valdkonnas

Valdkonnas "Projekteerimine" on 7 aktiivset tööd

no-img Pilt puudub

1-kordse 120 m2 elumaja põhiprojekt

Asukoht: Harjumaa, Metsanurme
Aega jäänud: 8p 8h
Tehtud pakkumisi: 4

no-img Pilt puudub

Saunamaja eelprojekt ehitusteatiseks

Asukoht: Lääne-Virumaa
Aega jäänud: 1p 8h
Tehtud pakkumisi: 3

Vanemad teated:

Vaata kõiki

Sellel veebilehel kasutatakse küpsiseid. Kasutamist jätkates nõustute küpsiste kasutamisega.

Sulge
 
Minu pakkumine

Reeglid

Pakkumise kirjelduse väli on mõeldud pakkumise detailsemaks lahti kirjutamiseks. Pikema teksti mugavaks sisestamiseks klikkige kasti paremal ülaservas oleval ikoonil.
Pakkumist tehes on keelatud postitada enda kontaktandmeid (nimi, telefon, aadress jne). Me jälgime ja analüüsime pakkumisi, et vältida pettuseid ja reeglite rikkumisi.
Rikkumise puhul kasutajakonto blokeeritakse.