+ Lisa oma töö      

Otsid ehitajat "Maalritööd" valdkonnast?

Parima pakkumise ja teostaja leidmiseks lisa oma töö.

Bürooruumi seinte värvimine

ID 37500

3249 vaatamist

Prindi

  • check Pakkumiste tegemine
    kuni 24.08.2016
  • check Võitja valik kuni
    31.08.2016
  • 3 Töö teostamine
    ja hinnang
Hanke lõpp: K, 24. august, 2016
Maakond: Harjumaa
Linn: Tallinn
Tööde algus: E, 29. august, 2016 (Soovituslik)
Tööde lõpp: P, 04. september, 2016
Ehitusmaterjalid: Töö tegija poolt

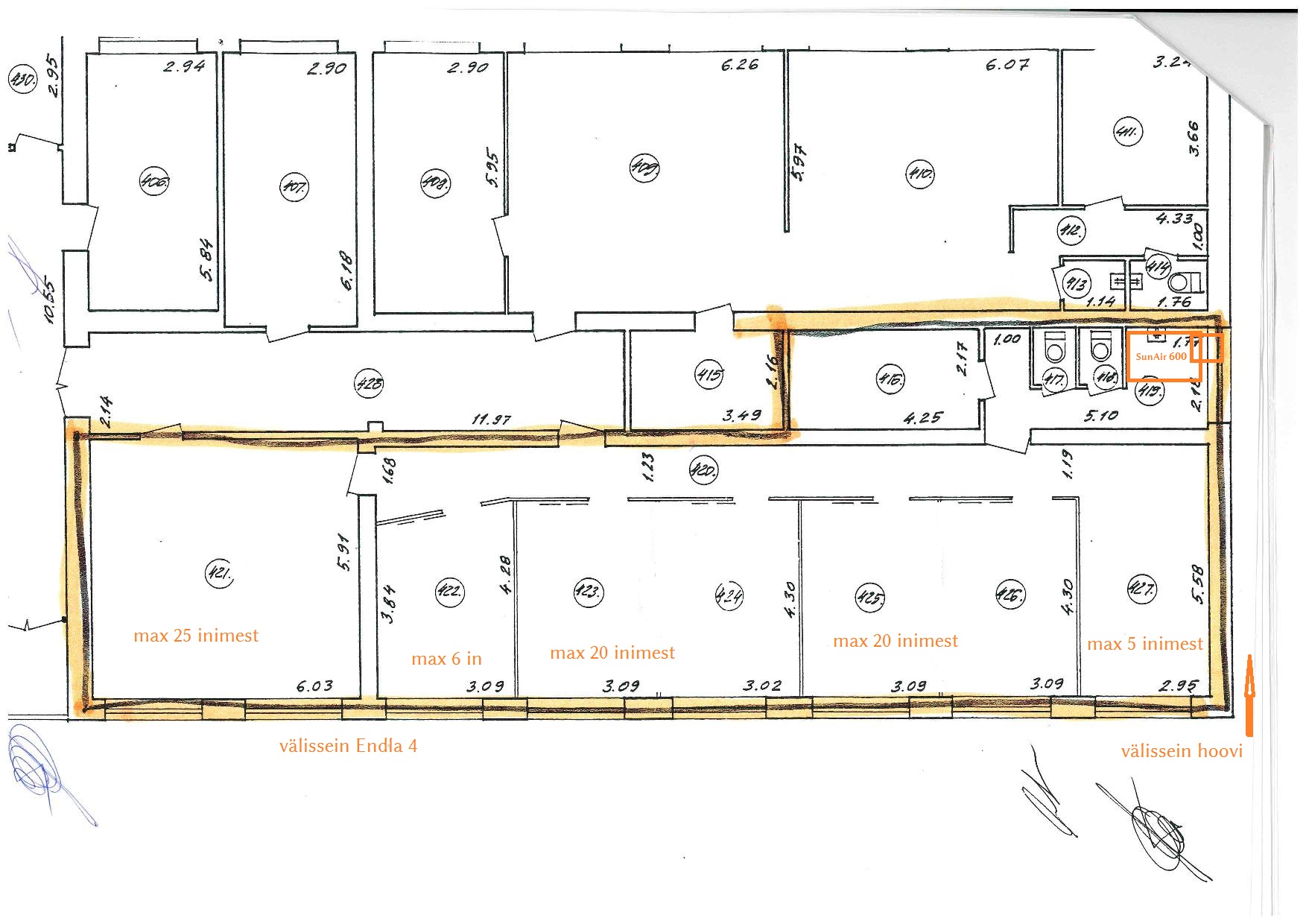
Töö sisu

Büroo asub Tallinna kesklinnas, V korrus.

Soovime maalritööde m2 hinda.
Hinnas peab sisalduma:
* teipimine (klaasseinte ääred, akende ääred jms).
* põrandate katmine
* 1 x värviga katmine
* koristamine peale värvimist
* vajadusel väikeste kruviaukude, kulunud kohtade pahteldus.
* vahendid (teip, rullid, pahtel, ehituspaber vms).

Hinnas ei pea sisalduma värv.


Tehnilised võimalused:


* pakkuja peab arvestama võimalusega, et töid tuleb teostada erinevatel päevadel ruumide kaupa, mitte kogu kompleksi korraga
* 2 lifti asuvad paarikümne meetri kaugusel
* tööd on võimalik teostada ka töövälisel ajal, sh nädalavahetusel
* töö tuleb teostada augusti lõpp-septembri algus (NB! aeg võib veidi muutuda)
* kokku võib seinapinda olla ca 240m2, kuid hankija ei kohustu maksimaalset kogust tellima

* eelnevalt värvitud kips- ja kiviseinad
* seinte kõrgus on 2.4 m


Pildid, video ja failid

Hanke korraldaja: ettevõte ID18073

Pakkumised

Pakkumisi kokku: 12

Ettevõte Summa Käibemaks Lisatud Vestlus
Kasutaja ikoon ID42832
Pakkuja profiil Väike nool paremale
8€ Sisaldab KM Sisaldab KM 17.08.2016 Vestlus (0)

Pakkumise kirjeldus:

Ruutmeetri hind.
Sisaldab:
*Minupoolseid töövahendeid(välja arvatud värv).
*Kinni katmisi.
*Liistude eemaldamist ja tagasi panekut.
*Koristust.
Tööd saan teostada Teile sobival ajal.
Päikest.

Kasutaja ikoon ID37013
Pakkuja profiil Väike nool paremale
8€ Sisaldab KM Sisaldab KM 17.08.2016 Vestlus (0)

Pakkumise kirjeldus:

Pakkumine tehtud hankes mainitud tööle.Ei sisalda värvi!

Lp.S

Kasutaja ikoon ID42866
Pakkuja profiil Väike nool paremale
6,3€ Ei sisalda Ei sisalda 18.08.2016 Vestlus (0)

Pakkumise kirjeldus:

Hinnale KM ei lisandu. Hind sisaldab töö ja materjalid ilma värv. Koos värviga hind 8euro/m2.

Kasutaja ikoon ID38784
Pakkuja profiil Väike nool paremale
5,2€ Ei sisalda Ei sisalda 18.08.2016 Vestlus (0)
Kasutaja ikoon ID41994
Pakkuja profiil Väike nool paremale
6,5€ Ei sisalda Ei sisalda 19.08.2016 Vestlus (0)
Kasutaja ikoon ID35511
Pakkuja profiil Väike nool paremale
9€ Ei sisalda Ei sisalda 20.08.2016 Vestlus (0)
Kasutaja ikoon ID39774
Pakkuja profiil Väike nool paremale
5,4€ Ei sisalda Ei sisalda 21.08.2016 Vestlus (0)

Pakkumise kirjeldus:

Hind tehtud vastavalt hanke kirjeldusele ja sisaldab materjale. Hind sisaldab väikseid pahtli parandusi, teipimist, katmistööd ja 1x värvimist ( tellija poolt valitud tooniga, lisakiht eraldi hinna eest). Hind sisaldab ehitusprahi utiliseerimist. Lugupidamisega Mehis

Kasutaja ikoon ID42927
Pakkuja profiil Väike nool paremale
6,5€ Ei sisalda Ei sisalda 22.08.2016 Vestlus (0)

Pakkumise kirjeldus:

Töö võib alata kohe

Kasutaja ikoon ID41025
Pakkuja profiil Väike nool paremale
15€ Sisaldab KM Sisaldab KM 23.08.2016 Vestlus (0)

Pakkumise kirjeldus:

Hinnapakkumine sisaldab kõiki materjale ja tööd, vajadusel ka kruntvärvi. Hind sisaldab 2 värvikihi värvimist et garanteerida kindel tulemus. tööle garantii
Lugupidamisega
J.

Kasutaja ikoon ID42691
Pakkuja profiil Väike nool paremale
6,5€ Sisaldab KM Sisaldab KM 23.08.2016 Vestlus (0)

Pakkumise kirjeldus:

Pakkumine sisaldab hankes mainitud töid. Värv ja toonimine tellija poolt.
Võimalik töödega alustada koheselt, võimalus töötada nädalavahetusel ja öösiti. Töö teostame kiirelt ja samas silmas pidades kvaliteeti.
Parimate soovidega,
J

Kasutaja ikoon ID39130
Pakkuja profiil Väike nool paremale
5€ Sisaldab KM Sisaldab KM 23.08.2016 Vestlus (0)

Pakkumise kirjeldus:

Leping,kvaliteet,garantii.Utiliseerime tekkivad ehitusjäätmed,katame kõik pinnad ja teibime.Parimatega Margus

Kasutaja ikoon ID28394
Pakkuja profiil Väike nool paremale
4,9€ Sisaldab KM Sisaldab KM 24.08.2016 Vestlus (0)

Pakkumise kirjeldus:

Tere,

Hind on küsitud tööde 1 m2 kohta, hind sisaldab km.

Edu!

Küsimused hanke korraldajale

Küsimus: private ID1280   17.08.2016 13:25
Aitäh personaalkutse eest, kahjuks on meeskond sel ajal plaaniliste töödega hõivatud, maaler vabaneb septembri kolmandaks nädalaks.<br />
Esialgne pakkumine koos eel-ja järeltöödega ning materjalidega (välja arvatud toonvärv) on 18 €/m2 , hinnale lisandub käibemaks.

Teavita reeglite rikkumisest

Korraldaja vastus: 19.08.2016 21:59

tänud info eest

Teavita reeglite rikkumisest

Lisa küsimus

Lisa küsimus

Minu pakkumine

Reeglid

Pakkumise kirjelduse väli on mõeldud pakkumise detailsemaks lahti kirjutamiseks. Pikema teksti mugavaks sisestamiseks klikkige kasti paremal ülaservas oleval ikoonil.
Pakkumist tehes on keelatud postitada enda kontaktandmeid (nimi, telefon, aadress jne). Me jälgime ja analüüsime pakkumisi, et vältida pettuseid ja reeglite rikkumisi.
Rikkumise puhul kasutajakonto blokeeritakse.

 

Vanemad teated:

Vaata kõiki

Sellel veebilehel kasutatakse küpsiseid. Kasutamist jätkates nõustute küpsiste kasutamisega.

Sulge
 
Minu pakkumine

Reeglid

Pakkumise kirjelduse väli on mõeldud pakkumise detailsemaks lahti kirjutamiseks. Pikema teksti mugavaks sisestamiseks klikkige kasti paremal ülaservas oleval ikoonil.
Pakkumist tehes on keelatud postitada enda kontaktandmeid (nimi, telefon, aadress jne). Me jälgime ja analüüsime pakkumisi, et vältida pettuseid ja reeglite rikkumisi.
Rikkumise puhul kasutajakonto blokeeritakse.