+ Lisa oma töö      

Otsid ehitajat "Arhitektibürood" valdkonnast?

Parima pakkumise ja teostaja leidmiseks lisa oma töö.

Korterite projekteerimine

ID 37568

4047 vaatamist

Prindi

  • check Pakkumiste tegemine
    kuni 23.09.2016
  • check Võitja valik kuni
    17.10.2016
  • 3 Töö teostamine
    ja hinnang
Hanke lõpp: R, 23. september, 2016
Maakond: Harjumaa
Linn: Tallinn
Tööde algus: T, 30. august, 2016 (Soovituslik)
Tööde lõpp: L, 15. oktoober, 2016 (Soovituslik)
Ehitusmaterjalid: Töö tellija poolt

Töö sisu

Tere!
Pakkuda selline töö.
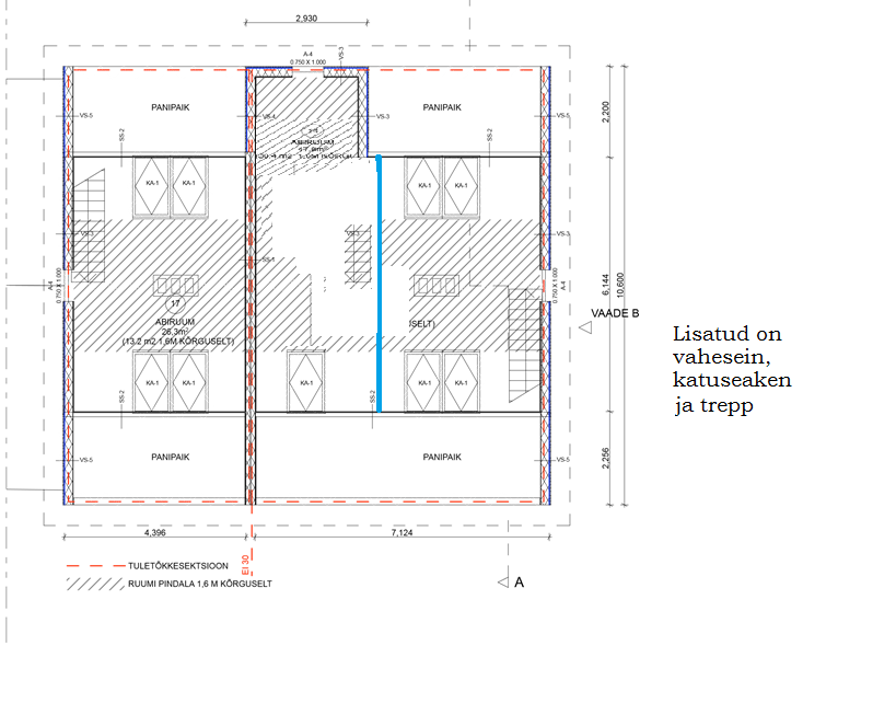
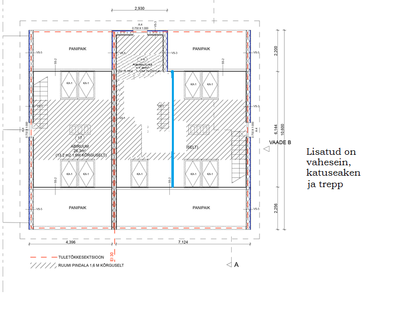
Puumajas väikese korteri ümber planeerimine (väikesed muudatused).
Majal on kinnitatud renoveerimisprojekt millega on lahendatud ka kõneks oleva korteri projekt.
Sooviks korteris täiendavaid muudatusi - veel ühte treppi pööningule (pööningu kasutusele võtt on lahendatud eelmise projektiga), katuseakent ja veel üht välisust.

Kas olete huvitatud?

Lugupidamisega

Pildid, video ja failid

Hanke korraldaja: ettevõte ID42963

Pakkumised

Pakkumisi kokku: 3

Ettevõte Summa Käibemaks Lisatud Vestlus
Kasutaja ikoon ID42152
Pakkuja profiil Väike nool paremale
700€ Ei sisalda Ei sisalda 24.08.2016 Vestlus (4)

Pakkumise kirjeldus:

Ehitusprojekt eelprojekti staadiumis. Kooskõlastused, ehitusteatise hange TLPA-st.
PAkkumishinnale km ei lisandu, kuna pakkumise tegija ei ole km-kohuslane.

Kasutaja ikoon ID40011
Pakkuja profiil Väike nool paremale
870€ Sisaldab KM Sisaldab KM 24.08.2016 Vestlus (4)

Pakkumise kirjeldus:

Hp projekti muudatusele, eelprojekti mahus.

Kasutaja ikoon ID42319
Pakkuja profiil Väike nool paremale
700€ Sisaldab KM Sisaldab KM 24.08.2016 Vestlus (4)

Pakkumise kirjeldus:

Tegemist on ettevõttega, kellel on kaks kogenud projekteerijat.

Küsimused hanke korraldajale

Hanke korraldajale ei ole veel küsimusi esitatud.

Lisa küsimus

Lisa küsimus

Minu pakkumine

Reeglid

Pakkumise kirjelduse väli on mõeldud pakkumise detailsemaks lahti kirjutamiseks. Pikema teksti mugavaks sisestamiseks klikkige kasti paremal ülaservas oleval ikoonil.
Pakkumist tehes on keelatud postitada enda kontaktandmeid (nimi, telefon, aadress jne). Me jälgime ja analüüsime pakkumisi, et vältida pettuseid ja reeglite rikkumisi.
Rikkumise puhul kasutajakonto blokeeritakse.

 

Teisi töid samas valdkonnas

Valdkonnas "Arhitektibürood" on 4 aktiivset tööd

no-img Pilt puudub

Ehitusprojekt

Asukoht: Pärnumaa, Lemmetsa
Aega jäänud: 2p 7h
Tehtud pakkumisi: 3

36 kohalise hooldekodu projekti koostamine

Asukoht: Pärnumaa, Pärnu
Aega jäänud: 29p 7h
Tehtud pakkumisi: 2

Vanemad teated:

Vaata kõiki

Sellel veebilehel kasutatakse küpsiseid. Kasutamist jätkates nõustute küpsiste kasutamisega.

Sulge
 
Minu pakkumine

Reeglid

Pakkumise kirjelduse väli on mõeldud pakkumise detailsemaks lahti kirjutamiseks. Pikema teksti mugavaks sisestamiseks klikkige kasti paremal ülaservas oleval ikoonil.
Pakkumist tehes on keelatud postitada enda kontaktandmeid (nimi, telefon, aadress jne). Me jälgime ja analüüsime pakkumisi, et vältida pettuseid ja reeglite rikkumisi.
Rikkumise puhul kasutajakonto blokeeritakse.