+ Lisa oma töö      

Otsid ehitajat "Vundamenditööd" valdkonnast?

Parima pakkumise ja teostaja leidmiseks lisa oma töö.

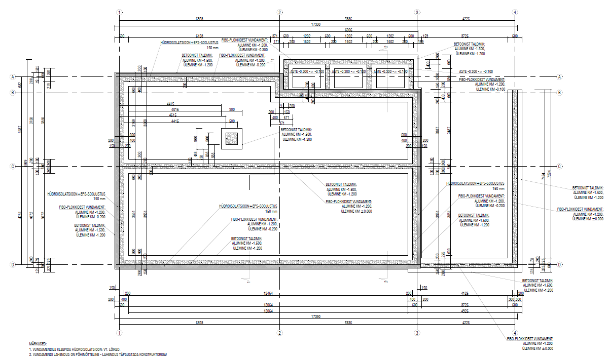
Lintvundamendi ehitus koos põrandaplaadi valamisega.

ID 37813

5614 vaatamist

Prindi

  • check Pakkumiste tegemine
    kuni 30.09.2016
  • check Võitja valik kuni
    07.10.2016
  • 3 Töö teostamine
    ja hinnang
Hanke lõpp: R, 30. september, 2016
Maakond: Harjumaa
Muu asula: Haabneeme
Tööde algus: E, 26. september, 2016 (Soovituslik)
Tööde lõpp: R, 28. oktoober, 2016 (Soovituslik)
Ehitusmaterjalid: Töö tellija poolt

Töö sisu

Palun pakkumist lintvundamendi ehitamiseks.

Hetke olukord krundil:
1. Kännud eemaldatud, krunt kaetud huumuse kihiga.
2. Teljed on geodeedi poolt maha märgitud. Sama geodeet märgib maha ka taldmiku nurgad ja sokli nurgapunktid. Krundi lähedal on olemas ka 0-kõrgusmärk.
3. Krundi piirist sissepoole on toodud liitumisotsad (vesi, kanal, drenaaž ja elektrikõri)
4. Krundiile juurdepääs mööda asfaltteid
5. Pinnas on sinisavi kuni ca. 1m sügavusel asuva argiliitsavi kihini. Sellele peaks toetuma taldmik

Vaja teha:
1. Rajada krundile ajutine mahasõit asfaldilt
2. Koorida majaalune pinnas ladustamisega krundil (huumuse paksus umbes 20 cm.)
3. Kaevata vundamendikraav (ainult maja- ja varjualuse alune osa - terrassi vundamenti praegu ei raja) ladustamisega krundil
4. Vedada torustikud ja kõrid koos kõigi vajalike kaevudega
5. Rajada taldmiku drenaaž ning taldmiku normikohaselt tihendatud killustikupadi
6. Rajada taldmik (ainult maja- ja varjualuse alune osa - terrassi vundamenti praegu ei raja)
7. Rajada soklimüür
8. Rajada sokli vöö
9. Katta sokkel hüdroisolatsiooniga ning kleepida siseküljele 50mm XPS
10. Vedada krundisisesed torustikud ja teha tagasitäide
11. Laduda tagasitäitele 200mm XPS
12. Armeerida põrandaplaat ja vedada põrandakütte kontuurid
13. Valada ja siluda põrandaplaat
14. Täita varjualuse osa tihendatud killustikuga betoonkivi ladumiseks. Varjualusesse betoonplaati ei tule

Vundamendi perimeetri välise soojustuse paigaldamist palun pakkumisse mitte lisada - selle teeb klient hiljem. Eesmärk on vundament saada valmidusse, kus majatehas saab elemente peale paigaldama hakata.

Pildid, video ja failid

Hanke korraldaja: eraisik ID42580

Pakkumised

Pakkumisi kokku: 3

Ettevõte Summa Käibemaks Lisatud Vestlus
Kasutaja ikoon ID42022
Pakkuja profiil Väike nool paremale
28 000€ Sisaldab KM Sisaldab KM 16.09.2016 Vestlus (28)

Pakkumise kirjeldus:

Suur kogemus

Kasutaja ikoon ID38730
Pakkuja profiil Väike nool paremale
26 800€ Ei sisalda Ei sisalda 21.09.2016 Vestlus (3)
Kasutaja ikoon ID8633
Pakkuja profiil Väike nool paremale
27 500€ Ei sisalda Ei sisalda 30.09.2016 Vestlus (2)

Küsimused hanke korraldajale

Hanke korraldajale ei ole veel küsimusi esitatud.

Lisa küsimus

Lisa küsimus

Minu pakkumine

Reeglid

Pakkumise kirjelduse väli on mõeldud pakkumise detailsemaks lahti kirjutamiseks. Pikema teksti mugavaks sisestamiseks klikkige kasti paremal ülaservas oleval ikoonil.
Pakkumist tehes on keelatud postitada enda kontaktandmeid (nimi, telefon, aadress jne). Me jälgime ja analüüsime pakkumisi, et vältida pettuseid ja reeglite rikkumisi.
Rikkumise puhul kasutajakonto blokeeritakse.

 

Vanemad teated:

Vaata kõiki

Sellel veebilehel kasutatakse küpsiseid. Kasutamist jätkates nõustute küpsiste kasutamisega.

Sulge
 
Minu pakkumine

Reeglid

Pakkumise kirjelduse väli on mõeldud pakkumise detailsemaks lahti kirjutamiseks. Pikema teksti mugavaks sisestamiseks klikkige kasti paremal ülaservas oleval ikoonil.
Pakkumist tehes on keelatud postitada enda kontaktandmeid (nimi, telefon, aadress jne). Me jälgime ja analüüsime pakkumisi, et vältida pettuseid ja reeglite rikkumisi.
Rikkumise puhul kasutajakonto blokeeritakse.