+ Lisa oma töö      

Otsid ehitajat "Trepiehitus" valdkonnast?

Parima pakkumise ja teostaja leidmiseks lisa oma töö.

Keldri välistrepi ehitus/ paigaldus

ID 37993

5273 vaatamist

Prindi

  • check Pakkumiste tegemine
    kuni 20.10.2016
  • check Võitja valik kuni
    27.10.2016
  • 3 Töö teostamine
    ja hinnang
Hanke lõpp: N, 20. oktoober, 2016
Maakond: Harjumaa
Linn: Tallinn
Tööde algus: E, 17. oktoober, 2016 (Soovituslik)
Tööde lõpp: E, 31. oktoober, 2016 (Soovituslik)
Ehitusmaterjalid: Töö tellija poolt

Töö sisu

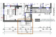
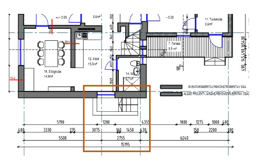
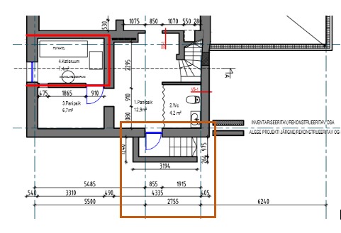
Uue keldritrepi ehitus või olemasoleva betoonist valatud trepi paigaldus.

Hetkel on vana trepp ära lammutatud, hetkeolukord näha lisatud fotodelt.

Pakkumise võib teha kas uue trepi täielikule ehitusele või siis olemasoleva trepi paigaldusele.

1. Uue trepi ehitus
- Keldriukseesise ala valamine (ukseesise ala süvendamine vastavalt vajadusele)
- Trepi ehitus

2. Olemasoleva betoontrepi paigaldus
- Keldriukseesise ala süvendamine vastavalt vajadusele
- Vajalikud ettevalmistustööd trepi paigaldamiseks
- Olemasolev betoontrepp (10 astet) on umbes 10 m kaugusel, vaja transportida trepi õigesse asukohta ning paigaldada
- Keldriukseesise ala valamine
- Viimistlustööd

Hetkel välistrepi kohal varikatus puudub, paigaldatakse koos fassaaditöödega hiljem, seda hankes ei ole.

Vastavalt kokkuleppele võib lisada juurde ka puuduva müüri ehituse, hetkel on olemas ainult otsamüür ja külgmüür puudu (lisatud fotodelt näha). Samas võib see jääda hankest välja. Saab kokku leppida hanke võitjaga.

Pildid, video ja failid

Hanke korraldaja: eraisik ID43326

Pakkumised

Pakkumisi kokku: 4

Ettevõte Summa Käibemaks Lisatud Vestlus
Kasutaja ikoon ID43314
Pakkuja profiil Väike nool paremale
2 800€ Sisaldab KM Sisaldab KM 08.10.2016 Vestlus (0)

Pakkumise kirjeldus:

Kohe saab teha. Müür tuleb kindlasti ka teha.

Kasutaja ikoon ID42545
Pakkuja profiil Väike nool paremale
2 700€ Ei sisalda Ei sisalda 10.10.2016 Vestlus (0)

Pakkumise kirjeldus:

Täielik aluse puhastus vanadest müüridest, uue põhja valu EPS plaadil,, uue treppikasti valu 3 müüriga, olemasoleva trepi mõõtulõikamine ja montaaž, põrandas sadevee trapp. trepikasti välispidine hüdroisolatsioon

Kasutaja ikoon ID42319
Pakkuja profiil Väike nool paremale
2 590€ Sisaldab KM Sisaldab KM 10.10.2016 Vestlus (0)

Pakkumise kirjeldus:

Leping. Arve. Garantii 2 aastat.

Kasutaja ikoon ID43279
Pakkuja profiil Väike nool paremale
1 600€ Ei sisalda Ei sisalda 12.10.2016 Vestlus (0)

Pakkumise kirjeldus:

Tere, minupoolne pakkumine on koos materjaalidega ja teie treppiga ja ilmastikku kindla petooniga ,loomulikult karantiiga kuid see on koht kuhu valgub sadevesi kas on võimalik paigaldada trapp ukse ette kuna see annab teie ukseees olevale petoonile pikema elu hea.

Küsimused hanke korraldajale

Küsimus: private ID42545   09.10.2016 14:43
Nagu lähtub piltidest pole seal ühtki uue trepi rajamiseks sobivat müüri, olemasolevad tuleb ilmtingimata jalust ära koristada. Kirjeldate et teil on 10 meetri kaugusel mingi 10 astmega trepp mis te sellega tahate teha?

Teavita reeglite rikkumisest

Korraldaja vastus: 09.10.2016 22:30

On olemas kortermajas kasutatav 2 korrusevaheline raudbetoontrepp mis on olnud varem ehitise teises osas kasutusel. Praeguse soovitava trepi asukohast on btoon jne eemaldatud ning on jäänud vaid pinnas maja vundamendi ääres. Põhimõtteliselt oleks vaja see olemasolev trepp asetada siis kohta kus on trepp ettte nähtud projektiga või siis tekitada vastav trepp betooni valust.

Teavita reeglite rikkumisest

Lisa küsimus

Lisa küsimus

Minu pakkumine

Reeglid

Pakkumise kirjelduse väli on mõeldud pakkumise detailsemaks lahti kirjutamiseks. Pikema teksti mugavaks sisestamiseks klikkige kasti paremal ülaservas oleval ikoonil.
Pakkumist tehes on keelatud postitada enda kontaktandmeid (nimi, telefon, aadress jne). Me jälgime ja analüüsime pakkumisi, et vältida pettuseid ja reeglite rikkumisi.
Rikkumise puhul kasutajakonto blokeeritakse.

 

Teisi töid samas valdkonnas

Valdkonnas "Trepiehitus" on 3 aktiivset tööd

Trepi remont

Asukoht: Harjumaa, Haabneeme
Aega jäänud: 6h 52 min
Tehtud pakkumisi: 3

Lihtne terrassi trepp

Asukoht: Harjumaa, Kose
Aega jäänud: 2p 6h
Tehtud pakkumisi: 1

Vanemad teated:

Vaata kõiki

Sellel veebilehel kasutatakse küpsiseid. Kasutamist jätkates nõustute küpsiste kasutamisega.

Sulge
 
Minu pakkumine

Reeglid

Pakkumise kirjelduse väli on mõeldud pakkumise detailsemaks lahti kirjutamiseks. Pikema teksti mugavaks sisestamiseks klikkige kasti paremal ülaservas oleval ikoonil.
Pakkumist tehes on keelatud postitada enda kontaktandmeid (nimi, telefon, aadress jne). Me jälgime ja analüüsime pakkumisi, et vältida pettuseid ja reeglite rikkumisi.
Rikkumise puhul kasutajakonto blokeeritakse.