+ Lisa oma töö      

Otsid ehitajat "Eramu ehitus" valdkonnast?

Parima pakkumise ja teostaja leidmiseks lisa oma töö.

Vundamendi ehitus

ID 38148

3799 vaatamist

Prindi

  • check Pakkumiste tegemine
    kuni 24.11.2016
  • check Võitja valik kuni
    01.12.2016
  • 3 Töö teostamine
    ja hinnang
Hanke lõpp: N, 24. november, 2016
Maakond: Ida-Virumaa
Muu asula: Liimala
Tööde algus: E, 05. detsember, 2016 (Soovituslik)
Tööde lõpp: L, 31. detsember, 2016 (Soovituslik)
Ehitusmaterjalid: Töö tellija poolt

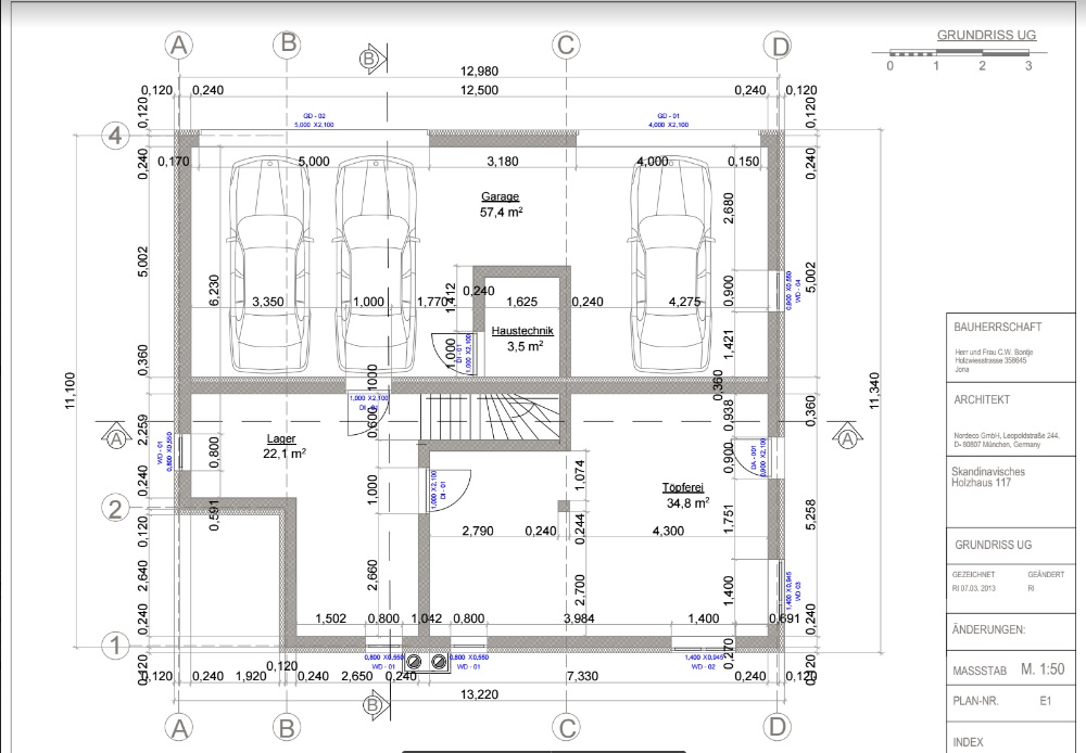
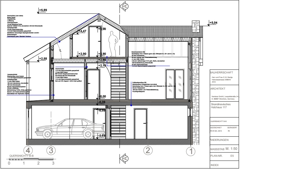
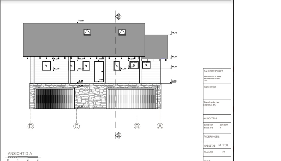
Töö sisu

Oleks vaja ligikaudset pakkumist maja vundamendi ehituseks.
Maja alla peab siis tulema garaaš, saun ja katlamaja ehk siis tegemist on nö täiskeldriga.
Sinna peale tuleb valmis "tehasemaja"
Hind võiks sisaldada augu kaevamist, vundamendi täismaksumust koos "laepaneelidega" kuhu maja peale panna.
Materjali valik on vaba, kui võimalik siis välja tuua hinnad suurtest betoonplokkidest vs FIBO vms.
Lisaküsimused on teretulnud ja vabandan ette ära kui ei ole piisavalt infot vms!

Pildid, video ja failid

Hanke korraldaja: eraisik ID43462

Pakkumised

Pakkumisi kokku: 2

Ettevõte Summa Käibemaks Lisatud Vestlus
Kasutaja ikoon ID35191
Pakkuja profiil Väike nool paremale
12 500€ Sisaldab KM Sisaldab KM 30.10.2016 Vestlus (1)

Pakkumise kirjeldus:

Tere.
Oleme valmis töid alustama kasvõi koheselt, töökogemus 20 aastat. Hind sisaldab materjale v.a laepaneele(laepaneelide paigaldus hinnas)
Täname.

Kasutaja ikoon ID40881
Pakkuja profiil Väike nool paremale
12 500€ Ei sisalda Ei sisalda 24.11.2016 Vestlus (0)

Küsimused hanke korraldajale

Küsimus: private ID35191   31.10.2016 21:06
Tere.<br />
Jah, teeme ka plaatvundamente, oleme nõus suhtlema pikemalt.

Teavita reeglite rikkumisest

Korraldaja vastus:
Hanke korraldaja ei ole küsimusele veel vastanud

Lisa küsimus

Lisa küsimus

Minu pakkumine

Reeglid

Pakkumise kirjelduse väli on mõeldud pakkumise detailsemaks lahti kirjutamiseks. Pikema teksti mugavaks sisestamiseks klikkige kasti paremal ülaservas oleval ikoonil.
Pakkumist tehes on keelatud postitada enda kontaktandmeid (nimi, telefon, aadress jne). Me jälgime ja analüüsime pakkumisi, et vältida pettuseid ja reeglite rikkumisi.
Rikkumise puhul kasutajakonto blokeeritakse.

 

Teisi töid samas valdkonnas

Valdkonnas "Eramu ehitus" on 2 aktiivset tööd

Eramu ehitus

Asukoht: Viljandimaa, Viljandi
Aega jäänud: 5p 12h
Tehtud pakkumisi: 1

no-img Pilt puudub

Eramu ehitus. Karp kinni.

Asukoht: Lääne-Virumaa
Aega jäänud: 3p 12h
Tehtud pakkumisi: 0

Vanemad teated:

Vaata kõiki

Sellel veebilehel kasutatakse küpsiseid. Kasutamist jätkates nõustute küpsiste kasutamisega.

Sulge
 
Minu pakkumine

Reeglid

Pakkumise kirjelduse väli on mõeldud pakkumise detailsemaks lahti kirjutamiseks. Pikema teksti mugavaks sisestamiseks klikkige kasti paremal ülaservas oleval ikoonil.
Pakkumist tehes on keelatud postitada enda kontaktandmeid (nimi, telefon, aadress jne). Me jälgime ja analüüsime pakkumisi, et vältida pettuseid ja reeglite rikkumisi.
Rikkumise puhul kasutajakonto blokeeritakse.