+ Lisa oma töö      

Otsid ehitajat "Üldehitus" valdkonnast?

Parima pakkumise ja teostaja leidmiseks lisa oma töö.

Korteri kipsitööd

ID 38191

4113 vaatamist

Prindi

  • check Pakkumiste tegemine
    kuni 06.11.2016
  • check Võitja valik kuni
    13.11.2016
  • 3 Töö teostamine
    ja hinnang
Hanke lõpp: P, 6. november, 2016
Maakond: Harjumaa
Linn: Tallinn
Tööde algus: E, 07. november, 2016 (Soovituslik)
Tööde lõpp: E, 14. november, 2016 (Soovituslik)
Ehitusmaterjalid: Töö tellija poolt

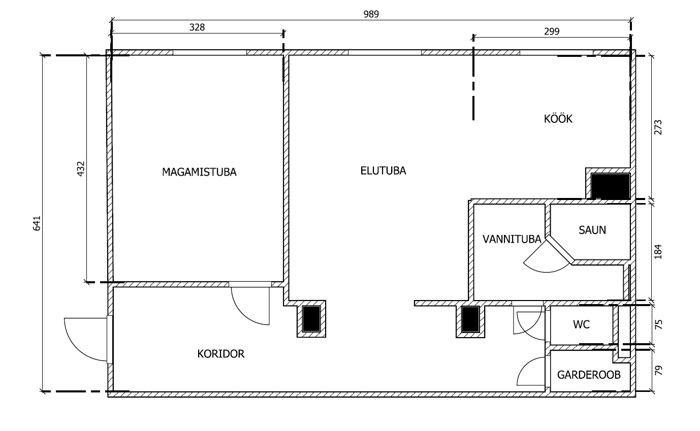
Töö sisu

Korteri suurus 59m2.
Hetkel korteris tühi plats, põrandal OSB plaat.
Lae kõrgus põrandast 3m.

Hinnapakkumine teha joonisel olevatele siseseinte ehitusele ning lae katmine kipsiga (vannitoa, sauna ja wc osas ei tule kipsi lakke).
Seinad: Kipsplaat-metallkarkass-vill-kipsplaat.
Lagi: metallkarkass-kahekordne kips. Karkass laekülge ja kipsplaadid peale. Lage tahab võimaliult vähe alla tuua. Lihtsalt, et mahuksid süvistatavad lambid paigaldada.

Pildid, video ja failid

Hanke korraldaja: eraisik ID7090

Pakkumised

Pakkumisi kokku: 9

Ettevõte Summa Käibemaks Lisatud Vestlus
Kasutaja ikoon ID42966
Pakkuja profiil Väike nool paremale
7€ Ei sisalda Ei sisalda 30.10.2016 Vestlus (4)

Pakkumise kirjeldus:

karkass+vill+kips 7e m2. kips+karkass+vill+kips 9e m2. lagi karkass+kips+kips 12e m2
Tervitades J.

Kasutaja ikoon ID37013
Pakkuja profiil Väike nool paremale
12€ Ei sisalda Ei sisalda 30.10.2016 Vestlus (0)

Pakkumise kirjeldus:

Pakkumisele ei lisandu km.

Kasutaja ikoon ID40900
Pakkuja profiil Väike nool paremale
8€ Ei sisalda Ei sisalda 31.10.2016 Vestlus (4)

Pakkumise kirjeldus:

Tere.
Pakkumine mõeldud kipsi paigalduse m2 hinnale .
8 eur m2 1 kordne kipssena ehitamine
12 eur m2 1 kortsekipslae ehitus.
Töid teostame 2 kesi .
Tööks vajalikud vahendid olemas.
Tasumine osadekaupa kokkuleppel.
Alustamisvõimalus koheselt.

Parimat

Kasutaja ikoon ID43501
Pakkuja profiil Väike nool paremale
9€ Ei sisalda Ei sisalda 31.10.2016 Vestlus (0)

Pakkumise kirjeldus:

Siseseinte ehitus 9 eur ruut.Topeltkipslagi 10 eur ruut.

Kasutaja ikoon ID43025
Pakkuja profiil Väike nool paremale
8,5€ Ei sisalda Ei sisalda 02.11.2016 Vestlus (4)

Pakkumise kirjeldus:

Tere.Meie hind on 8.50 m2.Omame suurt kogemust kipsitöödel,meil on palju rahul olevaid kliente nii Soomes,kui Eestis.
Lugupidamisega.

Kasutaja ikoon ID35063
Pakkuja profiil Väike nool paremale
1 460€ Ei sisalda Ei sisalda 03.11.2016 Vestlus (0)

Pakkumise kirjeldus:

Tere!
Kogu töö maksumus,käibemaksu ei lisandu!

Kasutaja ikoon ID40229
Pakkuja profiil Väike nool paremale
1 825€ Ei sisalda Ei sisalda 04.11.2016 Vestlus (0)

Pakkumise kirjeldus:

Tere!
Lisandub km, kui arve alusel tasumist soovite.

Lgpm.

Kasutaja ikoon ID41025
Pakkuja profiil Väike nool paremale
18€ Ei sisalda Ei sisalda 06.11.2016 Vestlus (0)

Pakkumise kirjeldus:

Kiire ja kvaliteetne töö, millele anname ka garantii. Hinnale käibemaksu ei lisandu. Tegemist on tunnihinnaga.
Lugupidamisega
J.

Kasutaja ikoon ID31957
Pakkuja profiil Väike nool paremale
12€ Ei sisalda Ei sisalda 06.11.2016 Vestlus (2)

Pakkumise kirjeldus:

Pakkumine töörahale 1 m2 kohta. Lugupidamisega!

Küsimused hanke korraldajale

Küsimus: private ID35063   30.10.2016 19:19
Tere!<br />
Kas ainult siseseinad?<br />
Tänan!

Teavita reeglite rikkumisest

Korraldaja vastus: 30.10.2016 21:25

Kui siis ainult magamistoa ühte seina tuleb kipsi, kui see annaks müra mõttes mingit kasu (seina taga korterelamu koridor).<br />
Mujale välisseina kipsi plaanis panna ei ole. Akende poole kindlasti mitte, kuna radiaatorite torud jooksevad mööda seina ja ei mahuks.

Teavita reeglite rikkumisest

Lisa küsimus

Lisa küsimus

Minu pakkumine

Reeglid

Pakkumise kirjelduse väli on mõeldud pakkumise detailsemaks lahti kirjutamiseks. Pikema teksti mugavaks sisestamiseks klikkige kasti paremal ülaservas oleval ikoonil.
Pakkumist tehes on keelatud postitada enda kontaktandmeid (nimi, telefon, aadress jne). Me jälgime ja analüüsime pakkumisi, et vältida pettuseid ja reeglite rikkumisi.
Rikkumise puhul kasutajakonto blokeeritakse.

 

Teisi töid samas valdkonnas

Valdkonnas "Üldehitus" on 38 aktiivset tööd

Korteri kapitaalremont

Asukoht: Harjumaa, Laagri
Aega jäänud: 9h 11 min
Tehtud pakkumisi: 5

5 tonni liiva esimese korruse aknast sisse tõsta (põranda aluse täiteks)

Asukoht: Jõgevamaa, Jõgeva
Aega jäänud: 1p 9h
Tehtud pakkumisi: 4

Vanemad teated:

Vaata kõiki

Sellel veebilehel kasutatakse küpsiseid. Kasutamist jätkates nõustute küpsiste kasutamisega.

Sulge
 
Minu pakkumine

Reeglid

Pakkumise kirjelduse väli on mõeldud pakkumise detailsemaks lahti kirjutamiseks. Pikema teksti mugavaks sisestamiseks klikkige kasti paremal ülaservas oleval ikoonil.
Pakkumist tehes on keelatud postitada enda kontaktandmeid (nimi, telefon, aadress jne). Me jälgime ja analüüsime pakkumisi, et vältida pettuseid ja reeglite rikkumisi.
Rikkumise puhul kasutajakonto blokeeritakse.