+ Lisa oma töö      

Otsid ehitajat "Elektritööd" valdkonnast?

Parima pakkumise ja teostaja leidmiseks lisa oma töö.

Hange on lõppenud!

Võitjaks osutus kasutaja ID 33667

Tallinna kahetoalise korteri elektrisüsteemi täisrenoveerimine

ID 38210

6018 vaatamist

Prindi

  • check Pakkumiste tegemine
    kuni 08.11.2016
  • check Võitja valik kuni
    15.11.2016
  • 3 Töö teostamine
    ja hinnang
Hanke lõpp: T, 8. november, 2016
Maakond: Harjumaa
Muu asula: Kesklinn
Tööde algus: E, 21. november, 2016 (Soovituslik)
Tööde lõpp: P, 27. november, 2016 (Soovituslik)
Ehitusmaterjalid: Töö tegija poolt

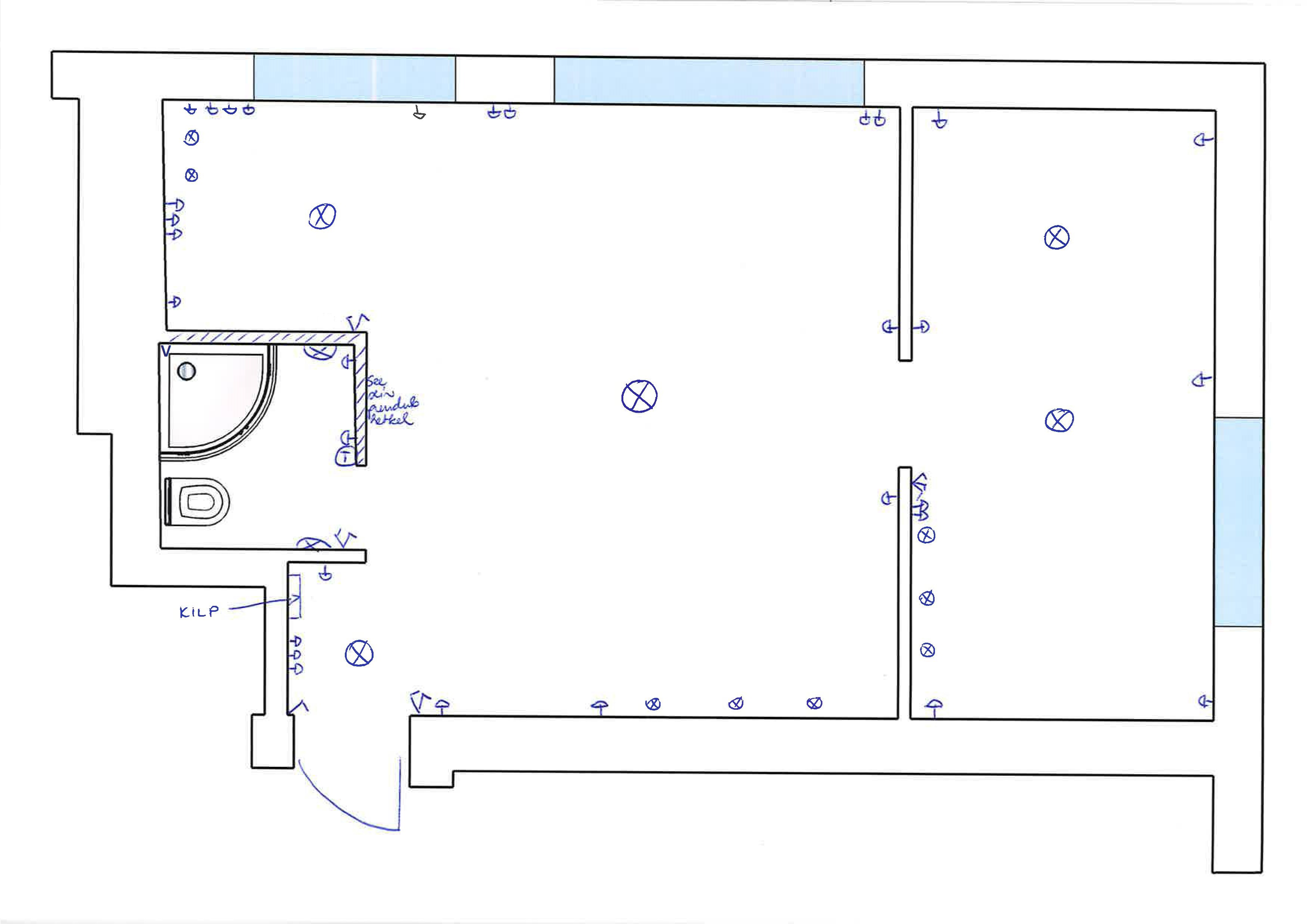
Töö sisu

Tallinna kesklinna piirkonnas kahetoalise korteri elektrisüsteemi täisrenoveerimine ja uus kilp koos kilbijoonisega. Korteri lagede kõrgus on ca 2.85m, korteri pind 37 m2, kiviseinad, tubadevaheline vahesein on tuhaplokist, vannitoa siseseinad ehitatakse kipsist karkassile (hetkel puuduvad). Korter on kapitaalremondis, tööde ajal keegi sees ei ela.

Pistikud on kõik vaja seintesse süvistada põrandast ca 20 cm üles. Sooned täidetakse viimistluse käigus. Pistikute kaabelduse saab teha suures osas põrandapaneeli pealt ja see jääb seina äärde laakide vahele/põranda alla. Lülitid ja valgustuse asukohad tuleb vastavalt kas vahetada vanad või süvistada uued. Valgustuse all on mõeldud kaabeldust.

Palju maksaks töö koos materjalide (kaablid, harukarbid, toosid, kaitsmed, rikkevoolu kaitsmed, kilp ja põrandakütte termostaat). Lambid, pistikud ja lülitid on omaniku poolt. Kui vajalik eemaldada voolumõõtja plomme, siis sellega arvestada ka pakkumises.


Esik
Kilp asetseb esikus vasakul lae all (joonisel märgitud), olemasolev elektrimõõtja on ka seal.ja jääb kilbi lähedusse. Kilbi kõrvale lae alla vajalikud kolm pistikut. Üks uksekellale (olemas ja vajab vahetust) ja kaks uut ruuterile/internetile, üks valgusti lakke (vaja vahetada olemasolev kaabel), üks lüliti- välisukse kõrvale vasakule seinale uksest sisenedes.
Põranda lähedale 1 pistik vannitoa seina nurka (joonisel märgitud).
Kokku 4 pisikut, 1 lüliti, 1 laevalgustuskoht ja kilp (kilbis 2 rikkevoolukaitset)

Vannituba
Kaks pistikut, üks valgusti seina peale, teine valgusti kraanikausi kohale, lüliti sissepoole ukse kõrvale. Põrandakütte paigaldamise valmidus ja põrandakütte termostaat (rikkevool). Dušikabiini kohale elektriline ventilaator.
Kokku 2 pistikut, 1 kahene lüliti, kaks valgustuskohta, ventilaator ja põrandakütte termostaat.

Köök
Lakke üks valgusti (vaja vahetada olemasolev kaabel), lüliti seinal. Valgustus köögi töötasapinna kohale, kappide alla. Neli pistikupesa köögimööbli töötasapinna kohale seinale, pistik külmikule, õhupuhastile, ahjule, pliidile ja pesumasinale (rikkevool).
Kokku 9 pistikut(üks neljane, viis ühest), 1 kahene lüliti, lae ja töötasapinna valgustuskohad.

Elutuba
Üks valgusti lakke (vaja vahetada olemasolev kaabel), lüliti välisukse kõrval toa seinal (joonisel märgitud). Joonisel märgitud uus loodav valgustuskoht (kipsist karniisi sisse süvistatud valgustid). Pistikuid akna alla kaks kahest ja mujale tuppa 4 ühest. Asukohad joonisel märgitud.
Kokku 2 kahest ja 4 ühest pistikut, 1 kahene lüliti, lae ja seinaääre valgustuskohad.

Magamistuba
Kaks valgustit lakke (ühel vaja vahetada olemasolev kaabel, teine vaja tekitada), kolmene lüliti ukse kõrval. Joonisel märgitud uus loodav valgustuskoht (kipsist karniisi sisse süvistatud valgustid). Vastavalt joonisele 8 pistikut.
Kokku 6 ühest pistikut, 1 kahene pistik, 1 kolmene lüliti, kaks laevalgususkohta ja seinaääre valgustuskoht.


Kokku on pistikupesasid 31 (1 neljane, 3 kahest, 21 ühest), 1 ühene lüliti, 3 kahest lüliti, 1 kolmene lüliti, 6 laevalgustuskohta, 1 seinavalgustuskoht vannitoas, 2 seinaääre valgustuskohta tubades, 1 töötasapinna valgustuskoht köögis, 1 põrandakütte termostaat, üks kilp. Harukarbid vastavalt vajadusele.

Pildid, video ja failid

Hanke korraldaja: eraisik ID43521

Pakkumised

Pakkumisi kokku: 6

Ettevõte Summa Käibemaks Lisatud Vestlus
Kasutaja ikoon ID25180
Pakkuja profiil Väike nool paremale
1 360€ Ei sisalda Ei sisalda 03.11.2016 Vestlus (2)

Pakkumise kirjeldus:

Pakkumine vastavalt kirjeldusele. Materjal 520.-; Töö 840.-: Ei sisalda valgustite paigaldust. Lugupidamisega.

Kasutaja ikoon ID43007
Pakkuja profiil Väike nool paremale
1 500€ Sisaldab KM Sisaldab KM 04.11.2016 Vestlus (0)

Pakkumise kirjeldus:

Hind 1500 sisaldab: Materjal, plommimine, töö, projekt.
Hind 1350 sisaldab: Materjal, plommimine, töö.

Oleme alustav ettevõte, kellel kogemus omandatud järgnevates ettevõtetes:
Rausi OÜ, Rausi Insenerid - projekteerimine
Energiapartner OÜ - projekteerimine, projektijuhtimine, installatsioonitööd
Telegrupp AS - objektijuht, installatsioonità ... Rohkem

Kasutaja ikoon ID19559
Pakkuja profiil Väike nool paremale
1 446€ Ei sisalda Ei sisalda 07.11.2016 Vestlus (0)
Kasutaja ikoon ID36708
Pakkuja profiil Väike nool paremale
1 340€ Sisaldab KM Sisaldab KM 08.11.2016 Vestlus (0)

Pakkumise kirjeldus:

Hinnapakkumine kogu hankes kirjeldatud töödele koos hankes kirjeldatud materjalidega (va pistikud, lülitid ja lambid). Pakkumine ei sisalda tasulisi kooskõlastusi. Valgusteid on võimalik saada läbi meie firma väga soodsalt disain valgusteid - led. Pakkumine sisaldab nõuetekohasuse tunnistust ja teostusjooniseid. Tööd teostab B - pädevusega elektri ... Rohkem

Kasutaja ikoon ID19451
Pakkuja profiil Väike nool paremale
1 300€ Sisaldab KM Sisaldab KM 08.11.2016 Vestlus (2)

Pakkumise kirjeldus:

Pakkumine tehtud kogu soovitud tööle ja materjalile. Plommide eemalduse tellib korteri omanik. Kõik muu hinnas.Edu hankes!

Kasutaja ikoon ID33667
Pakkuja profiil Väike nool paremale
1 240€ Sisaldab KM Sisaldab KM 08.11.2016 Vestlus (6)

Pakkumise kirjeldus:

Pakkumus katab elektritöid ja –materjale hankes kirjeldatud mahus, va voolumõõtja plommide eemaldamine, mille peab tellima korteri valdaja. Vajadusel võimalik teostada lisaks ka nõrkvoolutöid (tv, internet, valve- ja tulekahjusignalisatsioon, videovalve jms). Paigaldisele dokumentatsioon ja garantii.

Küsimused hanke korraldajale

Küsimus: private ID19451   01.11.2016 21:28
Tere! Millised on parkimise võimalused? Mitmes korrus? Lifti olemasolu?

Teavita reeglite rikkumisest

Korraldaja vastus: 01.11.2016 23:54

Tere! Põhimõtteliselt on võimalik maja ette kõnnitee/muru peale auto panna. Seal on maja krunt ja tasuta parkimine. Igal pool mujal on kesklinna ala ja tasuline. 1. korrus ja lifti ei ole.

Teavita reeglite rikkumisest

Küsimus: private ID19451   02.11.2016 11:46
Tere! Veel täpsustav küsimus.Tõenäoliselt on trepikojas veel üks kilp,kust toide tuleb Teie korterisse,kaugel see asub Teie arvestist? Mõistlik oleks ka see liin vahetada uue vastu,sest vana 2 soont,tuleks panna 3 soonega kaabel.Kas põrandate alt saab vedada kõigis ruumides? Kes tarnib ja paigaldab põrandakütte kaabli?

Teavita reeglite rikkumisest

Korraldaja vastus: 02.11.2016 16:14

Tere! Pealüliti on trepikojas ukse kõrval ja asub mõõtjast umbes 2 m eemal. Koridorist korterisse on praegu paigutatud väike kõri, kust ilmselt see peakaabel saab läbi toodud ja siis kuni 1,5 m olemasoleva mõõtjani. Mõõtja ja kilbi võib ka ukse poole nihutada, kui see osutub vajalikuks. Põrandate alt saab kaableid vedada kõigis ruumides (põrandad üles võetud). Vannitoa põrandaküttekaabli tarnib ja paigaldab hiljem vannitoa hanke võitja. Selle paigaldamiseks peab olema valmidus (koht kuhu ühendada).

Teavita reeglite rikkumisest

Küsimus: private ID40985   04.11.2016 07:09
Korter on küll väike, kuid suure toa valgusele on soovitav magamistoa ukse kõrvale paigaldada ka veksellüliti.<br />
Plommide eemaldamise järgselt tuleb esitada Elektrilevile ka nõuetekohasuse deklaratsioon.<br />
Kas korteris on ikka uus pingesüsteem? Nimelt vana süsteemiga ei saa paigaldada rikkevoolukaitstet, kuigi seda on tehtud.

Teavita reeglite rikkumisest

Korraldaja vastus: 04.11.2016 09:30

Tere! See on väärt idee.<br />
Kortermaja on viidud uuele pingesüsteemile (kolmefaasiline), kuid korter on endiselt vana pingesüsteemi peal (ühefaasiline). Hanke raames oleks vajalik teha ettevalmistused üleminekuks uuele pingesüsteemile ning seejärel tellida ka Elektrilevist elektriarvesti vahetus.

Teavita reeglite rikkumisest

Küsimus: private ID31451   04.11.2016 09:51
Tere! Lugedes eelnevat küsimust-vastust,tahaks selgitada,et vana pingesüsteemi all ei olnud ilmselt mõeldud 1- faasilist toidet korterile,vaid pigem seda,et hoones võib olla veel vana 3*220 V süsteem. Arvesti vahetust Te tellima ei pea,Küll aga oleks hea mõte uurida ühistult,kas saaksite 3-e faasilisele pingele üle minna,see puudutaks pigem pliiti/ahju.Oleneb ka sellest mitu amprit Teie peakaitse hetkel on (foto järgi vast max 20A) Kui sellest hetkel piisab,võib ka nii jätta. Kui soovite edaspidi kõigil pliidiraudadel korraga moosi keeta ja samal ajal kalkun ahjus,siis ilmselt jääb 20A väheks.Mingit nõuetekohasuse deklaratsiooni Te ei vaja ja plommide eemalduse tellib üldjuhul korteri omanik,see maksab minuteada 20€+KM

Teavita reeglite rikkumisest

Korraldaja vastus: 06.11.2016 16:39

Tere! Korteri ukse taha kilpi jookseb 230/400 V. Peakaitse 16A.

Teavita reeglite rikkumisest

Lisa küsimus

Lisa küsimus

Minu pakkumine

€

Reeglid

Pakkumise kirjelduse väli on mõeldud pakkumise detailsemaks lahti kirjutamiseks. Pikema teksti mugavaks sisestamiseks klikkige kasti paremal ülaservas oleval ikoonil.
Pakkumist tehes on keelatud postitada enda kontaktandmeid (nimi, telefon, aadress jne). Me jälgime ja analüüsime pakkumisi, et vältida pettuseid ja reeglite rikkumisi.
Rikkumise puhul kasutajakonto blokeeritakse.

 

Teisi töid samas valdkonnas

Valdkonnas "Elektritööd" on 5 aktiivset tööd

Vana talu elektrisüsteemi uuendamine (kilp, pistikud, välivalgustus, EV valmidus)

Asukoht: Raplamaa, Suurekivi
Aega jäänud: 1p 9h
Tehtud pakkumisi: 5

Kaablite vahetus paneelmaja korteris ja siseviimistlus

Asukoht: Harjumaa, Tallinn
Aega jäänud: 6p 9h
Tehtud pakkumisi: 3

Vanemad teated:

Vaata kõiki

Sellel veebilehel kasutatakse küpsiseid. Kasutamist jätkates nõustute küpsiste kasutamisega.

Sulge
 
Minu pakkumine
€

Reeglid

Pakkumise kirjelduse väli on mõeldud pakkumise detailsemaks lahti kirjutamiseks. Pikema teksti mugavaks sisestamiseks klikkige kasti paremal ülaservas oleval ikoonil.
Pakkumist tehes on keelatud postitada enda kontaktandmeid (nimi, telefon, aadress jne). Me jälgime ja analüüsime pakkumisi, et vältida pettuseid ja reeglite rikkumisi.
Rikkumise puhul kasutajakonto blokeeritakse.