+ Lisa oma töö      

Otsid ehitajat "Puitehitised" valdkonnast?

Parima pakkumise ja teostaja leidmiseks lisa oma töö.

Hange on lõppenud!

Võitjaks osutus kasutaja ID 35459

Korraldaja hinnang tehtud tööle

5.0
10.12.2016
Töökiirus: 12345
Kvaliteet: 12345
Hind: 12345

Töö kiire ja korralik. Soovitan! - Mikk L.

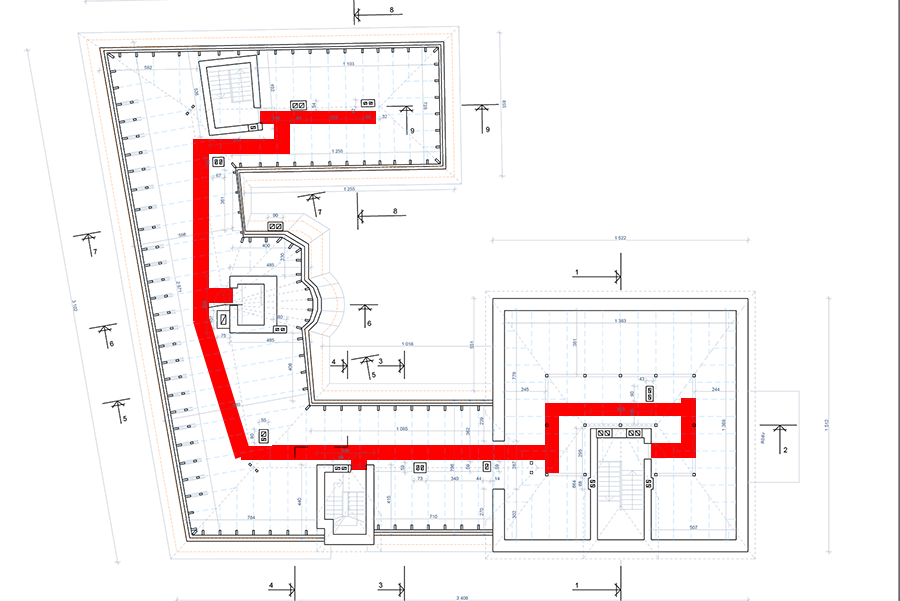
Käiguteede rajamine pööningule

ID 38282

8257 vaatamist

Prindi

  • check Pakkumiste tegemine
    kuni 23.11.2016
  • check Võitja valik kuni
    30.11.2016
  • 3 Töö teostamine
    ja hinnang
Hanke lõpp: K, 23. november, 2016
Maakond: Tartumaa
Linn: Tartu
Tööde algus: E, 21. november, 2016 (Soovituslik)
Tööde lõpp: R, 23. detsember, 2016
Ehitusmaterjalid: Töö tegija poolt

Töö sisu

Tartu kesklinnas asuva kortermaja pööningule oleks vaja rajada orienteeruvalt 70 meetrit käiguteid.

Käiguteede kogupikkus on ca 70 meetrit ja see peab olema vähemalt 50 cm laiune

Käiguteede kõrgus põrandast 350mm

Materjaliks vähemalt 22 mm paksune laudis või vähemalt 18 mm paksune OBS3 plaat, mis
toetub mõlemast küljest 50x100 prussidele kõige enam 1-meetriste vahedega.

Prussid põranda külge kinnitatud kahelt poolt nurgikutega 60x60x2

Tööd tuleks teostada enne 24. detsembrit 2016

Pildid, video ja failid

Hanke korraldaja: korteriühistu ID43612

Pakkumised

Pakkumisi kokku: 20

Ettevõte Summa Käibemaks Lisatud Vestlus
Kasutaja ikoon ID40475
Pakkuja profiil Väike nool paremale
2 450€ Sisaldab KM Sisaldab KM 16.11.2016 Vestlus (1)
Kasutaja ikoon ID41269
Pakkuja profiil Väike nool paremale
1 480€ Ei sisalda Ei sisalda 16.11.2016 Vestlus (2)

Pakkumise kirjeldus:

Tere, kasutame pakkumises etteantud materjale. Eeldame, et tööde tegemisel on katusealune käigutee kohalt puhas ja ei sega meie tegemisi. Muud tööd lisanduvad (villa eemaldamine, prahi koristus ja utiliseerimine jne). Tasumine arvealusel maksetähtaeg 3 päeva, garantii 24 kuud.

Kasutaja ikoon ID42351
Pakkuja profiil Väike nool paremale
1 500€ Ei sisalda Ei sisalda 16.11.2016 Vestlus (1)

Pakkumise kirjeldus:

Pakkumine sisaldab tööd ja materjali. Töö kiire ja korralik!
Lugupidamisega Riho Puusepp.

Kasutaja ikoon ID38539
Pakkuja profiil Väike nool paremale
1 555€ Ei sisalda Ei sisalda 16.11.2016 Vestlus (2)
Kasutaja ikoon ID40900
Pakkuja profiil Väike nool paremale
2 200€ Ei sisalda Ei sisalda 17.11.2016 Vestlus (0)

Pakkumise kirjeldus:

tere.
teen teile pakkumise eelnimetatud tööle koos materjalidega

materjalide maksumus kuskil 750 eur . hiljem arvealusel edastame teile.
käigutee ehitamine koos vajalike villatöödega 1450 eur .

töid võimalus alustada koheselt.
olemas töödeks kõik vajalikud tööriistad.
töid teostame 2 kesi.
tasumine kokkuleppel peale tööde lõppu.
V ... Rohkem

Kasutaja ikoon ID43608
Pakkuja profiil Väike nool paremale
1 790€ Sisaldab KM Sisaldab KM 18.11.2016 Vestlus (0)
Kasutaja ikoon ID17833
Pakkuja profiil Väike nool paremale
1 632€ Sisaldab KM Sisaldab KM 18.11.2016 Vestlus (0)

Pakkumise kirjeldus:

Töö ja materjal vastavalt hankes kirjeldatule, teostatud töödele garantii 2 aastat.

Kasutaja ikoon ID38809
Pakkuja profiil Väike nool paremale
2 050,1€ Ikoon kell Sisaldab KM Sisaldab KM 18.11.2016 Vestlus (0)

Pakkumise kirjeldus:

Hinnapakkumine sisaldab vajaminevat puitu, kinnitusvahendeid ja tööraha.

Kasutaja ikoon ID43316
Pakkuja profiil Väike nool paremale
1 623€ Sisaldab KM Sisaldab KM 19.11.2016 Vestlus (0)

Pakkumise kirjeldus:

Tere

Pakkumine sisaldab materjale puit 539,5€ kinnitusvahendid 243.5€ ja tööraha 840€ ja transporti.
Töökäik oleks siis soojustuse eemaldamine, käigutee ehitus ja soojustuse uuesti paigaldamine.

Lugupidamisega.

Kasutaja ikoon ID43025
Pakkuja profiil Väike nool paremale
1 600€ Ei sisalda Ei sisalda 19.11.2016 Vestlus (0)

Pakkumise kirjeldus:

Tere.Teostasime oktoobris harjumaal analoogse töö,vajadusel pildid,alla selle hinna ei ole võimalik antud tööd teostada ,kui kõik asjad ametlikud.kuna värske kogemus olemas.
Lugupidamisega Lauri

Kasutaja ikoon ID35459
Pakkuja profiil Väike nool paremale
1 560€ Ei sisalda Ei sisalda 19.11.2016 Vestlus (0)

Pakkumise kirjeldus:

Tere, pakkumine sisaldab villa eemaldamine käigutee alt, käigutee ehitus, villa tagasi paigaldamine. Pakkumises on meil valitud käigutee pealmiseks materjaliks 18mm Osb, kuna see jääb soliidsem ja seda on kergem hooldada. Hind on lõplik, muid kulusid ei tule, v.a. kui ei tule ette üllatusi. Käibemaksu ei ole märgitud, kuna puudub käibemaksu kohustu ... Rohkem

Kasutaja ikoon ID43596
Pakkuja profiil Väike nool paremale
2 850€ Ei sisalda Ei sisalda 21.11.2016 Vestlus (0)
Kasutaja ikoon ID42954
Pakkuja profiil Väike nool paremale
900€ Ei sisalda Ei sisalda 21.11.2016 Vestlus (0)

Pakkumise kirjeldus:

Käibemaksu ei lisandu. Ettemaks materjali ostu jagu. Immutamata saematerjal 50*100 ja 22*150. Nurgad 70*70*55*2,5.

Kasutaja ikoon ID43549
Pakkuja profiil Väike nool paremale
1 380€ Sisaldab KM Sisaldab KM 22.11.2016 Vestlus (0)

Pakkumise kirjeldus:

Tere!

Pakkumine sisaldab kõikki hankes nimetatud töid ja tööle saab asuda esimesel võimalusel.

Tervitades!

Kasutaja ikoon ID2213
Pakkuja profiil Väike nool paremale
1 800€ Ei sisalda Ei sisalda 22.11.2016 Vestlus (0)
Kasutaja ikoon ID40511
Pakkuja profiil Väike nool paremale
1 450€ Ei sisalda Ei sisalda 22.11.2016 Vestlus (0)

Pakkumise kirjeldus:

Tere,

Pakkumine vastavalt kirjeldusele, teostus kiire ja kvaliteetne.

Tervitusi,

Henri

Kasutaja ikoon ID38844
Pakkuja profiil Väike nool paremale
1 560€ Ei sisalda Ei sisalda 22.11.2016 Vestlus (0)

Pakkumise kirjeldus:

Tervist. Hind sisaldab teie poolt kirjeldatud töid sh. villa eemaldamist ja tagasi panemist. Lõpliku materjalivaliku teeme, kui oleme tutvunud reaalse olukorraga. Oleme spetsialiseerunud puitkarkasside, aedade jms. puidutöödele. Galeriis siin lehel on mitmeid pilte meie tegemistest. Tehtud töödele arve ja garantii. KM ei lisandu. Tervitustega, Gunnar.

Kasutaja ikoon ID36708
Pakkuja profiil Väike nool paremale
1 500€ Sisaldab KM Sisaldab KM 22.11.2016 Vestlus (0)

Pakkumise kirjeldus:

Hinnapakkumine võtmed kätte lahendusele. Pakkumine sisaldab 50 x 100 prussidest kandepostid. OSB ( 18mm ) või 22mm paksusega laudisega tasapind ehk käigutee. Prussid kinnitatakse nurgikuga altpoolt ja pealtpoolt kruviliitega. Hanke pakkumises nii materjal kui ka ehitus.

Kasutaja ikoon ID22780
Pakkuja profiil Väike nool paremale
1 500€ Ei sisalda Ei sisalda 22.11.2016 Vestlus (0)

Pakkumise kirjeldus:

Hind sisaldab teie poolt soovitud tööd ja materjale

Kasutaja ikoon ID40788
Pakkuja profiil Väike nool paremale
1 350€ Ei sisalda Ei sisalda 22.11.2016 Vestlus (0)

Küsimused hanke korraldajale

Küsimus: private ID37528   16.11.2016 06:49
Kas soojustuseks tuleb puistevill?<br />
Mitme kordne maja on?<br />
<br />

Teavita reeglite rikkumisest

Korraldaja vastus: 16.11.2016 10:11

Soojustus on pööningul juba olemas (mineraalvilla plaadid). Käiguteid oleks vaja selleks, et soojustust pööningul käimine rohkem ei kahjustaks. Tegemist on 3-kordse majaga.

Teavita reeglite rikkumisest

Küsimus: private ID40900   16.11.2016 09:50
Tere.<br />
Kui palju on pööningu ning katuse vaheline kõrgus ? <br />
Parimatega

Teavita reeglite rikkumisest

Korraldaja vastus: 16.11.2016 10:15

Tere<br />
<br />
Üle 5 meetri. Igatahes piisav, et sirge seljaga toimetada.<br />
<br />
Parimat

Teavita reeglite rikkumisest

Küsimus: private ID40900   16.11.2016 09:51
Vabandan<br />
Pööningupõranda

Teavita reeglite rikkumisest

Korraldaja vastus:
Hanke korraldaja ei ole küsimusele veel vastanud

Küsimus: private ID40900   16.11.2016 17:39
tere.<br />
kui põranda vill pandud siis kõigepealt vaja se sealt eemaldada et kinnitada nurki põrandakülge ja hiljem villa vaja lõigata prussikohad sisse.<br />
kas selle etapiga peab ka olema arvestatud või teeb selle keegi teine ? <br />
hankes pole sellest jutu, kuid vältimaks üllatusi siis oleks hea teada kuidas see planeeritakse.<br />
Tänan.

Teavita reeglite rikkumisest

Korraldaja vastus: 17.11.2016 10:31

Tere<br />
<br />
Tänan väga õigustatud täpsustava küsimuse eest!<br />
<br />
Jah, selle etapiga peaks ka olema arvestatud. Palun võtke oma hinnapakkumist tehes seda arvesse.<br />
<br />
Parimat<br />

Teavita reeglite rikkumisest

Küsimus: private ID43317   16.11.2016 22:22
Mis põrand villaplaatide all on? Puidust või millegist muust? Ja kas tuleb arvestada ka võimalike elektrikaablitega 3-nda korruse laes?

Teavita reeglite rikkumisest

Korraldaja vastus: 17.11.2016 10:32

Villaplaatide all on puitpõrand. Elektrikaablitega arvestama ei pea kuna põrand on piisavalt paks.

Teavita reeglite rikkumisest

Lisa küsimus

Lisa küsimus

Minu pakkumine

Reeglid

Pakkumise kirjelduse väli on mõeldud pakkumise detailsemaks lahti kirjutamiseks. Pikema teksti mugavaks sisestamiseks klikkige kasti paremal ülaservas oleval ikoonil.
Pakkumist tehes on keelatud postitada enda kontaktandmeid (nimi, telefon, aadress jne). Me jälgime ja analüüsime pakkumisi, et vältida pettuseid ja reeglite rikkumisi.
Rikkumise puhul kasutajakonto blokeeritakse.

 

Teisi töid samas valdkonnas

Valdkonnas "Puitehitised" on 2 aktiivset tööd

no-img Pilt puudub

Aiapaviljon Betty paigaldus

Asukoht: Jõgevamaa, Vadi
Aega jäänud: 1p 14h
Tehtud pakkumisi: 2

Rõdupiirde parandus

Asukoht: Tartumaa
Aega jäänud: 7p 14h
Tehtud pakkumisi: 0

Vanemad teated:

Vaata kõiki

Sellel veebilehel kasutatakse küpsiseid. Kasutamist jätkates nõustute küpsiste kasutamisega.

Sulge
 
Minu pakkumine

Reeglid

Pakkumise kirjelduse väli on mõeldud pakkumise detailsemaks lahti kirjutamiseks. Pikema teksti mugavaks sisestamiseks klikkige kasti paremal ülaservas oleval ikoonil.
Pakkumist tehes on keelatud postitada enda kontaktandmeid (nimi, telefon, aadress jne). Me jälgime ja analüüsime pakkumisi, et vältida pettuseid ja reeglite rikkumisi.
Rikkumise puhul kasutajakonto blokeeritakse.