+ Lisa oma töö      

Otsid ehitajat "Korterite remont" valdkonnast?

Parima pakkumise ja teostaja leidmiseks lisa oma töö.

Korteri remont

ID 38403

4246 vaatamist

Prindi

  • check Pakkumiste tegemine
    kuni 19.12.2016
  • check Võitja valik kuni
    26.12.2016
  • 3 Töö teostamine
    ja hinnang
Hanke lõpp: E, 19. detsember, 2016
Maakond: Harjumaa
Muu asula: Kristiine
Tööde algus: E, 02. jaanuar, 2017 (Soovituslik)
Tööde lõpp: E, 06. veebruar, 2017 (Soovituslik)
Ehitusmaterjalid: Töö tegija poolt

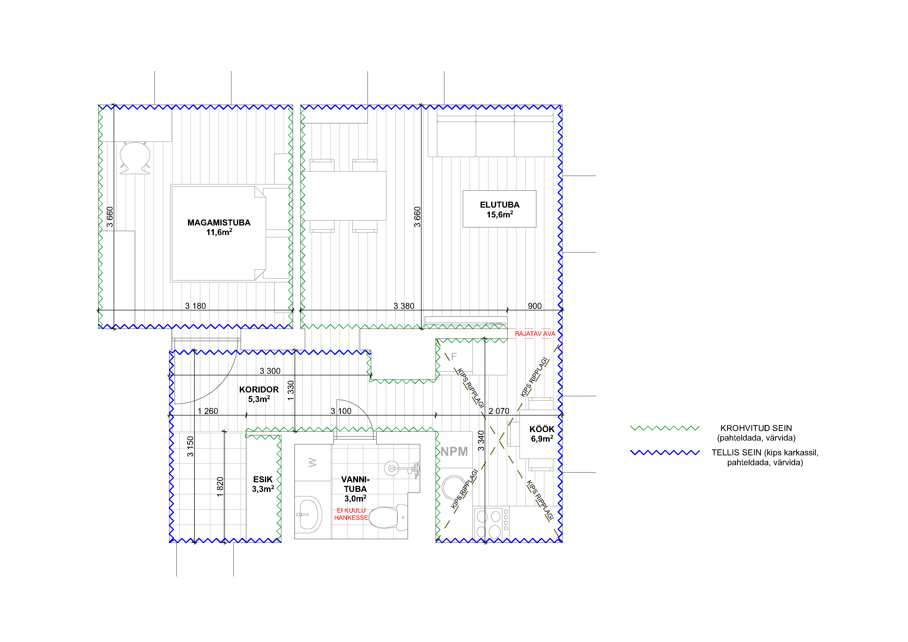
Töö sisu

Objekti kirjeldus:

2-toaline korter Tallinnas, Kristiines. 1. korrus stalini-aegses majas. Lammutustööd 99% ulatuses tehtud. Lae kõrgus 3m.

Töö üldine kirjeldus:

Korteri kapitaalremont välja arvatud vannituba. Rajada uued põrandad, tellisseinad katta kipsplaadiga ja viimistleda, krohvitud seinad tasandada ja viimistleda. Ehitada uus elektri- ja nõrkvoolupaigaldis. Võtta sisse olemasolevasse seina ava mõõduga 1x2,8m (ava sillus on olemas). Vahetada välja 3 radiaatorit.

Tööde täpne kirjeldus ja mahud:

Tehtav töö kogus

Uue põranda rajamine betoonist vahelaele

(150x50mm immutatud prussid, kinnitatud

teras nurgikutega 120mm, vahel keramsiitkruus/

puiste vill 100mm, viimistlus põrandalaud –

mänd, lihvitud, õlitatud) 41,7m2


Tellistest laotud seinte viimistlemine

(kipsplaat teraskarkassil – 20mm kübarprofiil,

Tasandada, värvida) 68,5m2


Krohvitud seinte viimistlemine

(tasandada, värvida) 72,6m2


Soomepapist ripplae taastamine

(tasandada, värvida) 35,8m2


Kipsplaadist ripplae rajamine

(tasandada, värvida) 6,9m2


Elektri ja nõrkvoolupaigaldise rajamine

Alates korteri kilbist (kaabeldus, lülitid, pistikud) 1tk


Radiaatorite vahetus 3tk


Ava rajamine olemasolevasse seina

(sillus olemasolev) 2,8m2

Pildid, video ja failid

Hanke korraldaja: eraisik ID43439

Pakkumised

Pakkumisi kokku: 15

Ettevõte Summa Käibemaks Lisatud Vestlus
Kasutaja ikoon ID41977
Pakkuja profiil Väike nool paremale
10 000€ Ei sisalda Ei sisalda 06.12.2016 Vestlus (0)

Pakkumise kirjeldus:

Tehtud töödele GARANTII 2 Aastat!

Kasutaja ikoon ID43647
Pakkuja profiil Väike nool paremale
9 500€ Ei sisalda Ei sisalda 06.12.2016 Vestlus (0)
Kasutaja ikoon ID42319
Pakkuja profiil Väike nool paremale
11 499€ Sisaldab KM Sisaldab KM 08.12.2016 Vestlus (2)

Pakkumise kirjeldus:

Töövõtuleping. Arve. Garantii 2 aastat. Kogemused ja kvalitee garanteeritud.
Detailsema pakkumuse soovi korral võtke palun meiega ühendust.
Heade soovidega

Kasutaja ikoon ID43625
Pakkuja profiil Väike nool paremale
12 300€ Ei sisalda Ei sisalda 10.12.2016 Vestlus (0)
Kasutaja ikoon ID43509
Pakkuja profiil Väike nool paremale
13 500€ Ei sisalda Ei sisalda 10.12.2016 Vestlus (0)

Pakkumise kirjeldus:

Tere

Pakkumine sisaldab kõiki eeltoodud töid koos el-projektiga ning materjale.
Hinnakõikumine on tingitud ettenägematudest töödest.
Ettemaks toimub materjalide osas.
Leping, ning maksed toimuvad ettevõtte arvele arvete alusel.
Kogemusi korterite renoveerimisel juba 10aastat, võimalik tutvuda eelnevate töödega!
Kogenud spetsialistide profes ... Rohkem

Kasutaja ikoon ID5859
Pakkuja profiil Väike nool paremale
11 250€ Ei sisalda Ei sisalda 11.12.2016 Vestlus (0)

Pakkumise kirjeldus:

Hind tehtud vastavalt hanke kirjeldusele ja sisaldab kõiki töödeks vajaminevaid vahendeid ja materjale välja arvatud radiaatorid kuna ei ole teada milliseid soovitakse. Lõplik hind selgub peale objektiga tutvumist. Omame väga laialdast kogemust antud valdkonnas ja tellijal on võimalik reaalselt vaatama tulla meie teostatud töid, et saada aimu meie tà ... Rohkem

Kasutaja ikoon ID43792
Pakkuja profiil Väike nool paremale
10 730€ Ikoon kell Ei sisalda Ei sisalda 15.12.2016 Vestlus (0)

Pakkumise kirjeldus:

Täpsem hinnapakkumine tuleb objektiga tutvumise järel.
Garantii töödele 2 aastat.

Kasutaja ikoon ID42866
Pakkuja profiil Väike nool paremale
9 000€ Ei sisalda Ei sisalda 14.12.2016 Vestlus (0)

Pakkumise kirjeldus:

Garantii 3 aastat. Töö võtab 3-4 nadalat. Lepping.

Kasutaja ikoon ID2175
Pakkuja profiil Väike nool paremale
8 600€ Ei sisalda Ei sisalda 15.12.2016 Vestlus (0)

Pakkumise kirjeldus:

Tere.Tööd ja materjalid vastavalt hanke kirjeldusele.Töö leoingu alusel garantiiga 3 aastat.
Töödega saaksime alustada peale joule.Lugupidamisega Raimond

Kasutaja ikoon ID43740
Pakkuja profiil Väike nool paremale
10 000€ Sisaldab KM Sisaldab KM 16.12.2016 Vestlus (0)
Kasutaja ikoon ID43811
Pakkuja profiil Väike nool paremale
9 440€ Ei sisalda Ei sisalda 17.12.2016 Vestlus (0)

Pakkumise kirjeldus:

garantii 2 aastat, tööde aeg 3 nädalat

Kasutaja ikoon ID23896
Pakkuja profiil Väike nool paremale
10 900€ Sisaldab KM Sisaldab KM 19.12.2016 Vestlus (0)

Pakkumise kirjeldus:

Töövõtuleping, töödele garantii

Kasutaja ikoon ID43818
Pakkuja profiil Väike nool paremale
10 350€ Ei sisalda Ei sisalda 19.12.2016 Vestlus (0)
Kasutaja ikoon ID35379
Pakkuja profiil Väike nool paremale
8 173€ Ei sisalda Ei sisalda 19.12.2016 Vestlus (0)

Pakkumise kirjeldus:

Tööde garantii kehtib kaks aastat.

Loodame, et meie hinnapakkumine sobib Teile ja viib edaspidisele koostööle.

Kasutaja ikoon ID31957
Pakkuja profiil Väike nool paremale
10 000€ Ei sisalda Ei sisalda 19.12.2016 Vestlus (0)

Pakkumise kirjeldus:

Tere,
Pakkumine vastavalt hanke kirjeldusele ning mahtudele. Lugupidamisega.

Küsimused hanke korraldajale

Küsimus: private ID32153   15.12.2016 17:33
Palju neid pistikupesi ja lüliteid kokku on ning kas signalisatsiooni jaoks tuleb arvestada nii sõrmistik(ud), kui ka kõik vajaminevad andurid samuti hinna sisse? Samuti sooviksin teada, kas põrandal kergkruusa asemel ei võiks samuti puistevilla kasutada?

Teavita reeglite rikkumisest

Korraldaja vastus: 16.12.2016 19:19

Lüliteid kokku 5, pistikupesi kokku umbes 20. Signalisatsiooni ei ole vaja pakkuda, nõrkvoolu all pidasin silmas internetiühenduse valmidust magamis- ja elutoas. Põrandal võib ka puistevilla kasutada.

Teavita reeglite rikkumisest

Lisa küsimus

Lisa küsimus

Minu pakkumine

€

Reeglid

Pakkumise kirjelduse väli on mõeldud pakkumise detailsemaks lahti kirjutamiseks. Pikema teksti mugavaks sisestamiseks klikkige kasti paremal ülaservas oleval ikoonil.
Pakkumist tehes on keelatud postitada enda kontaktandmeid (nimi, telefon, aadress jne). Me jälgime ja analüüsime pakkumisi, et vältida pettuseid ja reeglite rikkumisi.
Rikkumise puhul kasutajakonto blokeeritakse.

 

Teisi töid samas valdkonnas

Valdkonnas "Korterite remont" on 2 aktiivset tööd

Vannitoa lampide paigaldus + erinevad pisiparandused korteris

Asukoht: Harjumaa, Tallinn
Aega jäänud: 1p 4h
Tehtud pakkumisi: 3

Korteri kapitaalremont ja ümberehitus (täielik siseviimistlus + elektritööd)

Asukoht: Järvamaa
Aega jäänud: 12p 4h
Tehtud pakkumisi: 0

Vanemad teated:

Vaata kõiki

Sellel veebilehel kasutatakse küpsiseid. Kasutamist jätkates nõustute küpsiste kasutamisega.

Sulge
 
Minu pakkumine
€

Reeglid

Pakkumise kirjelduse väli on mõeldud pakkumise detailsemaks lahti kirjutamiseks. Pikema teksti mugavaks sisestamiseks klikkige kasti paremal ülaservas oleval ikoonil.
Pakkumist tehes on keelatud postitada enda kontaktandmeid (nimi, telefon, aadress jne). Me jälgime ja analüüsime pakkumisi, et vältida pettuseid ja reeglite rikkumisi.
Rikkumise puhul kasutajakonto blokeeritakse.