+ Lisa oma töö      

Otsid ehitajat "Betoonitööd" valdkonnast?

Parima pakkumise ja teostaja leidmiseks lisa oma töö.

Betoonpõranda valamine eramajas

ID 38432

3330 vaatamist

Prindi

  • check Pakkumiste tegemine
    kuni 12.12.2016
  • check Võitja valik kuni
    19.12.2016
  • 3 Töö teostamine
    ja hinnang
Hanke lõpp: E, 12. detsember, 2016
Maakond: Harjumaa
Linn: Saue
Tööde algus: E, 16. jaanuar, 2017 (Soovituslik)
Tööde lõpp: T, 31. jaanuar, 2017 (Soovituslik)
Ehitusmaterjalid: Töö tegija poolt

Töö sisu

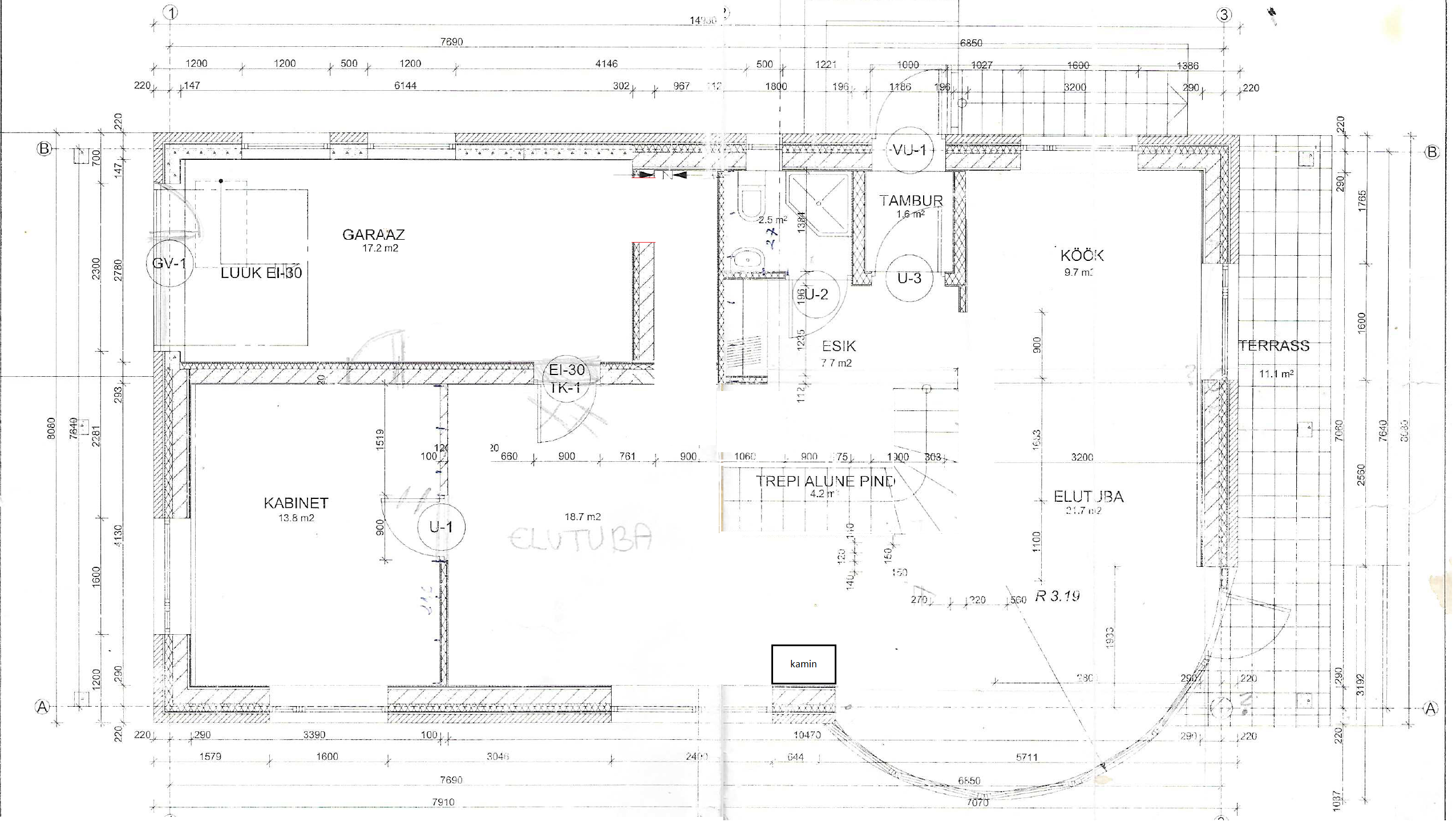
Hanke sisuks on kivist eramajas betoonpõranda valamine esimesel korrusel. (korruseplaan lisatud failina).
Töö maht: 90m2 põrandapind, kus paigaldatud vesipõrandakütte torustik ja armeering, katta 70mm kihi betooniga.
Vajalik ka põranda tasandamine + silumine

Töö teostamise aeg oleks tõenäoliselt jaanuari keskpaik, selleks ajaks saab põrandakütte torustik paigaldatud.

Pildid, video ja failid

Hanke korraldaja: eraisik ID42560

Pakkumised

Pakkumisi kokku: 1

Ettevõte Summa Käibemaks Lisatud Vestlus
Kasutaja ikoon ID40816
Pakkuja profiil Väike nool paremale
1 430€ Ei sisalda Ei sisalda 10.12.2016 Vestlus (4)

Pakkumise kirjeldus:

Tere! Hinnapakkumine eelnimetatud tööle.

Küsimused hanke korraldajale

Hanke korraldajale ei ole veel küsimusi esitatud.

Lisa küsimus

Lisa küsimus

Minu pakkumine

Reeglid

Pakkumise kirjelduse väli on mõeldud pakkumise detailsemaks lahti kirjutamiseks. Pikema teksti mugavaks sisestamiseks klikkige kasti paremal ülaservas oleval ikoonil.
Pakkumist tehes on keelatud postitada enda kontaktandmeid (nimi, telefon, aadress jne). Me jälgime ja analüüsime pakkumisi, et vältida pettuseid ja reeglite rikkumisi.
Rikkumise puhul kasutajakonto blokeeritakse.

 

Teisi töid samas valdkonnas

Valdkonnas "Betoonitööd" on 6 aktiivset tööd

Betoonist platsi valamine väljas.

Asukoht: Harjumaa, Luige
Aega jäänud: 9h 51 min
Tehtud pakkumisi: 4

Betoonpõranda valu

Asukoht: Harjumaa, Jõelähtme
Aega jäänud: 2p 9h
Tehtud pakkumisi: 3

Vanemad teated:

Vaata kõiki

Sellel veebilehel kasutatakse küpsiseid. Kasutamist jätkates nõustute küpsiste kasutamisega.

Sulge
 
Minu pakkumine

Reeglid

Pakkumise kirjelduse väli on mõeldud pakkumise detailsemaks lahti kirjutamiseks. Pikema teksti mugavaks sisestamiseks klikkige kasti paremal ülaservas oleval ikoonil.
Pakkumist tehes on keelatud postitada enda kontaktandmeid (nimi, telefon, aadress jne). Me jälgime ja analüüsime pakkumisi, et vältida pettuseid ja reeglite rikkumisi.
Rikkumise puhul kasutajakonto blokeeritakse.