+ Lisa oma töö      

Otsid ehitajat "Betoonitööd" valdkonnast?

Parima pakkumise ja teostaja leidmiseks lisa oma töö.

Betoonpõranda ehitus eramajas

ID 38443

3651 vaatamist

Prindi

  • check Pakkumiste tegemine
    kuni 19.12.2016
  • check Võitja valik kuni
    26.12.2016
  • 3 Töö teostamine
    ja hinnang
Hanke lõpp: E, 19. detsember, 2016
Maakond: Harjumaa
Linn: Saue
Tööde algus: E, 19. detsember, 2016 (Soovituslik)
Tööde lõpp: T, 31. jaanuar, 2017 (Soovituslik)
Ehitusmaterjalid: Töö tegija poolt

Töö sisu

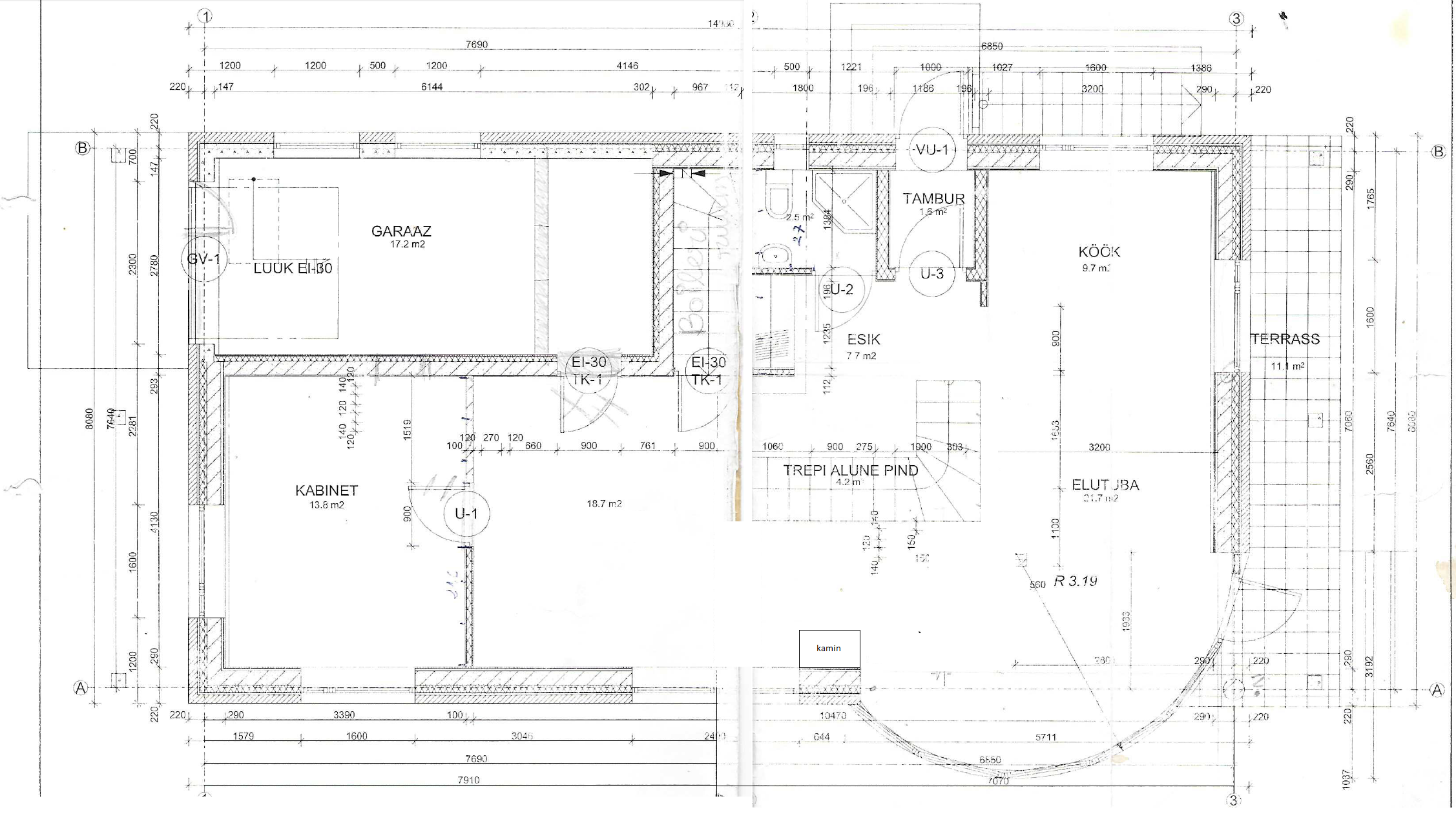
Hanke sisuks on kivist eramajas betoonpõranda ehitus esimesel korrusel. (korruseplaan lisatud failina).
Töö maht:
- 90m2 põrandapind
- soojustuse, penoplast, paigaldus - 50+25mm
- armeeringu paigaldus 6mm
- betoneerimistööd
- põranda tasandamine + silumine

Töö teostamise aeg:
1) esimeses sammus paigaldada soojustus + armeering: ajavahemik: 19.dets - 6.jaanuar
2) toimuvad põrandakütte torustiku paigaldustööd (ca 1 nädal)
3) betoneerimistööd - alates. 16. jaanuar



Pildid, video ja failid

Hanke korraldaja: eraisik ID42560

Pakkumised

Pakkumisi kokku: 7

Ettevõte Summa Käibemaks Lisatud Vestlus
Kasutaja ikoon ID43314
Pakkuja profiil Väike nool paremale
6 250€ Sisaldab KM Sisaldab KM 12.12.2016 Vestlus (0)

Pakkumise kirjeldus:

Põrandakütte võime ka paigaldada. 1 päev

Kasutaja ikoon ID38464
Pakkuja profiil Väike nool paremale
3 400€ Ei sisalda Ei sisalda 12.12.2016 Vestlus (4)

Pakkumise kirjeldus:

Ei lisandu käibemaksu!

Kasutaja ikoon ID36202
Pakkuja profiil Väike nool paremale
3 600€ Ei sisalda Ei sisalda 18.12.2016 Vestlus (3)

Pakkumise kirjeldus:

Tere.Hind sisaldab soojustuse paigaldust(50+25mm) armeeringut ning betoneerimist ja silumist.

Kasutaja ikoon ID37908
Pakkuja profiil Väike nool paremale
3 465€ Ei sisalda Ei sisalda 18.12.2016 Vestlus (4)

Pakkumise kirjeldus:

Tere. Hinnapakkumine sisaldab 50+25mm polütüreenplaadi paigaldamist kahes kihis, ehituskile 0,15mm paigaldamist, hoone jäikade kandekonstruktsioonide vertikaalpindade eristamist põrandaplaadist 1 kordse 8 mm polüstüreenist eraldusribaga , armtuurvõrgu 6/150/150 paigaldamist kanduritele ühes kihis, betoneerimist betooniga C25/30 XC1 v/ts 055 paksusega ... Rohkem

Kasutaja ikoon ID8633
Pakkuja profiil Väike nool paremale
3 850€ Ei sisalda Ei sisalda 18.12.2016 Vestlus (0)
Kasutaja ikoon ID41495
Pakkuja profiil Väike nool paremale
3 250€ Ei sisalda Ei sisalda 19.12.2016 Vestlus (4)
Kasutaja ikoon ID38387
Pakkuja profiil Väike nool paremale
3 720€ Sisaldab KM Sisaldab KM 19.12.2016 Vestlus (0)

Pakkumise kirjeldus:

Tere!
Sisaldab EPS 80 panekut, armatuurvõrk, servalindid, "konnad", põrandate valamine 80mm, kopteramist. Betoneerijad teevad iga päev põrandate valamistöid. Ehitusnorm on 3mm kõikumist 2 m peale.
Garantii.

Küsimused hanke korraldajale

Küsimus: private ID36202   18.12.2016 12:06
Tere.Kui lammutustööde käigus soojustus oluliselt kannatada ei saa siis võib arvestada 400-500€ summast maha.Vannituba ei ole probleem ,kui on vaja paigaldada trapp ,siis paigaldame ja valame kalded.Selle maksumuse saame kokku panna siis kui oleme olukorraga objektil tutvunud.Tööde teostamise saame vastavalt teie soovile paika panna.

Teavita reeglite rikkumisest

Korraldaja vastus:
Hanke korraldaja ei ole küsimusele veel vastanud

Lisa küsimus

Lisa küsimus

Minu pakkumine

Reeglid

Pakkumise kirjelduse väli on mõeldud pakkumise detailsemaks lahti kirjutamiseks. Pikema teksti mugavaks sisestamiseks klikkige kasti paremal ülaservas oleval ikoonil.
Pakkumist tehes on keelatud postitada enda kontaktandmeid (nimi, telefon, aadress jne). Me jälgime ja analüüsime pakkumisi, et vältida pettuseid ja reeglite rikkumisi.
Rikkumise puhul kasutajakonto blokeeritakse.

 

Teisi töid samas valdkonnas

Valdkonnas "Betoonitööd" on 6 aktiivset tööd

Betoonist platsi valamine väljas.

Asukoht: Harjumaa, Luige
Aega jäänud: 9h 50 min
Tehtud pakkumisi: 4

Betoonpõranda valu

Asukoht: Harjumaa, Jõelähtme
Aega jäänud: 2p 9h
Tehtud pakkumisi: 3

Vanemad teated:

Vaata kõiki

Sellel veebilehel kasutatakse küpsiseid. Kasutamist jätkates nõustute küpsiste kasutamisega.

Sulge
 
Minu pakkumine

Reeglid

Pakkumise kirjelduse väli on mõeldud pakkumise detailsemaks lahti kirjutamiseks. Pikema teksti mugavaks sisestamiseks klikkige kasti paremal ülaservas oleval ikoonil.
Pakkumist tehes on keelatud postitada enda kontaktandmeid (nimi, telefon, aadress jne). Me jälgime ja analüüsime pakkumisi, et vältida pettuseid ja reeglite rikkumisi.
Rikkumise puhul kasutajakonto blokeeritakse.