+ Lisa oma töö      

Otsid ehitajat "Betoonitööd" valdkonnast?

Parima pakkumise ja teostaja leidmiseks lisa oma töö.

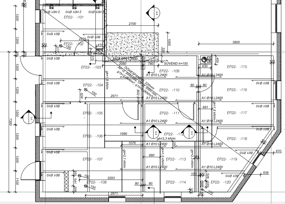
Õõnespaneelide paigaldus

ID 38494

6964 vaatamist

Prindi

  • check Pakkumiste tegemine
    kuni 24.12.2016
  • check Võitja valik kuni
    31.12.2016
  • 3 Töö teostamine
    ja hinnang
Hanke lõpp: L, 24. detsember, 2016
Maakond: Harjumaa
Muu asula: Viimsi
Tööde algus: E, 16. jaanuar, 2017 (Soovituslik)
Tööde lõpp: L, 21. jaanuar, 2017 (Soovituslik)
Ehitusmaterjalid: Töö tellija poolt

Töö sisu

Hanke sisu:

*Laepaneelide paigaldus
*Paneelide monolitiseerimine ja lae osa betoneerimine(joonis lisatud)

Pildid, video ja failid

Hanke korraldaja: ettevõte ID23416

Pakkumised

Pakkumisi kokku: 1

Ettevõte Summa Käibemaks Lisatud Vestlus
Kasutaja ikoon ID43818
Pakkuja profiil Väike nool paremale
1 600€ Ei sisalda Ei sisalda 21.12.2016 Vestlus (0)

Pakkumise kirjeldus:

see ainult paneelide paigaldusele ja armeerimisele ja monolitiseerimisele tehtud hind. monoliitset osa mis mulle tunduba et tuleb eraldi raketisega ja armeeringuga lahendada hind ei sisalda

Küsimused hanke korraldajale

Hanke korraldajale ei ole veel küsimusi esitatud.

Lisa küsimus

Lisa küsimus

Minu pakkumine

Reeglid

Pakkumise kirjelduse väli on mõeldud pakkumise detailsemaks lahti kirjutamiseks. Pikema teksti mugavaks sisestamiseks klikkige kasti paremal ülaservas oleval ikoonil.
Pakkumist tehes on keelatud postitada enda kontaktandmeid (nimi, telefon, aadress jne). Me jälgime ja analüüsime pakkumisi, et vältida pettuseid ja reeglite rikkumisi.
Rikkumise puhul kasutajakonto blokeeritakse.

 

Teisi töid samas valdkonnas

Valdkonnas "Betoonitööd" on 2 aktiivset tööd

Kasvuhoone vundamnet

Asukoht: Tartumaa, Tartu
Aega jäänud: 3h 12 min
Tehtud pakkumisi: 1

no-img Pilt puudub

Betoonplats aeda

Asukoht: Harjumaa, Tallinn
Aega jäänud: 1p 3h
Tehtud pakkumisi: 0

Vanemad teated:

Vaata kõiki

Sellel veebilehel kasutatakse küpsiseid. Kasutamist jätkates nõustute küpsiste kasutamisega.

Sulge
 
Minu pakkumine

Reeglid

Pakkumise kirjelduse väli on mõeldud pakkumise detailsemaks lahti kirjutamiseks. Pikema teksti mugavaks sisestamiseks klikkige kasti paremal ülaservas oleval ikoonil.
Pakkumist tehes on keelatud postitada enda kontaktandmeid (nimi, telefon, aadress jne). Me jälgime ja analüüsime pakkumisi, et vältida pettuseid ja reeglite rikkumisi.
Rikkumise puhul kasutajakonto blokeeritakse.