+ Lisa oma töö      

Otsid ehitajat "Siseviimistlustööd" valdkonnast?

Parima pakkumise ja teostaja leidmiseks lisa oma töö.

Eramu siseviimistlus

ID 38530

5044 vaatamist

Prindi

  • check Pakkumiste tegemine
    kuni 29.01.2017
  • check Võitja valik kuni
    05.02.2017
  • 3 Töö teostamine
    ja hinnang
Hanke lõpp: P, 29. jaanuar, 2017
Maakond: Tartumaa
Muu asula: Kõrveküla
Tööde algus: K, 01. veebruar, 2017 (Soovituslik)
Tööde lõpp: T, 28. veebruar, 2017 (Soovituslik)
Ehitusmaterjalid: Töö tegija poolt

Töö sisu

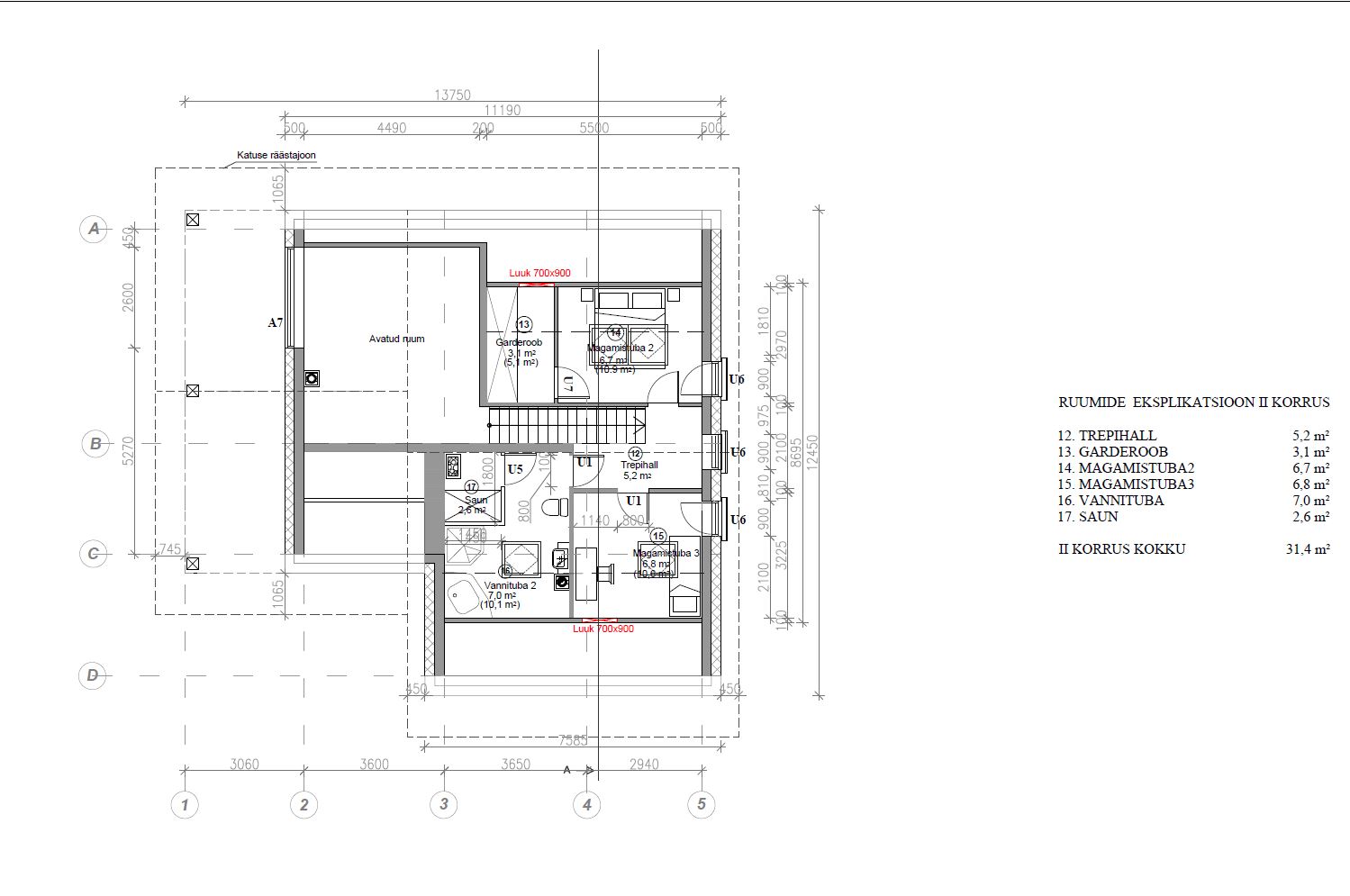
Ootame pakkumisi Tartu külje all paikneva eramu siseviimistluse teostamiseks. Seinad on lautud Fibo Efekt plokkidest. Siseviimistlus:
Seinad- Eluruumides seinad tarvis krohvida, pahteldada ja värvida. Pesuruumides krohv+niiskustõke. Garaazis krohv+värv. Pesuruumides keraamiline plaat.
Laed: Garaazis krohv+värv. Eluruumides kipsist ripplagi. Pesuruumides puidust ripplagi.
Põrandad: eluruumides tammeparkett. Köögis ja esikuosas ning pesuruumides keraamiline plaat (plaadid olemas). Garaazis mingi betoonikaitsevahend.

Pildid ja joonised lisatud. Tehnoruumi viimistlus on teostatud.

Pildid, video ja failid

Hanke korraldaja: eraisik ID31650

Pakkumised

Pakkumisi kokku: 7

Ettevõte Summa Käibemaks Lisatud Vestlus
Kasutaja ikoon ID43786
Pakkuja profiil Väike nool paremale
10€ Ei sisalda Ei sisalda 02.01.2017 Vestlus (4)

Pakkumise kirjeldus:

Tere
Mitte näidata töö on raske hinnata töö. Ja raske läbirääkimisi,köögimööbel, valmistame ka materjalist väga mõistliku hinnaga

Kasutaja ikoon ID43024
Pakkuja profiil Väike nool paremale
27 100€ Ei sisalda Ei sisalda 06.01.2017 Vestlus (8)

Pakkumise kirjeldus:

Hinnapakkumine sisaldab kõiki kirjeldatud töid,materjale(v.a parkett ja plaadid)Vajalike töövahendeid.Töödele 5aastane garantii.Põranda paigaldajal kogemust 20+a.Viimistlejatel 12+aastat.

Kasutaja ikoon ID41994
Pakkuja profiil Väike nool paremale
46 000€ Ei sisalda Ei sisalda 08.01.2017 Vestlus (5)
Kasutaja ikoon ID23044
Pakkuja profiil Väike nool paremale
20€ Ei sisalda Ei sisalda 09.01.2017 Vestlus (5)
Kasutaja ikoon ID3098
Pakkuja profiil Väike nool paremale
15€ Ei sisalda Ei sisalda 18.01.2017 Vestlus (2)

Pakkumise kirjeldus:

Tere. Pakume krohvimist 10.- eur M2 koos materjaliga , pahteldus 12.-eur m2 koos materjaliga , plaatimine 15.- eur m2 (sisaldab segu) , hüdro 2.- eur m2 , parketi paigaldus 5.- eur m2. Km ei lisandu.

Kasutaja ikoon ID39428
Pakkuja profiil Väike nool paremale
100€ Ei sisalda Ei sisalda 20.01.2017 Vestlus (4)

Pakkumise kirjeldus:

Tere

Saadan Teile pakkumise kus toon välja erinevate tööde m2 hinnad. Materjali arveldamine ostutsekkide alusel või kui soovite siis võite materjali ise tuua. Leian et selline lähenemine on kliendisõbralikum ja kliendi jaoks kõige ökonoomsem. Kui pakkuda tööd koos materjaliga, siis üldjuhul jäetakse materjalile kasumikate peale ja kindlasti o ... Rohkem

Kasutaja ikoon ID39130
Pakkuja profiil Väike nool paremale
15 000€ Sisaldab KM Sisaldab KM 27.01.2017 Vestlus (10)

Pakkumise kirjeldus:

Tere.Pakkumine teie kirjelduse järgi.Ettemaksu ei soovi,tasumine 3osas vastuvõetud tööde aktide alusel.Teeme lepingu,tagame kvaliteedi,käibemaks ei lisandu,anname garantii 5AASTAT.Peatsele koostööle lootes.Margus

Küsimused hanke korraldajale

Küsimus: private ID43596   06.01.2017 08:11
Kas tammeparkett on juba välja valitud? Kes selle ostab?

Teavita reeglite rikkumisest

Korraldaja vastus: 06.01.2017 10:10

Parketi ja ker. plaadid hangib tellija

Teavita reeglite rikkumisest

Küsimus: private ID39130   26.01.2017 18:57
Kas hüdro tarvis ja samuti pörandaliistud kelle poolt,kas tasumine sulas või arvega?

Teavita reeglite rikkumisest

Korraldaja vastus: 26.01.2017 19:03

Tasumine sulas. Hüdro märgadesse ruumidesse. Liistudega saan ise hakkama. Sobib sulas

Teavita reeglite rikkumisest

Lisa küsimus

Lisa küsimus

Minu pakkumine

Reeglid

Pakkumise kirjelduse väli on mõeldud pakkumise detailsemaks lahti kirjutamiseks. Pikema teksti mugavaks sisestamiseks klikkige kasti paremal ülaservas oleval ikoonil.
Pakkumist tehes on keelatud postitada enda kontaktandmeid (nimi, telefon, aadress jne). Me jälgime ja analüüsime pakkumisi, et vältida pettuseid ja reeglite rikkumisi.
Rikkumise puhul kasutajakonto blokeeritakse.

 

Teisi töid samas valdkonnas

Valdkonnas "Siseviimistlustööd" on 25 aktiivset tööd

Korteri remont

Asukoht: Harjumaa, Muraste
Aega jäänud: 2p 7h
Tehtud pakkumisi: 15

no-img Pilt puudub

Laminaatparketi paigaldus

Asukoht: Harjumaa, Tallinn
Aega jäänud: 4p 7h
Tehtud pakkumisi: 8

Vanemad teated:

Vaata kõiki

Sellel veebilehel kasutatakse küpsiseid. Kasutamist jätkates nõustute küpsiste kasutamisega.

Sulge
 
Minu pakkumine

Reeglid

Pakkumise kirjelduse väli on mõeldud pakkumise detailsemaks lahti kirjutamiseks. Pikema teksti mugavaks sisestamiseks klikkige kasti paremal ülaservas oleval ikoonil.
Pakkumist tehes on keelatud postitada enda kontaktandmeid (nimi, telefon, aadress jne). Me jälgime ja analüüsime pakkumisi, et vältida pettuseid ja reeglite rikkumisi.
Rikkumise puhul kasutajakonto blokeeritakse.