+ Lisa oma töö      

Otsid ehitajat "Katusetööd" valdkonnast?

Parima pakkumise ja teostaja leidmiseks lisa oma töö.

Uue katuse ehitus

ID 38599

4551 vaatamist

Prindi

  • check Pakkumiste tegemine
    kuni 18.01.2017
  • check Võitja valik kuni
    25.01.2017
  • 3 Töö teostamine
    ja hinnang
Hanke lõpp: K, 18. jaanuar, 2017
Maakond: Harjumaa
Linn: Maardu
Tööde algus: K, 11. jaanuar, 2017 (Soovituslik)
Tööde lõpp: T, 28. veebruar, 2017 (Soovituslik)
Ehitusmaterjalid: Töö tegija poolt

Töö sisu

Objekt: renoveeritav suvila Maardus
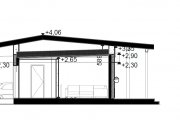
Tööd: Uue katuse ehitus 14m x 11,5m, katte nt. Greecoat MattNova

Kirjeldus: Vana katuse peale uus konstruktsioon, soojustus peale 40cm etc.. nägu lisatud pildis. Või pakkuge teisi variante.


Pildid, video ja failid

Hanke korraldaja: eraisik ID42213

Pakkumised

Pakkumisi kokku: 4

Ettevõte Summa Käibemaks Lisatud Vestlus
Kasutaja ikoon ID40900
Pakkuja profiil Väike nool paremale
18€ Ei sisalda Ei sisalda 12.01.2017 Vestlus (0)

Pakkumise kirjeldus:

Tere.

Pakkumine on mõeldud katuse m2 tööle.

Palun olge hea ja alustage vestlust et saaksin küsida täiendavaid küsimusi, et koostada materjalidele hinnapakkumine.


Parimatega ,
Martin.

Kasutaja ikoon ID43818
Pakkuja profiil Väike nool paremale
9 850€ Ei sisalda Ei sisalda 16.01.2017 Vestlus (0)
Kasutaja ikoon ID30211
Pakkuja profiil Väike nool paremale
32€ Ei sisalda Ei sisalda 16.01.2017 Vestlus (0)

Pakkumise kirjeldus:

Pakun siis esilagu tööd koos materjaliga m/2 hinna .Väga raske on täpselt sellise küsimise peale pakkumist koostada .Infot ja soove vähe.
Oleme selliseid katuseid Muuga aedlinnas üksjagu teinud ja eks igaühel on omad eripärad.

Kasutaja ikoon ID8633
Pakkuja profiil Väike nool paremale
8 900€ Ei sisalda Ei sisalda 18.01.2017 Vestlus (0)

Küsimused hanke korraldajale

Küsimus: private ID38572   11.01.2017 12:42
Tere. Töö pakub huvi ja oleks mõned küsimused. Kas soovite olemasolevale majale viilkatust? Kas soovite maja laiendada (auto varjualuse osa on mõnedel piltidel ja tekib küsimus selle pärast)? Või siis jääks maja katusel sama kuju ja mõõdud nagu praegu on?<br />
Tänud vastuste eest. Parimat.

Teavita reeglite rikkumisest

Korraldaja vastus: 11.01.2017 19:51

Uus katus peab olema väikese kaldega viilkatus (pilt: 3, 4. lisan veer 3D pildid, aga seal terassi katusealune vales kohas). <br />
<br />
Mõte oli lae voodrilaud eemaldada ning praeguse katuse sarikad avalikuks teha/kipsiga katta toa seespoolt, ühel pildil on näha et puuosa on korras seal. Uus konstruktsioon ehitada vana katuse peale, et ei oleks vaja demonteerida muud kui katuse tuulekastid (pilt 4). Katusel praegu suht korralik bituumen katte. Kas se on üldse töötav variant?<br />
<br />
Hinda saab pakkuda ka m2 kohta (sis. töö+materiaal+muu.. +info selgituses)

Teavita reeglite rikkumisest

Küsimus: private ID40900   11.01.2017 23:46
Tere.<br />
<br />
<br />
Kas pakkumist tohib teha ka ainult tööle ?<br />
<br />
<br />
Parimatega.<br />
Martin

Teavita reeglite rikkumisest

Korraldaja vastus: 12.01.2017 00:46

Tere. Saab, aga eelistan kokku maksumus lahenduse alguseks.

Teavita reeglite rikkumisest

Küsimus: private ID35157   14.01.2017 09:59
Tere . Kas küsimus on katuse soojustamises. Pakuks välja olemasolevale katusele soojustuse lisamine vill või penoplast ja katta sbs rullmaterjaliga. Olemas olev vana rullmaterjal jääks aurutõkke funktsiooni täitma. Kas selline lahendus sobiks. Lugupidamisega.

Teavita reeglite rikkumisest

Korraldaja vastus:
Hanke korraldaja ei ole küsimusele veel vastanud

Küsimus: private ID38572   14.01.2017 10:26
Tere. Millal maja on ehitatud ja kas teate mis on sisemise voodrilaua alla paigaldatud (aurutõkke olemasolu huvitab)? Joonistel on näha tugipostid. Hange sisaldab ilmselt ka postide vundamentide, postide, vöö/talade ehitustöid? Kas sarikad jäävad seal nähtavale või tuleb alla laudis? Kas katuse vihmaveesüsteemile tuleb ka pakkumine teha selle hanke sees? Kalded katusel on madalad, katusekatteks ei sobi muu kui rullmaterjal või käsivaltsplekk (mitte classik valtsprofiil, kaldenurk liiga väike jooniste põhjal arvutades). Kas katusekatte osas on Teil teine arvamus?<br />
Tänud vastuste eest. Parimat soovides.<br />

Teavita reeglite rikkumisest

Korraldaja vastus:
Hanke korraldaja ei ole küsimusele veel vastanud

Küsimus: private ID38572   14.01.2017 10:27
Tere. Millal maja on ehitatud ja kas teate mis on sisemise voodrilaua alla paigaldatud (aurutõkke olemasolu huvitab)? Joonistel on näha tugipostid. Hange sisaldab ilmselt ka postide vundamentide, postide, vöö/talade ehitustöid? Kas sarikad jäävad seal nähtavale või tuleb alla laudis? Kas katuse vihmaveesüsteemile tuleb ka pakkumine teha selle hanke sees? Kalded katusel on madalad, katusekatteks ei sobi muu kui rullmaterjal või käsivaltsplekk (mitte classik valtsprofiil, kaldenurk liiga väike jooniste põhjal arvutades). Kas katusekatte osas on Teil teine arvamus?<br />
Tänud vastuste eest. Parimat soovides.<br />

Teavita reeglite rikkumisest

Korraldaja vastus:
Hanke korraldaja ei ole küsimusele veel vastanud

Lisa küsimus

Lisa küsimus

Minu pakkumine

Reeglid

Pakkumise kirjelduse väli on mõeldud pakkumise detailsemaks lahti kirjutamiseks. Pikema teksti mugavaks sisestamiseks klikkige kasti paremal ülaservas oleval ikoonil.
Pakkumist tehes on keelatud postitada enda kontaktandmeid (nimi, telefon, aadress jne). Me jälgime ja analüüsime pakkumisi, et vältida pettuseid ja reeglite rikkumisi.
Rikkumise puhul kasutajakonto blokeeritakse.

 

Teisi töid samas valdkonnas

Valdkonnas "Katusetööd" on 9 aktiivset tööd

no-img Pilt puudub

Käidava katuse PVC 54m2

Asukoht: Harjumaa, Muraste
Aega jäänud: 4p 12h
Tehtud pakkumisi: 3

Garaaži katuse vahetamine

Asukoht: Harjumaa, Viimsi
Aega jäänud: 13p 12h
Tehtud pakkumisi: 2

Vanemad teated:

Vaata kõiki

Sellel veebilehel kasutatakse küpsiseid. Kasutamist jätkates nõustute küpsiste kasutamisega.

Sulge
 
Minu pakkumine

Reeglid

Pakkumise kirjelduse väli on mõeldud pakkumise detailsemaks lahti kirjutamiseks. Pikema teksti mugavaks sisestamiseks klikkige kasti paremal ülaservas oleval ikoonil.
Pakkumist tehes on keelatud postitada enda kontaktandmeid (nimi, telefon, aadress jne). Me jälgime ja analüüsime pakkumisi, et vältida pettuseid ja reeglite rikkumisi.
Rikkumise puhul kasutajakonto blokeeritakse.