+ Lisa oma töö      

Otsid ehitajat "Korterite remont" valdkonnast?

Parima pakkumise ja teostaja leidmiseks lisa oma töö.

Korteri Remont

ID 38876

4003 vaatamist

Prindi

  • check Pakkumiste tegemine
    kuni 28.02.2017
  • check Võitja valik kuni
    07.03.2017
  • 3 Töö teostamine
    ja hinnang
Hanke lõpp: T, 28. veebruar, 2017
Maakond: Pärnumaa
Muu asula: Surju küla
Tööde algus: E, 06. märts, 2017 (Soovituslik)
Tööde lõpp: E, 01. mai, 2017 (Soovituslik)
Ehitusmaterjalid: Töö tellija poolt

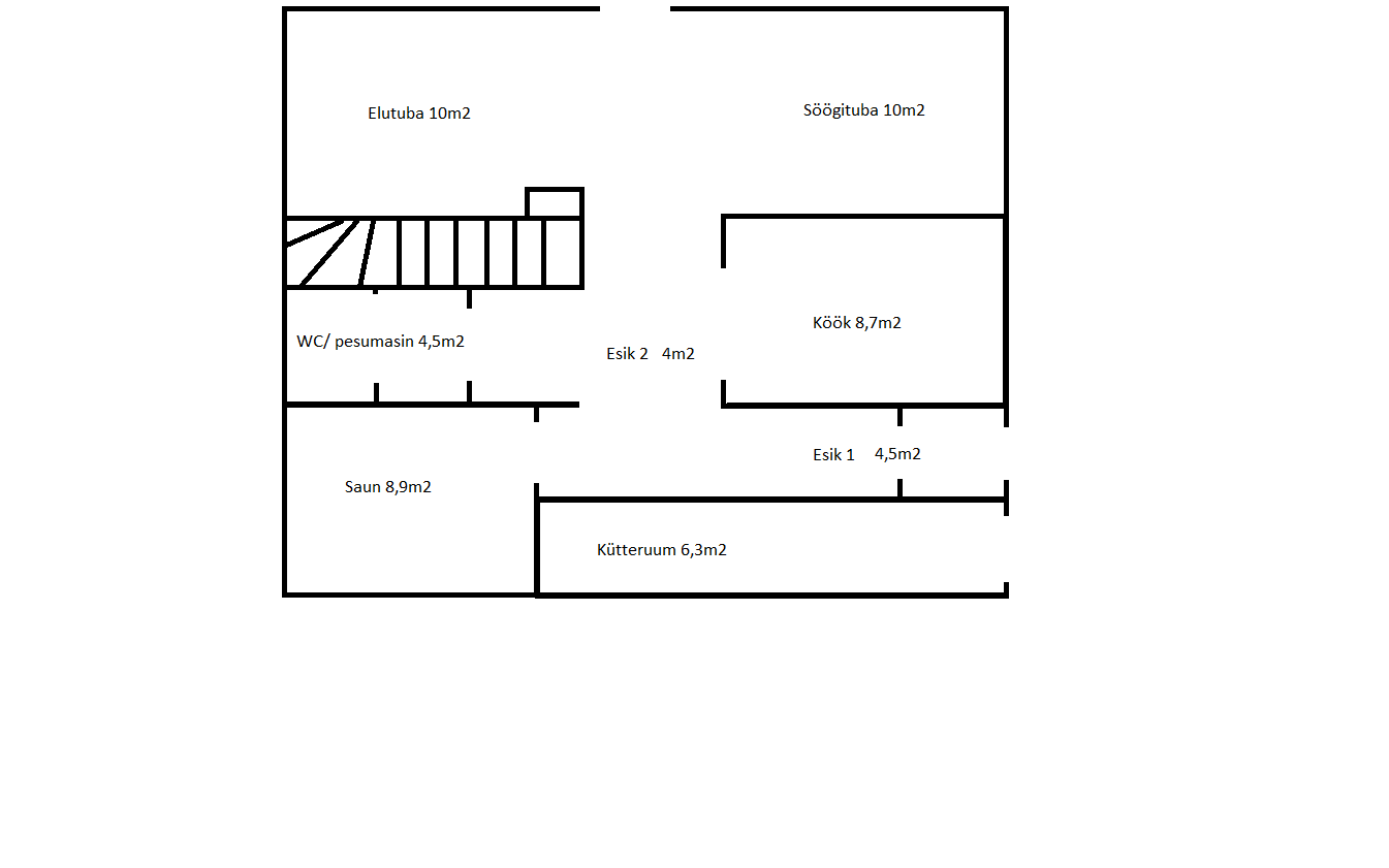
Töö sisu

Tegemist korteriga läbi kahe korruse. ca 90m2
Lammutustööd tehtud. Enne tööde algust koristatud ja plats puhas.
*Ukses sisse esik: 1 seinalt eemaldada tapeet. Lae karkass+kips 1x
*Esik2: Eemaldada tapeedi jäägid. Lae karkass+kips1x
*Köök: Eemaldada tapeet. Teha aknapõsed kipsist. Akna peale kipsist karbik. Ukseauk natuke laiemaks ja auk sirgu krohvida (ei tule uut ust)
*Wc osa: Lisasein ukseauguga ca 3m2. olemasolev ukseauk sirgu krohvida(uut ust ei tule) Lae karkass+kips 1x
*Küttekolektor+vee torustik: Sein ette ehitada ca 2m2+luuk
*Söögituba: Aknapõsed kipsist. Kahele seinale kleepida kips
*Elutuba: Lae talade vahele vill 20cm. Riputid, karkass+kips1x. Tagumine sein (pildilt näha) karkass+ kips 1x. Uus sein OSB+kips.
*WC 2korrus: Lae karkass+kips 1x. Seinad tasandada. Põranda kalded üle vaadata.
*Magamistuba1: Aknapõsed kipsist. kips kleepida 1 sein
*Magamistuba2: Aknapõsed kipsist. kips kleepida 2 seina
*Magamistuba3: Aknapõsed kipsist. kips kleepida 1 sein. kips uuele seinale
Sauna osa 1korrusel jätame hetkel hankest välja
Materjalid olemas, kui midagi puudu siis toome juurde.

Eraldi pakkuda Maalritööde hinda: On ebatasaseid pindasi (eriti söögitoa lagi, lisatud pilt) on tasaseid pindasid, et lauspahtlist piisab. Aga eks oma ala spetsialist teab.
Kvaliteet väga oluline.

Sobivusel pakkuda ka muid töid. Näiteks parkett, terassi ehitus väljas, fassaad tahab viimast kihti+värvi, Üks müür lammutada ja autole katusealune teha, Garaasi uks paigaldada (auk suuremaks vaja teha) Need siis juba tuleviku kokkulepped.

Päikest :)

Pildid, video ja failid

Hanke korraldaja: eraisik ID26702

Pakkumised

Pakkumisi kokku: 3

Ettevõte Summa Käibemaks Lisatud Vestlus
Kasutaja ikoon ID40905
Pakkuja profiil Väike nool paremale
16€ Ei sisalda Ei sisalda 25.02.2017 Vestlus (0)

Pakkumise kirjeldus:

Tere, tegin esi algu tunnihinde pakkumise, 16€/h nägu, objektil korraga 2-3meest. kuna raske on teie kirjeldustele vastavat tk. hinda teha. hinna pakkumise võime hiljem teha peale objektiga tutvumiset. töödele anname 5aastase garantii.

Lp.

Kasutaja ikoon ID41578
Pakkuja profiil Väike nool paremale
12€ Ei sisalda Ei sisalda 27.02.2017 Vestlus (0)

Pakkumise kirjeldus:

Tere! Väga raske on teha sellele hankele hinnapakkumist ja omapoolne pakkumine oleks 12 eur/h kuna aeg on näidanud et tunniga tuleb kliendile sootsam teha selliseid töid.

Kasutaja ikoon ID40430
Pakkuja profiil Väike nool paremale
18€ Ei sisalda Ei sisalda 27.02.2017 Vestlus (0)

Pakkumise kirjeldus:

Tegemist on tunnihindega. Oleme üldehitusega tegelev väikeettevõte, kelle meeskonnas on nii maaler, torumees kui ka elektrik. Teeme tihedat koostööd ka plaatijaga ning teiste oma ala spetsialistidega. Oleme oma töö suunanud peamiselt väikeehitiste renoveerimisele ning vajadusel saame jagada ka pilte või isegi kontakte. Töid teostame enamasti harju- ... Rohkem

Küsimused hanke korraldajale

Küsimus: private ID44250   24.02.2017 12:04
Tere!<br />
<br />
Väga keeruline on hinda teha kuna ei ole seinte ruutmeetreid. Huvi oleks selle objekti vastu suur.<br />
<br />
<br />
Tervitades !

Teavita reeglite rikkumisest

Korraldaja vastus:
Hanke korraldaja ei ole küsimusele veel vastanud

Lisa küsimus

Lisa küsimus

Minu pakkumine

Reeglid

Pakkumise kirjelduse väli on mõeldud pakkumise detailsemaks lahti kirjutamiseks. Pikema teksti mugavaks sisestamiseks klikkige kasti paremal ülaservas oleval ikoonil.
Pakkumist tehes on keelatud postitada enda kontaktandmeid (nimi, telefon, aadress jne). Me jälgime ja analüüsime pakkumisi, et vältida pettuseid ja reeglite rikkumisi.
Rikkumise puhul kasutajakonto blokeeritakse.

 

Teisi töid samas valdkonnas

Valdkonnas "Korterite remont" on 2 aktiivset tööd

Vannitoa lampide paigaldus + erinevad pisiparandused korteris

Asukoht: Harjumaa, Tallinn
Aega jäänud: 1p 18h
Tehtud pakkumisi: 3

Korteri kapitaalremont ja ümberehitus (täielik siseviimistlus + elektritööd)

Asukoht: Järvamaa
Aega jäänud: 12p 18h
Tehtud pakkumisi: 0

Vanemad teated:

Vaata kõiki

Sellel veebilehel kasutatakse küpsiseid. Kasutamist jätkates nõustute küpsiste kasutamisega.

Sulge
 
Minu pakkumine

Reeglid

Pakkumise kirjelduse väli on mõeldud pakkumise detailsemaks lahti kirjutamiseks. Pikema teksti mugavaks sisestamiseks klikkige kasti paremal ülaservas oleval ikoonil.
Pakkumist tehes on keelatud postitada enda kontaktandmeid (nimi, telefon, aadress jne). Me jälgime ja analüüsime pakkumisi, et vältida pettuseid ja reeglite rikkumisi.
Rikkumise puhul kasutajakonto blokeeritakse.