+ Lisa oma töö      

Otsid ehitajat "Renoveerimine" valdkonnast?

Parima pakkumise ja teostaja leidmiseks lisa oma töö.

Hange on lõppenud!

Võitjaks osutus kasutaja ID 37372

Korraldaja hinnang tehtud tööle

5.0
24.07.2017
Töökiirus: 12345
Kvaliteet: 12345
Hind: 12345

Töö kvaliteetne ja korrektne, soovitan. - Terell P.

Silikaatvoodriga maja soojustamine, uue välisvoodri paigaldus ning katuse vahetus.

ID 38877

10526 vaatamist

Prindi

  • check Pakkumiste tegemine
    kuni 21.02.2017
  • check Võitja valik kuni
    28.02.2017
  • 3 Töö teostamine
    ja hinnang
Hanke lõpp: T, 21. veebruar, 2017
Maakond: Tartumaa
Linn: Tartu
Tööde algus: E, 17. aprill, 2017 (Soovituslik)
Tööde lõpp: R, 07. juuli, 2017 (Soovituslik)
Ehitusmaterjalid: Töö tegija poolt

Töö sisu

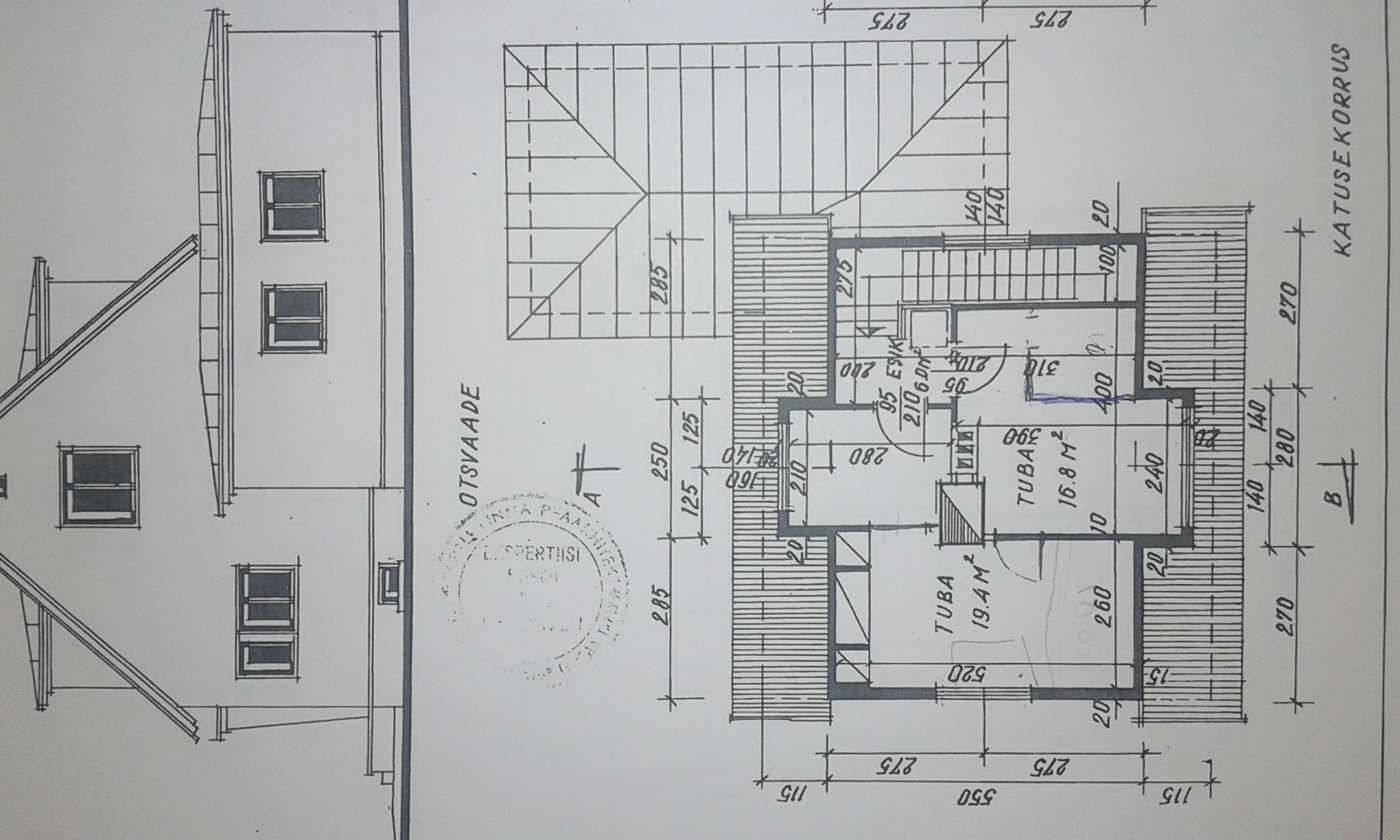
Tegemist 1960-ndatel aastatel ehitatud puitkarkass majaga, millel silikaattellistest vooder ja eterniitkatus.

1. Vajalik on maja soojustada villaga, lisada tuuletõke ja laudis. Pööning on juba vahuga soojustatud.
Maja seinte pindala on ca 170m2, ilma akendeta.
2. Vahetada kaks akent, mõõtudega 100x125 ja 100x195.
3. Vahetada kaks välisust.
4. Vana eterniitkatuse vahetus uue Poola Cembrit eterniidiga 1250x1150mm punane RAL-ga. (ühe majaosa katus on juba sellega kaetud). Paigaldada vihmaveesüsteemid, lumetõkked, roovituse paigaldamine, kui vaja siis ka katuse soojustamine, tuulekastide ehitamine, vintskappide renoveerimine.
Katuse pindala ca 150m2.

5. Kergterrassi ehitus tagaukse ette.

Palun hinnapakkumised teha eraldi katusele ja soojustus/viimistlustöödele.

Pildid, video ja failid

Hanke korraldaja: eraisik ID39543

Pakkumised

Pakkumisi kokku: 11

Ettevõte Summa Käibemaks Lisatud Vestlus
Kasutaja ikoon ID41753
Pakkuja profiil Väike nool paremale
29 071€ Ei sisalda Ei sisalda 16.02.2017 Vestlus (0)
Kasutaja ikoon ID33769
Pakkuja profiil Väike nool paremale
52 000€ Ei sisalda Ei sisalda 16.02.2017 Vestlus (0)

Pakkumise kirjeldus:

Tere


Hinnapakkumine soojustus ja katusetöödele

Soojustus ja fassaadi tööd koos olemasoleva voodri lammutusega ja utiliseerimisega 21 000eur

Katusetööd koos vintskappide seinte renoveerimise, tuulekastide, lumetõkete, vihmavee süsteemidega (sisaldab ka eterniidi utiliseerimist) 31 000eur


Töö lepingu alusel ja garantiiga.

Parimaga ... Rohkem

Kasutaja ikoon ID41064
Pakkuja profiil Väike nool paremale
17 750€ Ei sisalda Ei sisalda 16.02.2017 Vestlus (0)

Pakkumise kirjeldus:

Tere!

Pakkumine sisaldab:

Töö raha.

1.Katusevahetus 19 eur/m2

2.Tuulekast+vihmavesi 21eur/jm

3.Fassaadi rihtimine,soojustamine ja laua löömine (sisaldab lammutust) 22eur/m2

4.Terassi ehitus ja uste-akende paigaldus.600-800 eur(oleneb terassi suurusest)


Materjalide maksumus ca 9000eur +/-20% (sisaldab tellinguid ja transporti)

R ... Rohkem

Kasutaja ikoon ID43786
Pakkuja profiil Väike nool paremale
115€ Ei sisalda Ei sisalda 18.02.2017 Vestlus (0)

Pakkumise kirjeldus:

Fassad 1m2 65 eur;Kattus ja kõik asja kokku: 80 eur/m2 pluss akend.kõik on materjaliga. Vana eterniit uteliseerimine praegu ei tea,aga orenteriv tuleb toon 500eur

Kasutaja ikoon ID30833
Pakkuja profiil Väike nool paremale
20 000€ Ei sisalda Ei sisalda 20.02.2017 Vestlus (3)
Kasutaja ikoon ID31418
Pakkuja profiil Väike nool paremale
25 500€ Ei sisalda Ei sisalda 20.02.2017 Vestlus (0)

Pakkumise kirjeldus:

Hind tööle koos materjaalidega .Tööde teostus lepinguga ja tasumine etapi alusel.Garantii 3 a.

Kasutaja ikoon ID39871
Pakkuja profiil Väike nool paremale
44€ Ei sisalda Ei sisalda 20.02.2017 Vestlus (0)

Pakkumise kirjeldus:

Tere.
Hind katuse 1 m2 renoveerimiseks ja sisaldab materjale ja tööraha.
Seina 1m2 hind tööraha ja materjal 53€.
Akna paigaldus 30€/tk, uks 50€/tk (aknad ja uksed ei ole hinna sees).
teostatud töödele garantii. Ettemaks kokkuleppel ja maksmine etappide kaupa.
Km. ei lisandu.

Kasutaja ikoon ID43061
Pakkuja profiil Väike nool paremale
19 000€ Ei sisalda Ei sisalda 21.02.2017 Vestlus (0)

Pakkumise kirjeldus:

Tere. Hind sisaldab seinte soojustamist, akende ja uste paigaldust ja terrassi ehitust 11000eur,katuse vahetust, tuulekastide ehitust ja vihmasüsteemide,lumetõkke paigaldust 8000 eur.Töödele garantii

Kasutaja ikoon ID44108
Pakkuja profiil Väike nool paremale
21 900€ Ei sisalda Ei sisalda 21.02.2017 Vestlus (0)

Pakkumise kirjeldus:

Konkreetne pakkumine peale võitja valimist ja peale ehitusobjekti hindamist.

Kasutaja ikoon ID37372
Pakkuja profiil Väike nool paremale
17 190€ Ei sisalda Ei sisalda 21.02.2017 Vestlus (0)

Pakkumise kirjeldus:

Tere! Töödele 5.aastane garantii. Detailne hinnapakkumine kui asi üle vaadatud.
Parimate soovidega: A

Kasutaja ikoon ID44265
Pakkuja profiil Väike nool paremale
3 060€ Ei sisalda Ei sisalda 21.02.2017 Vestlus (0)

Pakkumise kirjeldus:

Pakkumine sisaldab soojus materjali ja seina kandmise hinda

Küsimused hanke korraldajale

Küsimus: private ID41064   15.02.2017 09:58
Tere!<br />
Kas vana silikaat jääb alles?Mis on maja môôdud+katuse omad(materjali arvestamise jaoks)Mis tuuletôke seina läheb?Missugune voodrilaud ja palju villa olete seina môelnud asetada.<br />
Parimat soovides!!!

Teavita reeglite rikkumisest

Korraldaja vastus: 15.02.2017 19:43

Tere,<br />
Plaan oli, et silikaat ei jää alles. Materalide osas ootan ettepanekuid, villa peaks minema seina 100mm, voodrilaud peaks olema eelnevalt töödeldud/värvitud.<br />
Lisan failide juurde ka maja plaanid, sealt saab täpsemaid mõõte näha.<br />
<br />
Kõik ettepanekud on teretunud.

Teavita reeglite rikkumisest

Küsimus: private ID44039   15.02.2017 16:20
Tere<br />
<br />
Soovitaksin teil alustada hoopis soojustuse projekti hankest. Projekti käigus jõutakse selgusele, mis mahus ja millise soojustusega on kõige optimaalsem hoonet soojustada. Projektiga selgub ka hüdroisolatsiooni vajalikkus/mittevajalikkus. Fotodelt on näha, et pea kõikide akende sillused on olnud aladimensioneeritud, mille tõttu on tekkinud praod fassaadi. Kiire konsultatsiooni korras soovitaksin kogu voodri eemaldada. Kui projekt on olemas, siis on kõigil ehitushankes osalejatel samad lähteandmed ning saaksite adekvaatsed pakkumised soojustamise tööde teostamiseks. Leian, et ainult sedasi tehes saate endale sobilikuima ja toimiva lahenduse.<br />
<br />
Parimat.

Teavita reeglite rikkumisest

Korraldaja vastus: 15.02.2017 19:46

Suur tänu hea nõuande eest.<br />
Silikaatvooder vajab kindlasti eemaldamist.

Teavita reeglite rikkumisest

Küsimus: private ID43380   19.02.2017 14:05
Tere.Tahtsime küsida katuse kohta:1)kas katuse rihtimine tuleb Teile uued panna või Teil on need heas seisukorras ja Te ei vaheta neid?<br />
2)kas finishi etappil tuleb Teil puit fassad.2)Kas aknad tulevad Teie poolt?<br />
Parematega<br />
Mihhail

Teavita reeglite rikkumisest

Korraldaja vastus: 20.02.2017 14:59

Tere,<br />
<br />
Peaks küll arvestama, et roovitus paigaldus ja rihtimine tuleb teha. Uus fassaad tuleb puidust. Sobiks kui aknad ja uksed oleks samuti pakkumise sees.<br />
<br />
Parimat

Teavita reeglite rikkumisest

Küsimus: private ID32153   20.02.2017 10:09
Kui silikaat tuleb maha võtta, siis saaks seinu soojustada tselluvillaga märgpritsemeetodid. Kas selline variant sobiks teile?

Teavita reeglite rikkumisest

Korraldaja vastus: 20.02.2017 15:01

Jah sobib, kui annab sama hea tulemuse. Kui paks oleks tselluvilla kiht?

Teavita reeglite rikkumisest

Küsimus: private ID32153   20.02.2017 15:48
Kui kasutada roovituseks 50*100 prussi ja sein korralikult ära loodida, siis tuleb soojustuskihi keskmiseks paksuseks tavaliselt 11-13cm.

Teavita reeglite rikkumisest

Korraldaja vastus: 21.02.2017 09:50

Hästi, milline on hinnaklass?

Teavita reeglite rikkumisest

Küsimus: private ID44265   21.02.2017 15:16
Tere,<br />
Pakuks seinte soojustamiseks PUR vahtu.<br />
Seinad loodiks distantsiga,nii et vaht oleks ka roovi all ja puuduvad külma sillad.<br />
Vahu paksus seinas oleks 7-10 cm. Alla hot spray meetodil lahtise rakuga vaht, ja peale kinnise rakuga vaht.<br />
Sellisel meetodil kaob vajadus tuuletõkke plaadile ,kuna tekib täielikult monoliidne kiht.<br />
Nii lahtise kui ka kinnise vahule on EN sertifikaadid, samuti on vahud leegi kindlad.<br />
Samuti väljendub lõpp tulemus töö kiiruses kui ka hinnaliselt.<br />
<br />
Kas selline teostus oleks vastuvõetav?

Teavita reeglite rikkumisest

Korraldaja vastus:
Hanke korraldaja ei ole küsimusele veel vastanud

Lisa küsimus

Lisa küsimus

Minu pakkumine

Reeglid

Pakkumise kirjelduse väli on mõeldud pakkumise detailsemaks lahti kirjutamiseks. Pikema teksti mugavaks sisestamiseks klikkige kasti paremal ülaservas oleval ikoonil.
Pakkumist tehes on keelatud postitada enda kontaktandmeid (nimi, telefon, aadress jne). Me jälgime ja analüüsime pakkumisi, et vältida pettuseid ja reeglite rikkumisi.
Rikkumise puhul kasutajakonto blokeeritakse.

 

Teisi töid samas valdkonnas

Valdkonnas "Renoveerimine" on 4 aktiivset tööd

Pinkide puitdetailide vahetus

Asukoht: Harjumaa, Tallinn
Aega jäänud: 25p 18h
Tehtud pakkumisi: 11

no-img Pilt puudub

Maja osaline renoveerimine

Asukoht: Raplamaa, Lõpemetsa küla
Aega jäänud: 5p 18h
Tehtud pakkumisi: 3

Vanemad teated:

Vaata kõiki

Sellel veebilehel kasutatakse küpsiseid. Kasutamist jätkates nõustute küpsiste kasutamisega.

Sulge
 
Minu pakkumine

Reeglid

Pakkumise kirjelduse väli on mõeldud pakkumise detailsemaks lahti kirjutamiseks. Pikema teksti mugavaks sisestamiseks klikkige kasti paremal ülaservas oleval ikoonil.
Pakkumist tehes on keelatud postitada enda kontaktandmeid (nimi, telefon, aadress jne). Me jälgime ja analüüsime pakkumisi, et vältida pettuseid ja reeglite rikkumisi.
Rikkumise puhul kasutajakonto blokeeritakse.