+ Lisa oma töö      

Otsid ehitajat "Vannitubade remont" valdkonnast?

Parima pakkumise ja teostaja leidmiseks lisa oma töö.

Hange on lõppenud!

Võitjaks osutus kasutaja ID 30741

Korraldaja hinnang tehtud tööle

5.0
27.03.2017
Töökiirus: 12345
Kvaliteet: 12345
Hind: 12345

Töö kiire ja kvaliteetne! Oma ala spetsialistid! - Juhan E.

Vannitoa ehitus Mustamäel

ID 39032

9254 vaatamist

Prindi

  • check Pakkumiste tegemine
    kuni 09.03.2017
  • check Võitja valik kuni
    16.03.2017
  • 3 Töö teostamine
    ja hinnang
Hanke lõpp: N, 9. märts, 2017
Maakond: Harjumaa
Linn: Tallinn
Tööde algus: E, 13. märts, 2017 (Soovituslik)
Tööde lõpp: R, 24. märts, 2017 (Soovituslik)
Ehitusmaterjalid: Töö tellija poolt

Töö sisu

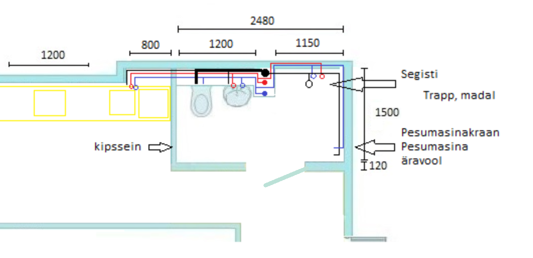
Tallinnas/ Mustamäel, teisel korrusel sai vana vannitoa boks sai lammutatud, nüüde selle asemele on ehitatud uus kipsist boks 1,5x2,5m2.

Püstak asub ruumi keskel.

Teostatavad tööd:

Torutööd:
Vannitoast läbi kipsseina viia kööki soe, külm ja kanalisatsioonitoru.
Wc potile vesi ja kanalisatsioonitoru.
Vannitoa kraanikauseile soe, külm ka kanalisatsioonitoru.
Dusile mdala trapi paigaldamine(koos haisulukuga), dušisegistile seina seest soe ja külm vesi.
Pesumasinale külm vesi ja äravolutoru (seina seest)
Vanade vasktorude eemaldamine , ning asendamine uute torudega alates püstaku torust.
Veelugejate asukoha muutmine.
Lisaks vajalikud kraanid ennem tarbija ühendamist.


Kuna uus põrand tuleb valada, siis on võimalik paigaldada mõned torud põranda sisse nt pesumasina vesi ja kanal, ning segisti soe ja külm vesi. Kuid tõustes peavad olema paigaldatud seinasiseselt.

Põranda valamine ca 3,8m2
Põrand valada, alla paigaldada ca 30mm peno , ning peale valada valu vastavalt madala trapi vajadusele ca40mm, kokku ca 70mm, ning põrandale vajaliku kalde andmine , sisse paigaldada vajadusel armatuur.

Seinte hüdroisoleerimine,( ainult dušinurga seinad, ca 8m2
Põranda hüdroisoleerimine ca 3,8m2

Põranda plaatimine ca 3,8m2, (10×10 cm) ühendatud liimvuugiga 30×40 cm plaadiks.
Seina plaatimine dušinurga ja püstaku ümbert, ning wc poti kapp, kokku ca 12m2.

Raamiga wc potiühendamine ja paigaldamine, ning sinna ümber kapi ehitamine kipsist ca Kõrgus 1,3, laius 1,2 ja sügavus ca 0,3m( täpsemad mõõdud tüpsustan hiljem)
Lisaks kraanikausi, kraani ja segistile vajalikud ühendus-ja paigaldustööd.
Veenäidikutele hooldusluugi paigaldamine.

Kõik vajalikud vuukimis ja silikoonimine.

Vannitoa ukse,lenigide ja liistude paigaldamine.

Tööga on kiire!





Pildid, video ja failid

Hanke korraldaja: eraisik ID42103

Pakkumised

Pakkumisi kokku: 2

Ettevõte Summa Käibemaks Lisatud Vestlus
Kasutaja ikoon ID44392
Pakkuja profiil Väike nool paremale
880€ Ei sisalda Ei sisalda 07.03.2017 Vestlus (0)
Kasutaja ikoon ID30741
Pakkuja profiil Väike nool paremale
1 200€ Ei sisalda Ei sisalda 07.03.2017 Vestlus (2)

Pakkumise kirjeldus:

Garantii 2-a

Küsimused hanke korraldajale

Küsimus: private ID44392   07.03.2017 08:34
kas poleks võimalik korraldada nii, et võtaksin ette ainult kõik torudesse puutuva.Olemas riistad kogemus ja pädevus.Tegemist õhe päeva tööga.Aust:Erik

Teavita reeglite rikkumisest

Korraldaja vastus: 07.03.2017 08:38

Tere, mis hinnaks pakute torudöödeks?

Teavita reeglite rikkumisest

Küsimus: private ID44392   07.03.2017 08:45
250 võin kohe ära teha<br />

Teavita reeglite rikkumisest

Korraldaja vastus:
Hanke korraldaja ei ole küsimusele veel vastanud

Küsimus: private ID44392   07.03.2017 08:48
mis torud on plaanis panna 16 al-pex

Teavita reeglite rikkumisest

Korraldaja vastus:
Hanke korraldaja ei ole küsimusele veel vastanud

Lisa küsimus

Lisa küsimus

Minu pakkumine

Reeglid

Pakkumise kirjelduse väli on mõeldud pakkumise detailsemaks lahti kirjutamiseks. Pikema teksti mugavaks sisestamiseks klikkige kasti paremal ülaservas oleval ikoonil.
Pakkumist tehes on keelatud postitada enda kontaktandmeid (nimi, telefon, aadress jne). Me jälgime ja analüüsime pakkumisi, et vältida pettuseid ja reeglite rikkumisi.
Rikkumise puhul kasutajakonto blokeeritakse.

 

Teisi töid samas valdkonnas

Valdkonnas "Vannitubade remont" on 9 aktiivset tööd

Vanni ja valamu paigaldamine korteris

Asukoht: Harjumaa, Muraste
Aega jäänud: 3h 0 min
Tehtud pakkumisi: 5

Vannitoa veekahjustuse likvideerimise konsultatsioon ja remont

Asukoht: Harjumaa, Tallinn
Aega jäänud: 2p 3h
Tehtud pakkumisi: 3

Vanemad teated:

Vaata kõiki

Sellel veebilehel kasutatakse küpsiseid. Kasutamist jätkates nõustute küpsiste kasutamisega.

Sulge
 
Minu pakkumine

Reeglid

Pakkumise kirjelduse väli on mõeldud pakkumise detailsemaks lahti kirjutamiseks. Pikema teksti mugavaks sisestamiseks klikkige kasti paremal ülaservas oleval ikoonil.
Pakkumist tehes on keelatud postitada enda kontaktandmeid (nimi, telefon, aadress jne). Me jälgime ja analüüsime pakkumisi, et vältida pettuseid ja reeglite rikkumisi.
Rikkumise puhul kasutajakonto blokeeritakse.