+ Lisa oma töö      

Otsid ehitajat "Plaatimistööd" valdkonnast?

Parima pakkumise ja teostaja leidmiseks lisa oma töö.

Põranda ja seina plaatimine

ID 39046

3450 vaatamist

Prindi

  • check Pakkumiste tegemine
    kuni 12.03.2017
  • check Võitja valik kuni
    19.03.2017
  • 3 Töö teostamine
    ja hinnang
Hanke lõpp: P, 12. märts, 2017
Maakond: Harjumaa
Linn: Tallinn
Tööde algus: L, 01. aprill, 2017 (Kohustuslik)
Tööde lõpp: L, 08. aprill, 2017
Ehitusmaterjalid: Töö tellija poolt

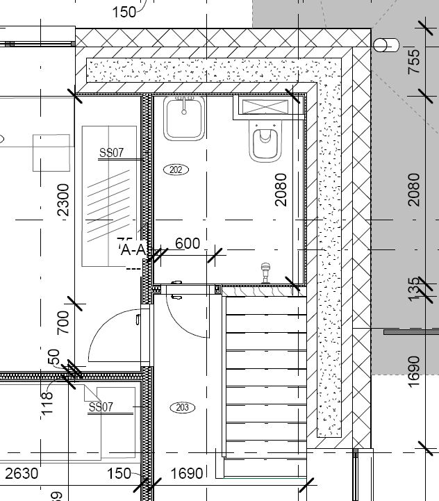
Töö sisu

Tuleks teha põranda tasandustööd + hüdro. Põrandal on trapi kalle tehtud põrandakipsiga.
Paigaldada kokku 6m2 plaati Hexagon 14,2×16,4 ja vuukida.
Kogu seina äär paigaldada 10x10 plaadiga porte (lõigata plaat pooleks, et porte jääb 5cm kõrgune)
Seina paigaldada 4x900 plaati - seinad on maalri poolt sirgeks aetud.

Pildid, video ja failid

Hanke korraldaja: eraisik ID30608

Pakkumised

Pakkumisi kokku: 7

Ettevõte Summa Käibemaks Lisatud Vestlus
Kasutaja ikoon ID30741
Pakkuja profiil Väike nool paremale
700€ Ei sisalda Ei sisalda 09.03.2017 Vestlus (0)

Pakkumise kirjeldus:

Garantii 2-a

Kasutaja ikoon ID43380
Pakkuja profiil Väike nool paremale
1 200€ Ei sisalda Ei sisalda 10.03.2017 Vestlus (0)

Pakkumise kirjeldus:

Tööd teeme kvalitetne,kiire,ja kohusetundliku.Vajadusel sõlmime lepingu.
Parimate koostöö sovitega
ID:43380

Kasutaja ikoon ID44471
Pakkuja profiil Väike nool paremale
1 000€ Sisaldab KM Sisaldab KM 10.03.2017 Vestlus (0)
Kasutaja ikoon ID44436
Pakkuja profiil Väike nool paremale
810€ Sisaldab KM Sisaldab KM 10.03.2017 Vestlus (0)

Pakkumise kirjeldus:

Hind sisaldab hankes kirjeldatud töid. Tehtud töödele garantii 2a. Km ei lisandu. Tasumine arvega.

Kasutaja ikoon ID44210
Pakkuja profiil Väike nool paremale
600€ Ei sisalda Ei sisalda 11.03.2017 Vestlus (0)

Pakkumise kirjeldus:

Tere. Hind teie poolt kirjeldatud tööde teostamiseks. KM ei lisandu. Töö korralik ja garantiiga.

Kristjar

Kasutaja ikoon ID39774
Pakkuja profiil Väike nool paremale
690€ Ei sisalda Ei sisalda 12.03.2017 Vestlus (0)

Pakkumise kirjeldus:

Hinnapakkumine tehtud vastavalt hanke kirjeldusele. Hind sisaldab koristust ja ehitusprahi utiliseerimist. Tehtud töödele garantii 24 kuud. Lugupidamisega Mehis

Kasutaja ikoon ID39130
Pakkuja profiil Väike nool paremale
1 000€ Ei sisalda Ei sisalda 12.03.2017 Vestlus (0)

Pakkumise kirjeldus:

Leping,kvaliteet,garantii5aastat

Küsimused hanke korraldajale

Küsimus: private ID30741   09.03.2017 17:07
Tere. Kas oleks võimalik mingi joonis või midagi mis näitab kus on trapi asukoht, mis trapp nimelt on? Kas pikk või ümmargune( ehk kas ühe kaldega, või mitme kaldega? Põranda kohta asi selge 6m2. Palju seina pinda läheb plaadi alla, mis täpsemad plaadi ja seinte mõõdud on, kus on uks või aken? Ootan tagasisidet

Teavita reeglite rikkumisest

Korraldaja vastus: 09.03.2017 19:01

tere, pikk trapp on 720mm ja kaks kallet.Trapp on otsa seinast cirka 100mm.<br />
Seina lähevad 4tk 900x900 plaati, kõik muu läheb värvi alla

Teavita reeglite rikkumisest

Küsimus: private ID44392   09.03.2017 18:22
Vabandage aga mis on 4*900 plaat????

Teavita reeglite rikkumisest

Korraldaja vastus: 09.03.2017 18:58

900x900 plaat 4tk tekitamaks dušši nurga, teise klaassein 900

Teavita reeglite rikkumisest

Lisa küsimus

Lisa küsimus

Minu pakkumine

Reeglid

Pakkumise kirjelduse väli on mõeldud pakkumise detailsemaks lahti kirjutamiseks. Pikema teksti mugavaks sisestamiseks klikkige kasti paremal ülaservas oleval ikoonil.
Pakkumist tehes on keelatud postitada enda kontaktandmeid (nimi, telefon, aadress jne). Me jälgime ja analüüsime pakkumisi, et vältida pettuseid ja reeglite rikkumisi.
Rikkumise puhul kasutajakonto blokeeritakse.

 

Teisi töid samas valdkonnas

Valdkonnas "Plaatimistööd" on 2 aktiivset tööd

Köögi töötasapinna taguse seina plaatimine

Asukoht: Raplamaa, Aespa
Aega jäänud: 2p 9h
Tehtud pakkumisi: 3

Terrassi plaatimine

Asukoht: Harjumaa, Tallinn
Aega jäänud: 7p 9h
Tehtud pakkumisi: 0

Vanemad teated:

Vaata kõiki

Sellel veebilehel kasutatakse küpsiseid. Kasutamist jätkates nõustute küpsiste kasutamisega.

Sulge
 
Minu pakkumine

Reeglid

Pakkumise kirjelduse väli on mõeldud pakkumise detailsemaks lahti kirjutamiseks. Pikema teksti mugavaks sisestamiseks klikkige kasti paremal ülaservas oleval ikoonil.
Pakkumist tehes on keelatud postitada enda kontaktandmeid (nimi, telefon, aadress jne). Me jälgime ja analüüsime pakkumisi, et vältida pettuseid ja reeglite rikkumisi.
Rikkumise puhul kasutajakonto blokeeritakse.