+ Lisa oma töö      

Otsid ehitajat "Teemantpuurimine ja -saagimine" valdkonnast?

Parima pakkumise ja teostaja leidmiseks lisa oma töö.

Freesimine korteri köögi ja toa vahelisse seina ava

ID 39282

2013 vaatamist

Prindi

  • check Pakkumiste tegemine
    kuni 07.04.2017
  • check Võitja valik kuni
    14.04.2017
  • 3 Töö teostamine
    ja hinnang
Hanke lõpp: R, 7. aprill, 2017
Maakond: Harjumaa
Linn: Tallinn
Tööde algus: N, 13. aprill, 2017 (Soovituslik)
Tööde lõpp: R, 14. aprill, 2017 (Soovituslik)
Ehitusmaterjalid: Töö tegija poolt

Töö sisu

Otsin firmat kellel on luba teostada allolevat projekti.
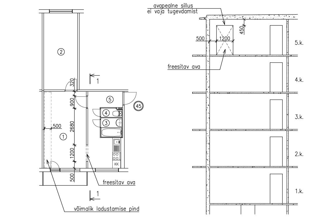
Freesida korteri köögi ja toa vahelisse siseseinapaneeli täiendav ava, mille mõõdud on antud kaesoleva projektiga.

Ava mõõdud: Välisseinast 0,5m laius 1,20m ja pikkus 2,07m.

Välisseinad on kolmekihilised raudbetoonpaneelid, siseseinad 120mm ja 140mm paksused raudbetoonpaneelid. Vahelaed on 100mm paksused raudbetoonplaadid mis toetuvad koikides kulgedes seinapaneelidele. Hoone jäikus on tagatud vahelagede ja seinte koostooga.
Korter on 2-toaline 5. korrusel.
Korteri köögi ja toa vahelisse siseseinapaneeli on projekteeritud täiendav ava mille mõõdud on antud joonistel. Vaheseina taiendava ava tegemine vastavalt kaesolevale projektile ei ole ohtlik hoone tugevusele ja jäikusele.

1. Enne ava freesimist kindlaks teha elektrijuhtmete asukohad freesitavas seinas. Läbilõigatavad juhtmed vooluvõrgust lahti ühendada.
2. Ava lõikamisel tuleb kasutada vibratsioonivaba tehnoloogiat (teemantsaagimine) ja minimeerida naaberkorteritesse ja koridori kanduvat müra ja tolmu. Freesimistöid võib teostada ehitusettevõte mis omab vastavat registreeringut Majandustegevuse Registris.
3. Väljafreesitavad seinaosad tuleb freesida mitte suuremate kui ~50x50cm tükkidena.
Tükid koheselt valja vedada või ajutiselt ladustada võimalikult seina äärde plaanil näidatud piirkonda, mitte üle 2 tuki üksteise peale.
4. Rekonstrueerimistoode kaigus ei muudeta hoone tehnosusteeme.

Ehitustööde teostamisel tuleb järgida kohaliku omavalitsuse poolt kehtestatud heakorraeeskirju ja nõudeid ehitusprahi utiliseerimise kohta.

Pildid, video ja failid

Hanke korraldaja: eraisik ID44691

Pakkumised

Pakkumisi kokku: 0

Küsimused hanke korraldajale

Küsimus: private ID44695   02.04.2017 20:19
Tere. <br />
Kas märgistamine seinale (vastavalt projektile) teeb tellija ?

Teavita reeglite rikkumisest

Korraldaja vastus:
Hanke korraldaja ei ole küsimusele veel vastanud

Lisa küsimus

Lisa küsimus

Minu pakkumine

Reeglid

Pakkumise kirjelduse väli on mõeldud pakkumise detailsemaks lahti kirjutamiseks. Pikema teksti mugavaks sisestamiseks klikkige kasti paremal ülaservas oleval ikoonil.
Pakkumist tehes on keelatud postitada enda kontaktandmeid (nimi, telefon, aadress jne). Me jälgime ja analüüsime pakkumisi, et vältida pettuseid ja reeglite rikkumisi.
Rikkumise puhul kasutajakonto blokeeritakse.

 

Vanemad teated:

Vaata kõiki

Sellel veebilehel kasutatakse küpsiseid. Kasutamist jätkates nõustute küpsiste kasutamisega.

Sulge
 
Minu pakkumine

Reeglid

Pakkumise kirjelduse väli on mõeldud pakkumise detailsemaks lahti kirjutamiseks. Pikema teksti mugavaks sisestamiseks klikkige kasti paremal ülaservas oleval ikoonil.
Pakkumist tehes on keelatud postitada enda kontaktandmeid (nimi, telefon, aadress jne). Me jälgime ja analüüsime pakkumisi, et vältida pettuseid ja reeglite rikkumisi.
Rikkumise puhul kasutajakonto blokeeritakse.