+ Lisa oma töö      

Otsid ehitajat "Projekteerimine" valdkonnast?

Parima pakkumise ja teostaja leidmiseks lisa oma töö.

Hange on lõppenud!

Võitjaks osutus kasutaja ID 44039

Korraldaja hinnang tehtud tööle

5.0
24.05.2017
Töökiirus: 12345
Kvaliteet: 12345
Hind: 12345

Teostaja vastas alati kiiresti meilidele ja kõnedele. - Jasper P.

Eramaja konstruktiivne projekt

ID 39437

11311 vaatamist

Prindi

  • check Pakkumiste tegemine
    kuni 18.04.2017
  • check Võitja valik kuni
    25.04.2017
  • 3 Töö teostamine
    ja hinnang
Hanke lõpp: T, 18. aprill, 2017
Maakond: Harjumaa
Linn: Tallinn
Tööde algus: K, 12. aprill, 2017 (Soovituslik)
Tööde lõpp: K, 26. aprill, 2017 (Soovituslik)
Ehitusmaterjalid: Töö tellija poolt

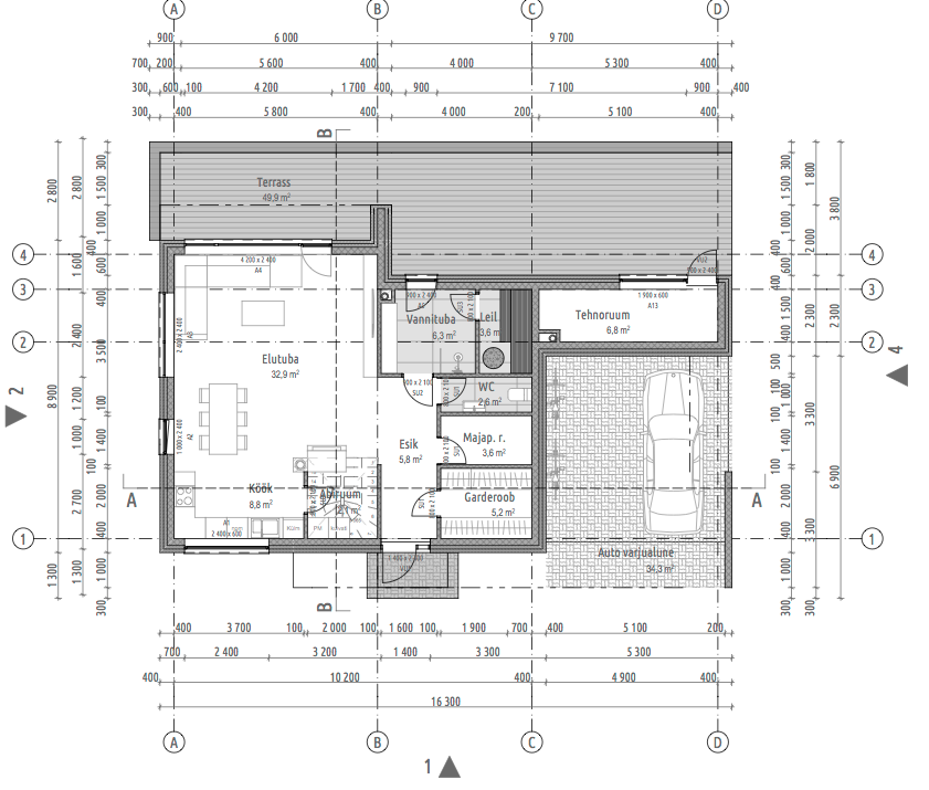
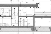
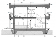
Töö sisu

Soovin tellida konstruktiivset põhiprojekti eramajale.

Pildid, video ja failid

Hanke korraldaja: eraisik ID42283

Pakkumised

Pakkumisi kokku: 2

Ettevõte Summa Käibemaks Lisatud Vestlus
Kasutaja ikoon ID44039
Pakkuja profiil Väike nool paremale
2 190€ Sisaldab KM Sisaldab KM 12.04.2017 Vestlus (2)

Pakkumise kirjeldus:

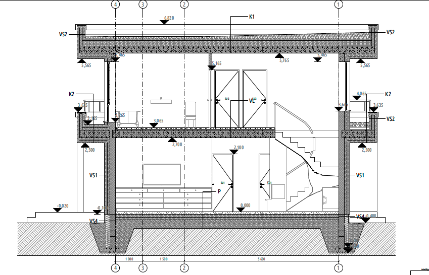
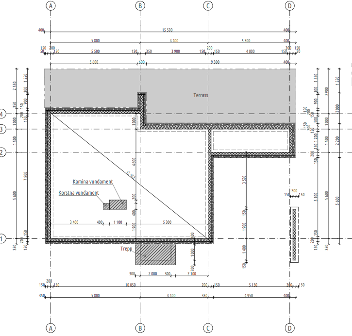
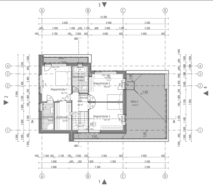
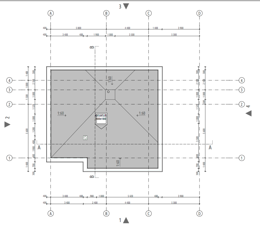
Hinnapakkumine sisaldab hoone kandekonstruktsioonide põhiprojekti vastavalt standardis EVS 811:2012 Hoone ehitusprojekt väljatoodud mahus. Projekti kooseisus teostatakse hoone osadele vajalikud kontrollarvutused ning esitatakse järgmised joonised:
1) Vundamentide plaan
2) Vundamentide tüüparmeerimise lõiked
3) 1k seinte ja silluste plaan
4) 2k sein ... Rohkem

Kasutaja ikoon ID38306
Pakkuja profiil Väike nool paremale
1 900€ Ei sisalda Ei sisalda 13.04.2017 Vestlus (2)

Pakkumise kirjeldus:

ehitusprojekti konstruktiivne osa põhiprojekti staadiumis, teostajaks pika kogemusega ehitusinsener. Kestus umbes 4 nädalat.

Küsimused hanke korraldajale

Hanke korraldajale ei ole veel küsimusi esitatud.

Lisa küsimus

Lisa küsimus

Minu pakkumine

Reeglid

Pakkumise kirjelduse väli on mõeldud pakkumise detailsemaks lahti kirjutamiseks. Pikema teksti mugavaks sisestamiseks klikkige kasti paremal ülaservas oleval ikoonil.
Pakkumist tehes on keelatud postitada enda kontaktandmeid (nimi, telefon, aadress jne). Me jälgime ja analüüsime pakkumisi, et vältida pettuseid ja reeglite rikkumisi.
Rikkumise puhul kasutajakonto blokeeritakse.

 

Teisi töid samas valdkonnas

Valdkonnas "Projekteerimine" on 8 aktiivset tööd

Ehitusprojekt 129 m2 abihoone ümberehitamiseks ja suurendamiseks

Asukoht: Jõgevamaa, Pikknurme
Aega jäänud: 1p 6h
Tehtud pakkumisi: 5

no-img Pilt puudub

Korteri mõõdistusprojekt

Asukoht: Harjumaa, Tallinn
Aega jäänud: 1p 6h
Tehtud pakkumisi: 3

Vanemad teated:

Vaata kõiki

Sellel veebilehel kasutatakse küpsiseid. Kasutamist jätkates nõustute küpsiste kasutamisega.

Sulge
 
Minu pakkumine

Reeglid

Pakkumise kirjelduse väli on mõeldud pakkumise detailsemaks lahti kirjutamiseks. Pikema teksti mugavaks sisestamiseks klikkige kasti paremal ülaservas oleval ikoonil.
Pakkumist tehes on keelatud postitada enda kontaktandmeid (nimi, telefon, aadress jne). Me jälgime ja analüüsime pakkumisi, et vältida pettuseid ja reeglite rikkumisi.
Rikkumise puhul kasutajakonto blokeeritakse.