+ Lisa oma töö      

Otsid ehitajat "Projekteerimine" valdkonnast?

Parima pakkumise ja teostaja leidmiseks lisa oma töö.

Hange on lõppenud!

Võitjaks osutus kasutaja ID 24698

Korraldaja hinnang tehtud tööle

5.0
13.04.2017
Töökiirus: 12345
Kvaliteet: 12345
Hind: 12345

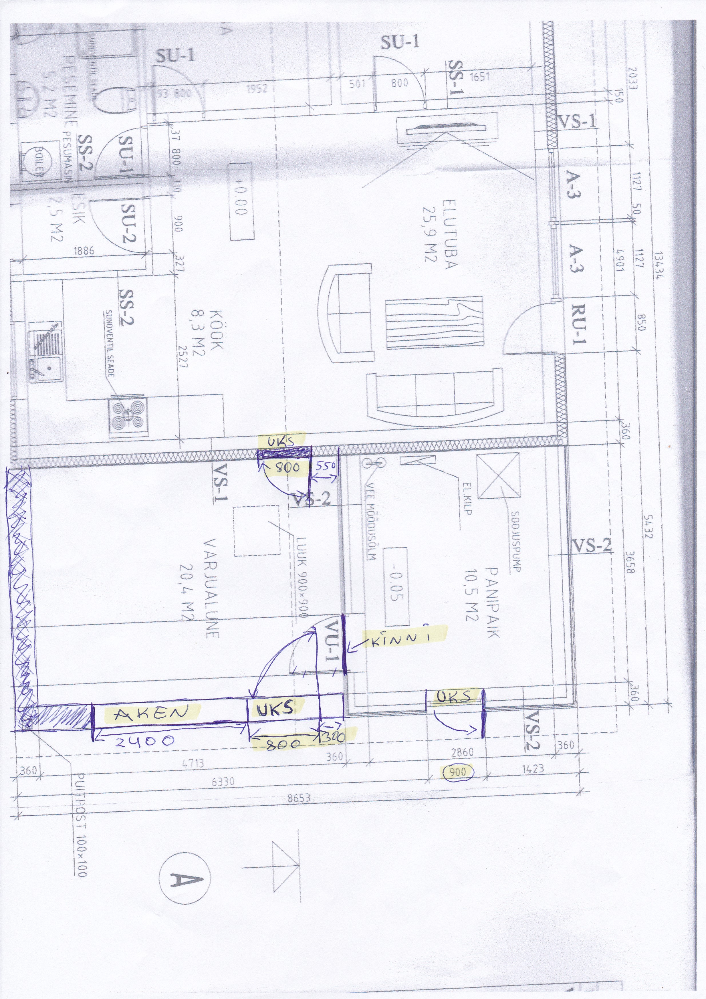
Eramu joonisele peale kanda mõned seinad , aknad ja uksed.

ID 39439

6027 vaatamist

Prindi

  • check Pakkumiste tegemine
    kuni 13.04.2017
  • check Võitja valik kuni
    20.04.2017
  • 3 Töö teostamine
    ja hinnang
Hanke lõpp: N, 13. aprill, 2017
Maakond: Pärnumaa
Tööde algus: K, 12. aprill, 2017 (Soovituslik)
Tööde lõpp: P, 16. aprill, 2017 (Soovituslik)
Ehitusmaterjalid: Töö tegija poolt

Töö sisu

Eramu joonistele peale kanda lihtsalt mõned seinad , aknad ja uksed. Joonised on tehtud mingi
autodwg dwgsee pro 2017 programmiga. Kes tunneb sellist tööd siis väga lihtne teha.
Kõik mis peale vaja kanda on joonistele pastakaga peale kirjutatud.

Pildid, video ja failid

Hanke korraldaja: eraisik ID44813

Pakkumised

Pakkumisi kokku: 1

Ettevõte Summa Käibemaks Lisatud Vestlus
Kasutaja ikoon ID24698
Pakkuja profiil Väike nool paremale
80€ Ei sisalda Ei sisalda 12.04.2017 Vestlus (2)

Küsimused hanke korraldajale

Küsimus: private ID44039   12.04.2017 12:37
Tere<br />
<br />
Kas tegemist on olemasoleva hoone muudatusega? Kui on, siis osaleksin hankes konstruktiivse osa põhiprojektiga, milles lahendatakse ära juurdeehitatav sein koos vundamendiga ning ka olemasolevatesse seintesse avade tegemine.<br />
<br />
Lugupidamisega,

Teavita reeglite rikkumisest

Korraldaja vastus:
Hanke korraldaja ei ole küsimusele veel vastanud

Lisa küsimus

Lisa küsimus

Minu pakkumine

Reeglid

Pakkumise kirjelduse väli on mõeldud pakkumise detailsemaks lahti kirjutamiseks. Pikema teksti mugavaks sisestamiseks klikkige kasti paremal ülaservas oleval ikoonil.
Pakkumist tehes on keelatud postitada enda kontaktandmeid (nimi, telefon, aadress jne). Me jälgime ja analüüsime pakkumisi, et vältida pettuseid ja reeglite rikkumisi.
Rikkumise puhul kasutajakonto blokeeritakse.

 

Teisi töid samas valdkonnas

Valdkonnas "Projekteerimine" on 6 aktiivset tööd

Ehitusprojekt 129 m2 abihoone ümberehitamiseks ja suurendamiseks

Asukoht: Jõgevamaa, Pikknurme
Aega jäänud: 2p 19h
Tehtud pakkumisi: 5

Detailplaneering

Asukoht: Põlvamaa
Aega jäänud: 11p 19h
Tehtud pakkumisi: 3

Vanemad teated:

Vaata kõiki

Sellel veebilehel kasutatakse küpsiseid. Kasutamist jätkates nõustute küpsiste kasutamisega.

Sulge
 
Minu pakkumine

Reeglid

Pakkumise kirjelduse väli on mõeldud pakkumise detailsemaks lahti kirjutamiseks. Pikema teksti mugavaks sisestamiseks klikkige kasti paremal ülaservas oleval ikoonil.
Pakkumist tehes on keelatud postitada enda kontaktandmeid (nimi, telefon, aadress jne). Me jälgime ja analüüsime pakkumisi, et vältida pettuseid ja reeglite rikkumisi.
Rikkumise puhul kasutajakonto blokeeritakse.