+ Lisa oma töö      

Otsid ehitajat "Ehitusprojektid" valdkonnast?

Parima pakkumise ja teostaja leidmiseks lisa oma töö.

Hange on lõppenud!

Võitjaks osutus kasutaja ID 27307

Korraldaja hinnang tehtud tööle

5.0
07.07.2017
Töökiirus: 12345
Kvaliteet: 12345
Hind: 12345

Elektriprojekt

ID 39578

6040 vaatamist

Prindi

  • check Pakkumiste tegemine
    kuni 01.05.2017
  • check Võitja valik kuni
    08.05.2017
  • 3 Töö teostamine
    ja hinnang
Hanke lõpp: E, 1. mai, 2017
Maakond: Harjumaa
Muu asula: Saku
Tööde algus: E, 24. aprill, 2017 (Soovituslik)
Tööde lõpp: P, 30. aprill, 2017 (Soovituslik)
Ehitusmaterjalid: Töö tellija poolt

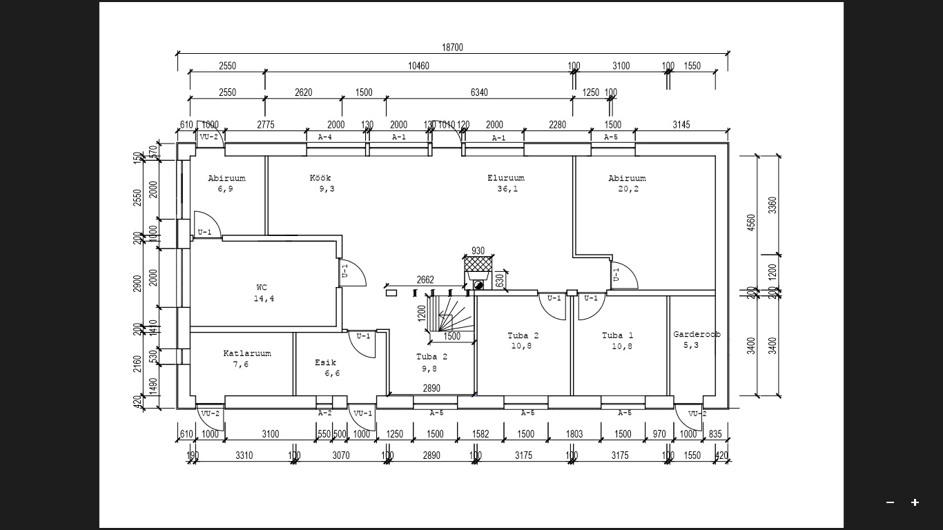
Töö sisu

Vajama ühepereelamu elektriprojekt.
See peaks hõlmama kõik pistikupesad, valgustid, seadmed, põrandakütted jne. Projektis tahame näha ka dokumentatsiooni koos vajaminevate materjalide loendiga, mille alusel on lihtne hinnapakkumisi võtta.
Projekt on vajalik nii paigaldustöödeks kui ka kasutusloa saamiseks, seega see (selle järgi tehtud töö (loomulikult projekti tegija ei vastuta ehitajate töö eest)) peab läbima elektripaigaldise tehnilise kontrolli audiiti.

Pildid, video ja failid

Hanke korraldaja: eraisik ID39581

Pakkumised

Pakkumisi kokku: 3

Ettevõte Summa Käibemaks Lisatud Vestlus
Kasutaja ikoon ID31470
Pakkuja profiil Väike nool paremale
250€ Ikoon kell Sisaldab KM Sisaldab KM 25.04.2017 Vestlus (0)

Pakkumise kirjeldus:

Tere, teeme pakkumise antud hoone elektriosa põhiprojekti koostamiseks hanges küsitud mahus. Projekti esitame kahel paberkoopial originaalallkirjadega (soovi korral) ning digitaalsel kujul digiallkirjastatult. Enne tööde algust vajame Teiepoolset sisendit, kuhu vajate pistikupesi ning valgusteid jms ning kuidas sooviksite nende lülitust. Hinnapakkumine ... Rohkem

Kasutaja ikoon ID24128
Pakkuja profiil Väike nool paremale
250€ Ei sisalda Ei sisalda 25.04.2017 Vestlus (0)

Pakkumise kirjeldus:

Elektritööde tööprojekt antud eramule.

Kasutaja ikoon ID27307
Pakkuja profiil Väike nool paremale
250€ Sisaldab KM Sisaldab KM 01.05.2017 Vestlus (0)

Pakkumise kirjeldus:

Hind sisaldab eramu elektripaigaldise projekti koostamist põhiprojekti staadiumis (seletuskiri, valgustus- ja jõuseadmete paigutusjoonised, maanduspaigaldise joonis, peakilbi skeem ja seadmete materjalide spetsifikatsioon).
Maksetingimused ja tööde teostamise tähtaeg vastavalt kirjalikule kokkuleppele.
Tööde teostamiseks on vajalikud hoone alusplaan ... Rohkem

Küsimused hanke korraldajale

Küsimus: private ID31470   25.04.2017 09:15
Tere, kas hoone on ühe või kahekordne? Kas korruseplaanid on olemas ka DWG kujul? Lugupidamisega, V.

Teavita reeglite rikkumisest

Korraldaja vastus: 25.04.2017 09:34

Tere<br />
Hoone on planeeritud ühekorruseline (nagu plaani peal), kuid projekti järgi katuse all on ka olemas korrus. Sinna on vaja lihtsalt 1-2 lampi projekteerida ja mitu pistikut. Kõik on olemas DWG kujul.

Teavita reeglite rikkumisest

Küsimus: private ID44326   26.04.2017 22:29
Tere!<br />
Kas soovite ainult tugevvoolu pakkumist või soovite lisaks ka valve- ja tulekahju süsteemi, andmeside, TV?

Teavita reeglite rikkumisest

Korraldaja vastus: 27.04.2017 10:13

Tere.<br />
Jah soovime, et oleksid arvestatud kõik võimalikud seadmed.

Teavita reeglite rikkumisest

Lisa küsimus

Lisa küsimus

Minu pakkumine

Reeglid

Pakkumise kirjelduse väli on mõeldud pakkumise detailsemaks lahti kirjutamiseks. Pikema teksti mugavaks sisestamiseks klikkige kasti paremal ülaservas oleval ikoonil.
Pakkumist tehes on keelatud postitada enda kontaktandmeid (nimi, telefon, aadress jne). Me jälgime ja analüüsime pakkumisi, et vältida pettuseid ja reeglite rikkumisi.
Rikkumise puhul kasutajakonto blokeeritakse.

 

Teisi töid samas valdkonnas

Valdkonnas "Ehitusprojektid" on 6 aktiivset tööd

Eramu ehitusprojekt

Asukoht: Tartumaa
Aega jäänud: 6p 4h
Tehtud pakkumisi: 9

no-img Pilt puudub

Abihoone projekti koostamine

Asukoht: Tartumaa, Tartu
Aega jäänud: 1p 4h
Tehtud pakkumisi: 7

Vanemad teated:

Vaata kõiki

Sellel veebilehel kasutatakse küpsiseid. Kasutamist jätkates nõustute küpsiste kasutamisega.

Sulge
 
Minu pakkumine

Reeglid

Pakkumise kirjelduse väli on mõeldud pakkumise detailsemaks lahti kirjutamiseks. Pikema teksti mugavaks sisestamiseks klikkige kasti paremal ülaservas oleval ikoonil.
Pakkumist tehes on keelatud postitada enda kontaktandmeid (nimi, telefon, aadress jne). Me jälgime ja analüüsime pakkumisi, et vältida pettuseid ja reeglite rikkumisi.
Rikkumise puhul kasutajakonto blokeeritakse.