+ Lisa oma töö      

Otsid ehitajat "Fassaaditööd" valdkonnast?

Parima pakkumise ja teostaja leidmiseks lisa oma töö.

Puhasvuuk fassaad

ID 39716

4052 vaatamist

Prindi

  • check Pakkumiste tegemine
    kuni 19.05.2017
  • check Võitja valik kuni
    26.05.2017
  • 3 Töö teostamine
    ja hinnang
Hanke lõpp: R, 19. mai, 2017
Maakond: Tartumaa
Muu asula: Vahi küla
Tööde algus: E, 24. juuli, 2017 (Soovituslik)
Tööde lõpp: L, 30. september, 2017 (Soovituslik)
Ehitusmaterjalid: Töö tellija poolt

Töö sisu

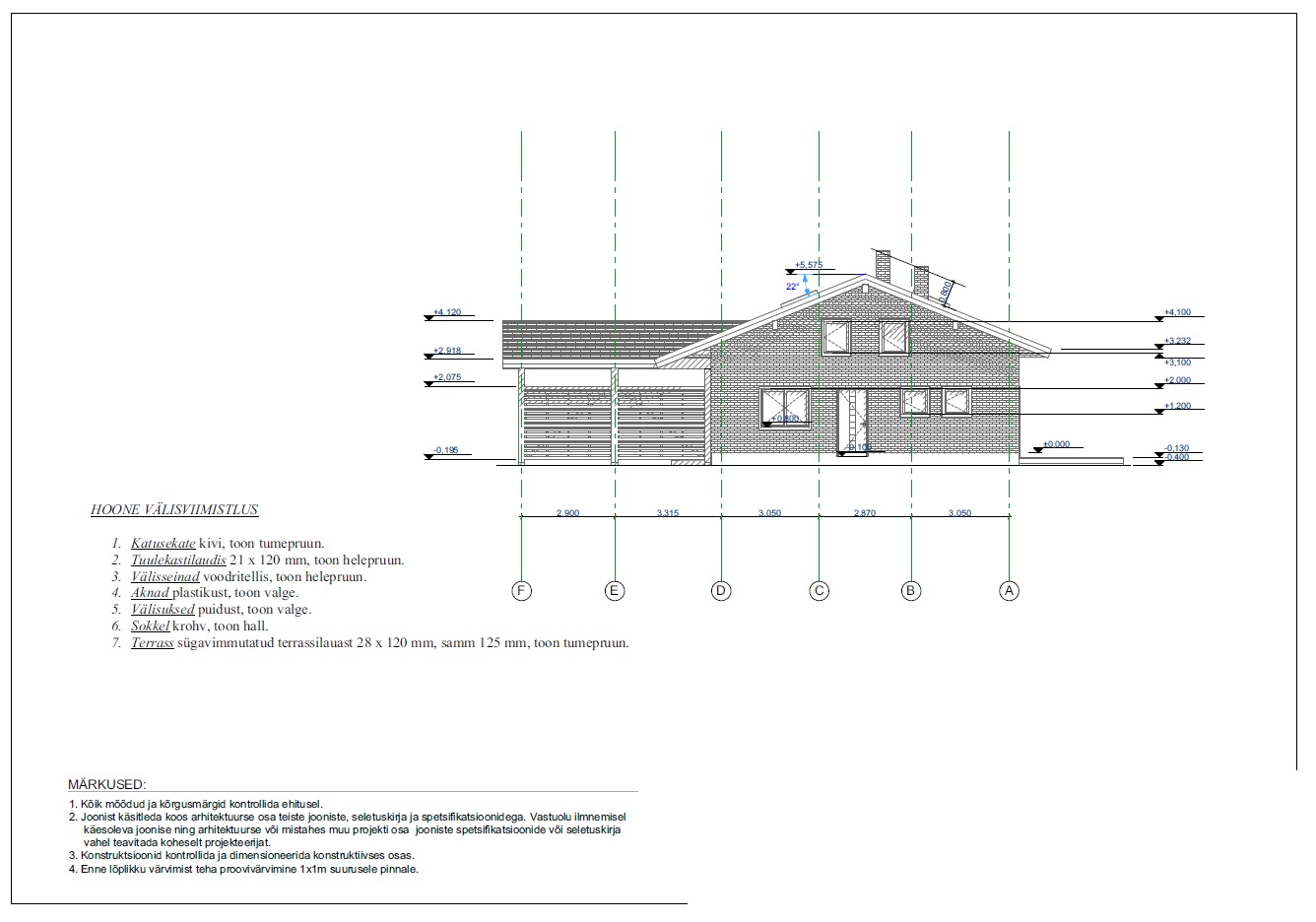
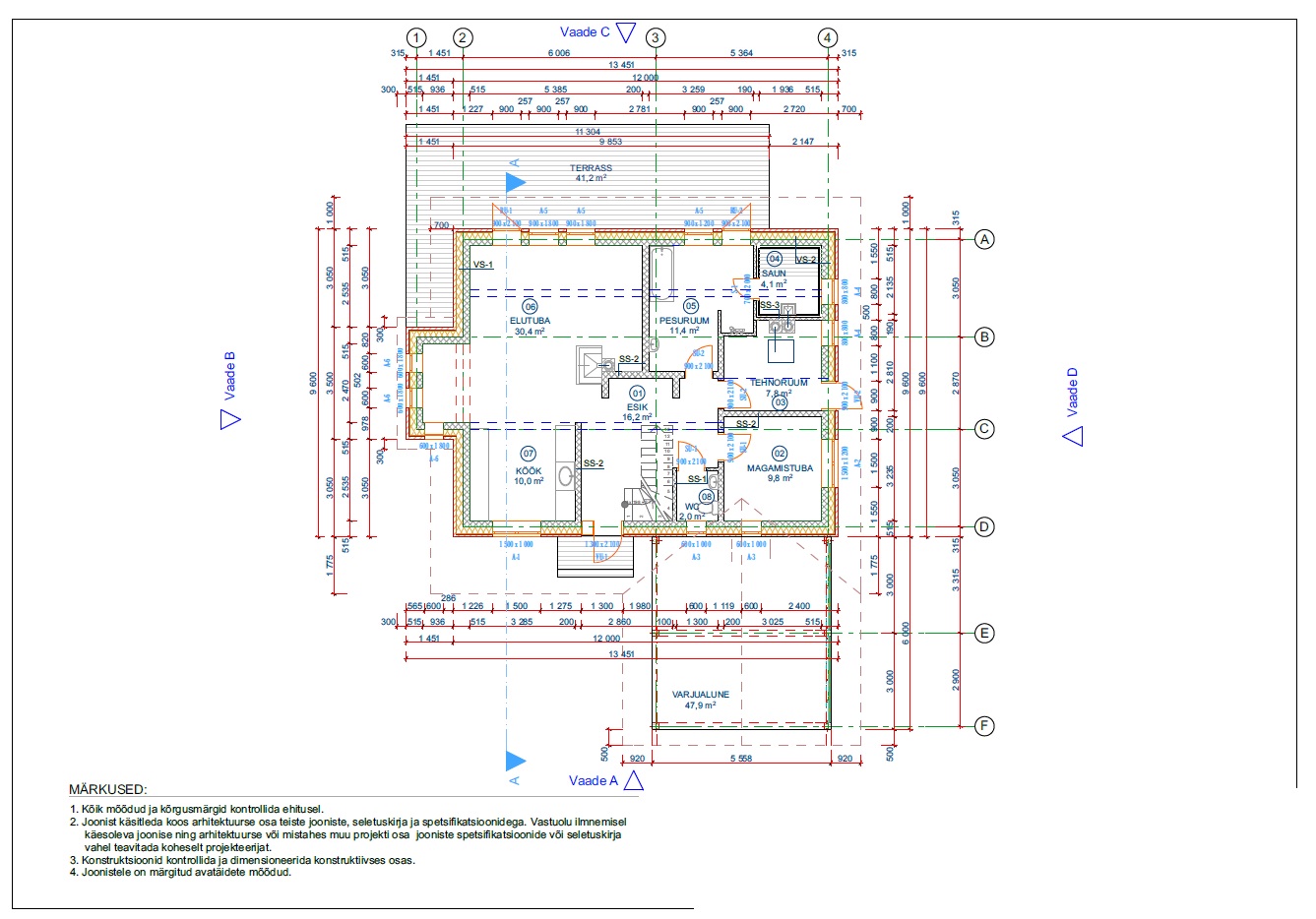
Eramaja tellistest puhasvuuk fassaad. Joonised-vaated lisatud, tellistest kogu fassaad (minu arvestuse kohaselt ca 150 m2 kive). Asukoht Tartu linna piiril Vahi külas. Teostamise algus juuli-august. Võimalikud tellise suurused 250x85x65 või 285x85x85. Lisainfona võib välja tuua kui palju lisaks hinda püstitellistest sillused.

Materjalid tellija poolt. Töövahendid sh vajadusel tellingud töö teostaja poolt.

Pildid, video ja failid

Hanke korraldaja: eraisik ID42366

Pakkumised

Pakkumisi kokku: 1

Ettevõte Summa Käibemaks Lisatud Vestlus
Kasutaja ikoon ID38856
Pakkuja profiil Väike nool paremale
35€ Ei sisalda Ei sisalda 05.05.2017 Vestlus (4)

Pakkumise kirjeldus:

35 euro /m2.

Küsimused hanke korraldajale

Hanke korraldajale ei ole veel küsimusi esitatud.

Lisa küsimus

Lisa küsimus

Minu pakkumine

Reeglid

Pakkumise kirjelduse väli on mõeldud pakkumise detailsemaks lahti kirjutamiseks. Pikema teksti mugavaks sisestamiseks klikkige kasti paremal ülaservas oleval ikoonil.
Pakkumist tehes on keelatud postitada enda kontaktandmeid (nimi, telefon, aadress jne). Me jälgime ja analüüsime pakkumisi, et vältida pettuseid ja reeglite rikkumisi.
Rikkumise puhul kasutajakonto blokeeritakse.

 

Teisi töid samas valdkonnas

Valdkonnas "Fassaaditööd" on 12 aktiivset tööd

Akende ja viilude parandus ja värvimine

Asukoht: Valgamaa, Valga
Aega jäänud: 8h 36 min
Tehtud pakkumisi: 3

Eramaja vintskapide laudise paigaldus

Asukoht: Pärnumaa, Pärnu-Jaagupi
Aega jäänud: 9p 8h
Tehtud pakkumisi: 2

Vanemad teated:

Vaata kõiki

Sellel veebilehel kasutatakse küpsiseid. Kasutamist jätkates nõustute küpsiste kasutamisega.

Sulge
 
Minu pakkumine

Reeglid

Pakkumise kirjelduse väli on mõeldud pakkumise detailsemaks lahti kirjutamiseks. Pikema teksti mugavaks sisestamiseks klikkige kasti paremal ülaservas oleval ikoonil.
Pakkumist tehes on keelatud postitada enda kontaktandmeid (nimi, telefon, aadress jne). Me jälgime ja analüüsime pakkumisi, et vältida pettuseid ja reeglite rikkumisi.
Rikkumise puhul kasutajakonto blokeeritakse.