+ Lisa oma töö      

Otsid ehitajat "Betoonitööd" valdkonnast?

Parima pakkumise ja teostaja leidmiseks lisa oma töö.

Betoonpõranda korrastamine

ID 39789

3475 vaatamist

Prindi

  • check Pakkumiste tegemine
    kuni 17.05.2017
  • check Võitja valik kuni
    24.05.2017
  • 3 Töö teostamine
    ja hinnang
Hanke lõpp: K, 17. mai, 2017
Maakond: Harjumaa
Linn: Tallinn
Tööde algus: E, 22. mai, 2017 (Soovituslik)
Tööde lõpp: R, 26. mai, 2017 (Soovituslik)
Ehitusmaterjalid: Töö tellija poolt

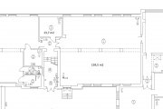
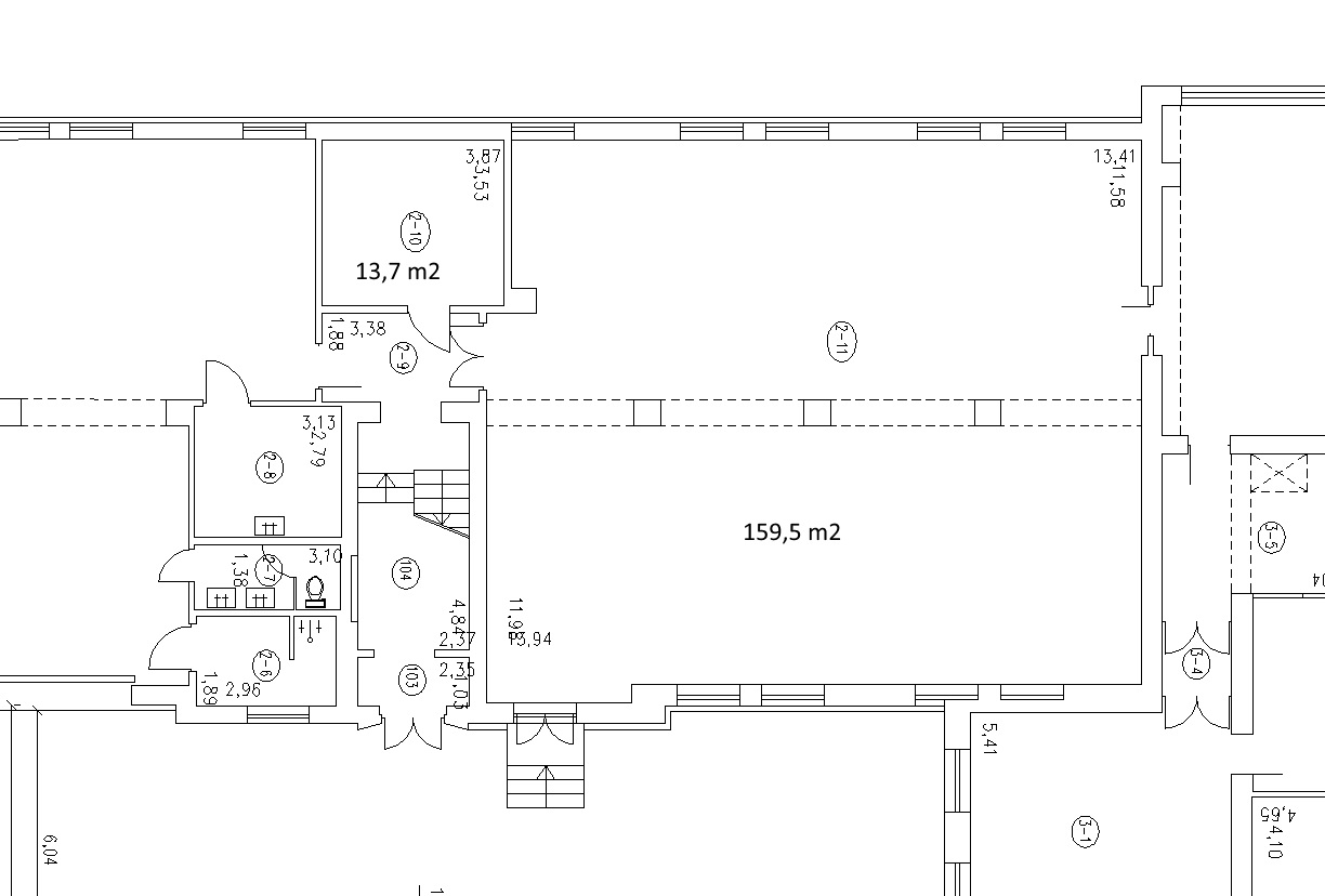
Töö sisu

Vana betoonpõranda korrastamine (toiduainete käitlemise ruum):
*põrandasse ACO äravoolurennide paigaldus (~10m)
*põrandasse liivapüüduri paigaldus
*kanalisatsioonitorude paigaldus põrandasse (110mm toru, pikkus põrandas 6m)
*põranda tasanduskihi valamine koos kalletega ja lihvimine (vesiklaasi viimistlus, pind 160m2)



Pildid, video ja failid

Hanke korraldaja: ettevõte ID45108

Pakkumised

Pakkumisi kokku: 2

Ettevõte Summa Käibemaks Lisatud Vestlus
Kasutaja ikoon ID42867
Pakkuja profiil Väike nool paremale
20€ Sisaldab KM Sisaldab KM 11.05.2017 Vestlus (0)

Pakkumise kirjeldus:

See on ruutmeetri hind koos materjaliga.

Kasutaja ikoon ID44880
Pakkuja profiil Väike nool paremale
15€ Sisaldab KM Sisaldab KM 14.05.2017 Vestlus (0)

Pakkumise kirjeldus:

Hinnapakkumine tehtud tunnihinnaga 1mehe kohta. Sisaldab käibemaksu.

Lugupidamisega,
Kevin

Küsimused hanke korraldajale

Hanke korraldajale ei ole veel küsimusi esitatud.

Lisa küsimus

Lisa küsimus

Minu pakkumine

Reeglid

Pakkumise kirjelduse väli on mõeldud pakkumise detailsemaks lahti kirjutamiseks. Pikema teksti mugavaks sisestamiseks klikkige kasti paremal ülaservas oleval ikoonil.
Pakkumist tehes on keelatud postitada enda kontaktandmeid (nimi, telefon, aadress jne). Me jälgime ja analüüsime pakkumisi, et vältida pettuseid ja reeglite rikkumisi.
Rikkumise puhul kasutajakonto blokeeritakse.

 

Teisi töid samas valdkonnas

Valdkonnas "Betoonitööd" on 6 aktiivset tööd

Betoonist platsi valamine väljas.

Asukoht: Harjumaa, Luige
Aega jäänud: 6h 52 min
Tehtud pakkumisi: 4

Betoonpõranda valu

Asukoht: Harjumaa, Jõelähtme
Aega jäänud: 2p 6h
Tehtud pakkumisi: 3

Vanemad teated:

Vaata kõiki

Sellel veebilehel kasutatakse küpsiseid. Kasutamist jätkates nõustute küpsiste kasutamisega.

Sulge
 
Minu pakkumine

Reeglid

Pakkumise kirjelduse väli on mõeldud pakkumise detailsemaks lahti kirjutamiseks. Pikema teksti mugavaks sisestamiseks klikkige kasti paremal ülaservas oleval ikoonil.
Pakkumist tehes on keelatud postitada enda kontaktandmeid (nimi, telefon, aadress jne). Me jälgime ja analüüsime pakkumisi, et vältida pettuseid ja reeglite rikkumisi.
Rikkumise puhul kasutajakonto blokeeritakse.